

作品包括:
word说明书一份,共52页,约18000字
任务书一份
开题报告一份
外文翻译一份
CAD版本图纸,共10张
摘 要
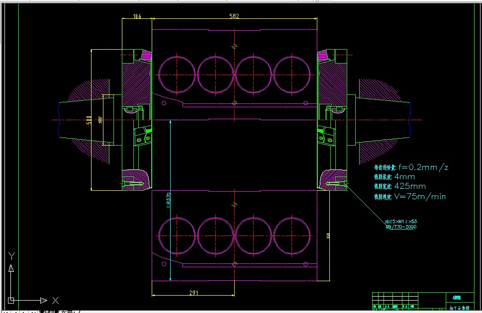
本课题是柴油机汽缸体两端面铣削专机设计,主要是完成机床夹具设计、组合机床总体设计、组合机床主轴箱设计。根据柴油机汽缸体的结构特点、加工部位、尺寸精度、表面粗糙度及生产率等要求,确定该机床为卧式组合机床;考虑工件尺寸精度,表面粗糙度,切削的排除生产率等因素,选用硬质合金不重磨式面铣刀;根据工件的尺寸、特点及其材料选择切削用量;然后,再经过切削用量来确定组合机床的通用部件;最后进行组合机床的总体设计。由于是铣削柴油机汽缸体的两端面,则夹具的设计可以采用“一面两销”定位,手动夹紧,一次装夹加工汽缸体两端面,保证加工精度,提高生产率;根据工作将受到切削力来计算夹紧力;再根据夹紧力来选择确定夹紧装置的专用部件。
在设计之中,尽量使用通用件,减少制造成本,增加经济效益。通过本次设计可以达到的效果是:所设计的夹具及主轴箱能满足所需的质量要求,使用时安全可靠,拆装方便,易于维修。
关键词:组合机床;汽缸体;铣刀;夹具
目 录
摘 要 III
Abstract IV
目 录 V
1 绪论 1
1.1 课题来源 1
1.2 国内外的发展状况 1
1.3 指导思想和设计要求 2
2 总体方案论证 3
2.1 被加工零件分析 3
2.2 工艺方案的制定 3
2.3 加工设备方案选择 3
2.4 确定机床总体布局 4
3 切削用量的选择及计算 5
3.1 切削刀具的选择 5
3.2 切削用量的选择 5
3.3 切削力、切削转矩、切削功率的确定 5
4 组合机床总体设计 8
4.1 被加工零件工序图 8
4.2 加工示意图 9
4.3 机床联系尺寸图 10
4.3.1 动力部件的选择 10
4.3.2 滑台及相配底座的选择 11
4.3.3 确定机床的装料高度H 11
4.4 机床生产率计算卡 11
4.4.1 理想生产率Q 11
4.4.2 实际生产率Q1 12
4.4.3 机床负荷率?负 13
4.4.4 编写机床生产率计算卡 14
5 主轴箱设计 15
5.1 主轴及传动轴结构设计 15
5.2 主轴箱传动计算 16
5.2.1 传动比分配 16
5.2.2 传动系统设计及齿轮的排布 17
5.3 主轴箱的润滑及油泵轴的确定 18
5.4 轴的计算及主轴校核 18
5.5 齿轮的校核 20
5.6 轴承的选择与校核 21
6 夹具设计 24
6.1 定位误差分析计算 24
6.2 夹紧装置设计 25
6.3 夹紧力的计算 25
6.4 夹具零部件的设计 27
6.4.1 夹具体的设计 27
6.4.2 支座的设计 28
6.4.3 支承板的设计 28
6.4.4 螺杆的设计 29
6.4.5 支承轴的设计 30
6.4.6 压板的设计 30
6.4.7 导向板的设计 31
7 液压系统设计 32
7.1 负载分析 32
7.2 负载图和速度图的绘制 32
7.3 液压缸主要参数的确定 32
7.4 拟定液压系统原理图 35
7.4.1 液压系统的工作要求的确定 35
7.4.2 拟定液压系统图 35
7.5 计算和选择液压元件 37
7.5.1 确定液压泵的最高工作压力 37
7.5.2 确定液压泵流量 38
7.5.3 选择液压泵规格 38
7.5.4 计算油泵需要的电机功率 38
7.6 阀类元件的选择 38
7.7 油管的确定 39
7.8 确定其它辅助装置 39
7.9 发热及油箱容量计算 39
8 结论与展望 40
8.1 结论 40
8.2 展望 40
致 谢 41
参考文献 42
温馨提示:
1、题目前面的备注【字母数字编号】为本站整理分类的编号,与课题内容无关,请选题时忽视;
2、若题目上备注三维,则表示文件里包含三维源文件,由于三维组成零件数量较多,为保证预览截图的简洁性,本站将三维文件夹进行了打包。三维及CAD预览截图,均为本站电脑打开软件进行截图的,保证能够打开,下载原件超高清,下载后解压即可;
3、本站所有资源如无特殊说明,都需要本地电脑安装Office2007。图纸软件为AutoCAD,PROE,UG,SolidWorks,CATIA等;
4、本站所有图文资料仅供用户学习参考,不作为任何商用或其他用途;
5、本站不保证下载资源的准确性、安全性和完整性, 不包修改,不支持退换,同时也不承担用户因使用这些下载资源对自己和他人造成任何形式的伤害或损失;
6、 下载文件中如有侵权或不适当内容,请与我们联系,我们立即纠正。