

B223-C6132普通车床主传动设计【4.5kw 公比1.41 转速1800 45】
作品包括:
说明书1份,共38页,约9800字左右
CAD版本本图纸,共5张
摘 要
机床是机械加工的重要设备,在机械制造中占有重要的地位。在一般的机器制造中,机床所担负的加工工作量占总制造工作量的40%-60%,机床在国民经济现代化的建设中起着重大作用。本次设计的题目是机床主传动设计。设计内容包括:确定有关尺寸参数、运动参数及动力参数;据所求得的有关运动参数及给定的公比,写出结构式,校验转速范围,绘制转速图;确定各变速组传动副的传动比值,定齿轮齿数、带轮直径,校验三联滑移齿轮齿顶是否相碰,校验各级转速的转速误差;绘制传动系统图。
关键词: 参数;传动比;结构式;转速图;转速误差;传动系统图
目 录
设计简介 1
第一章 参数的确定 2
1.1 车床的规格系列和类型 2
1.2 参数确定 4
1.2.1主传动的运动参数和动力参数确定 4
① 极限切削速度Umax,Umin 5
② 公比ψ的选定 5
③ 转数极数Z 5
④ 确定主轴转速数列 6
1.2.2电机功率-动力参数的确定 8
第二章 主传动运动设计 9
2.1 结构式、结构网与转速图的拟定 9
2.1.1 结构式或结构网的拟定 9
2.1.2 转速图的拟定 10
第三章 齿数及带轮直径的确定及相关验算 13
3.1 齿轮齿数确定的原则和要求 13
3.2 带轮直径的确定 14
3.3 确定齿轮齿数 19
3.4 主轴转速系列的验算 20
3.5 传片式摩擦离合器的选择和计算 22
第四章 传动件计算转速及其确定 23
4.1主传动系统的功率特性及计算转速 23
4.2其他传动件计算转速的确定 24
第五章 传动件的估算和验算 26
5.1 三角带传动的计算 26
5.2 齿轮模数的估算和计算 28
5.3 传动轴的估算和验算 30
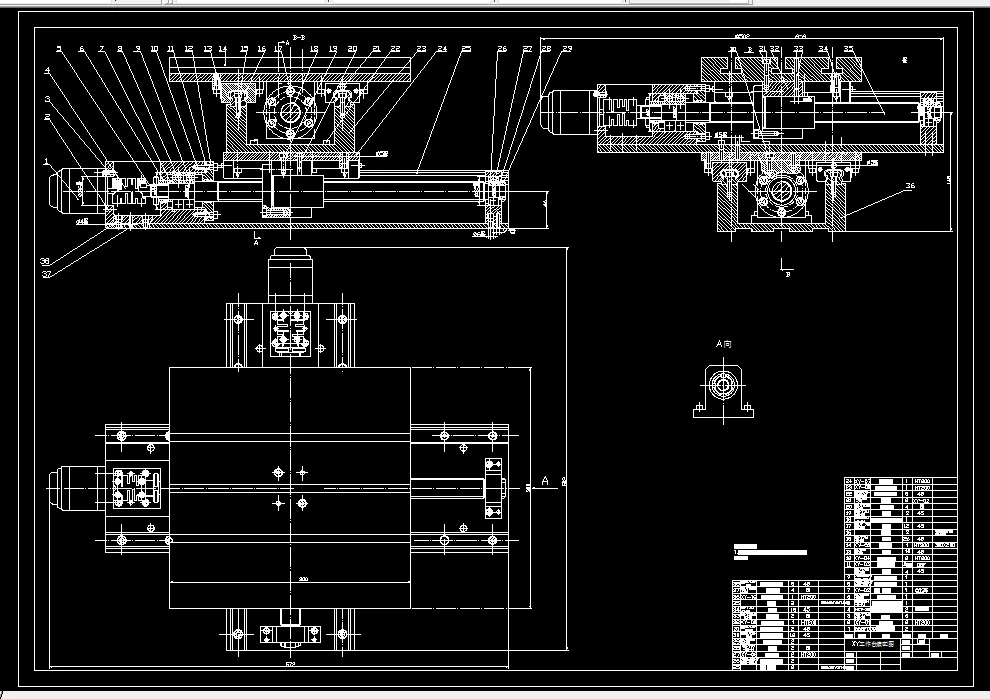
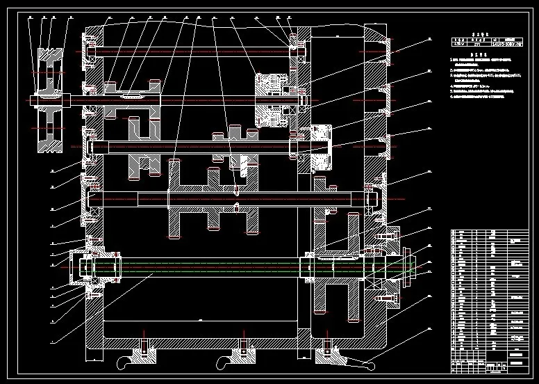
第六章 主传动结构设计 33
6.1 主轴变速箱装配图 33
总 结 36
参考文献 37
温馨提示:
1、题目前面的备注【字母数字编号】为本站整理分类的编号,与课题内容无关,请选题时忽视;
2、若题目上备注三维,则表示文件里包含三维源文件,由于三维组成零件数量较多,为保证预览截图的简洁性,本站将三维文件夹进行了打包。三维及CAD预览截图,均为本站电脑打开软件进行截图的,保证能够打开,下载原件超高清,下载后解压即可;
3、本站所有资源如无特殊说明,都需要本地电脑安装Office2007。图纸软件为AutoCAD,PROE,UG,SolidWorks,CATIA等;
4、本站所有图文资料仅供用户学习参考,不作为任何商用或其他用途;
5、本站不保证下载资源的准确性、安全性和完整性, 不包修改,不支持退换,同时也不承担用户因使用这些下载资源对自己和他人造成任何形式的伤害或损失;
6、 下载文件中如有侵权或不适当内容,请与我们联系,我们立即纠正。
M481-展开式二级斜齿圆柱齿轮减速器设计F=6500 V=0.47 D=360
E335中型普通车床主轴变速箱设计【最大400,47.5-2120,4KW,1.41,Z=12】
V017-半闭环数控车床进给部件设计
H402-带式输送机传动装置二级蜗杆齿轮减速器设计【含SW三维动画】F=2186N,D=300 V=0.32ms
JJ9884-壳体中心扩孔加工的机床液压传动、电气控制及工装设计
G139-一级直齿圆柱齿轮加速器的设计(T=130 Nm,V=1.6,D=320)
M6021-S195机体左侧面4-M16孔攻丝机床及其夹具设计
K1277-最大加工直径为φ250mm普通车床的主轴箱部件设计[转速50-630 Z=12 公比1.26 5.5kw]