

作品包括:
说明书一份,34页,约17000字
任务书一份
翻译一份
工艺过程卡一份
读书报告及生产率计算卡一份
CAD版本图纸共6张

主要内容和要求
课题依据:
1.汽缸体零件图;
2.年产量40000件;
任务要求:
1.安排零件机械加工工艺;
2.完成组合机床“三图一卡”;
3.设计机床的电气、液压或气动控制系统;
4.完成多轴箱装配图设计;
5.完成夹具装配图设计;
6.编写设计说明书;
7.提交专题综述或专业文献阅读报告1份;
8.完成专业外文资料翻译1份。
备 注:图纸总工作量不少于4张0号图,其中计算机绘图1张。
目 录
第一章 绪论…………………………………………………………………………………1
1.1 机床在国民经济的地位及其发展简史………………………………………………1
1.2 组合机床的国内、外现状……………………………………………………………2
1.2.1 国内组合机床现状…………………………………………………………………3
1.2.2 国外组合机床现状…………………………………………………………………4
1.3 机床设计的目的、内容、要求………………………………………………………5
1.3.1 设计的目的…………………………………………………………………………5
1.3.2 设计内容……………………………………………………………………………6
1.3.3 设计要求……………………………………………………………………………6
1.4 机床的设计步骤………………………………………………………………………6
1.4.1 调查研究……………………………………………………………………………6
1.4.2 拟定方案……………………………………………………………………………6
1.4.3 工作图设计…………………………………………………………………………7
第二章 零件分析……………………………………………………………………………8
2.1 零件的结构特点及其技术要求………………………………………………………8
2.1.1 零件结构特点………………………………………………………………………8
2.1.2 技术要求……………………………………………………………………………8
2.2. 零件的生产批量及其机床的使用……………………………………………………8
2.2.1 零件的生产批量……………………………………………………………………8
2.2.2 机床的使用条件……………………………………………………………………8
2.3 零件工艺方案…………………………………………………………………………8
第三章 组合机床的总体设计……………………………………………………………9
3.1 组合机床方案的制定…………………………………………………………………9
3.1.1 制定工艺方案………………………………………………………………………9
3.1.2 确定组合机床的配置形式和结构方案…………………………………………10
3.2 确定切削用量及选择刀具…………………………………………………………11
3.2.1 确定工序间余量…………………………………………………………………11
3.2.2 选择切削用量……………………………………………………………………11
3.2.3 确定切削力、切削扭矩、切削功率…………………………………………… 12
3.2.4 选择刀具结构……………………………………………………………………13
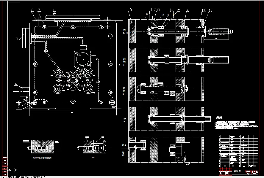
3.3钻孔组合机床总设计“三图一卡”的编制…………………………………………13
3.3.1 被加工零件工序图………………………………………………………………13
3.3.2 加工示意图………………………………………………………………………14
3.3.3 机床联系尺寸图…………………………………………………………………18
3.3.4 生产率计算卡……………………………………………………………………21
3.4 多轴箱的设计……………………………………………………………………23
3.4.1 绘制多轴箱设计原始依据图……………………………………………………23
3.4.2 齿轮模数选择……………………………………………………………………24
3.4.3 多轴箱的传动设计………………………………………………………………24
3.4.4 绘制传动系统图…………………………………………………………………26
第四章 夹具设计…………………………………………………………………………28
4.1 机床夹具的概述……………………………………………………………………28
4.1.1机床夹具的组成……………………………………………………………………28
4.1.2机床夹具的类型……………………………………………………………………28
4.2夹紧方案和夹紧元件的设计…………………………………………………………28
4.3夹具的性能及优点……………………………………………………………………29
4.4夹具体的设计…………………………………………………………………………29
4.5夹具精度分析计算……………………………………………………………………29
结 论………………………………………………………………………………………29
致 谢……………………………………………………………………………………33
参考文献 ……………………………………………………………………………………34
气缸体顶面钻孔组合机床设计
摘要 随着自动化生产能力的提高,现代工厂中出现需要组合机床的场合越来越多, 组合机床是以通用部件为基础,
配以工件特定外形和加工工艺设计的专用部件和夹具,组成的半自动或自动专用机床。它一般采用多轴,多刀,多工序
,多面或多工位同时加工的方式,生产效率比通用机床高几倍至几十倍。由于通用部件已经标准化合系列化,可根据需
要灵活配置,能缩短设计和制造周期。因此,组合机床兼有低成本和高效率的优点,在大批量生产中得到广泛应用,并
可用以组成自动生产线。本课题针对气缸体顶面上 6xM8 孔钻削这一特定工序而设计的一台专用立式组合机床。本设计
中,在充分数据计算的基础上对标准通用零件做了仔细选择,并依据被加工零件的结构特点,加工部位的尺寸精度,表
面粗糙度要求,以及定位夹紧方式,工艺方法和加工过程中所采用的刀具,生产率,切削用量情况等设计了结构合理的
多轴箱。
关键词: 组合机床,多轴箱,工艺流程,钻削
温馨提示:
1、题目前面的备注【字母数字编号】为本站整理分类的编号,与课题内容无关,请选题时忽视;
2、若题目上备注三维,则表示文件里包含三维源文件,由于三维组成零件数量较多,为保证预览截图的简洁性,本站将三维文件夹进行了打包。三维及CAD预览截图,均为本站电脑打开软件进行截图的,保证能够打开,下载原件超高清,下载后解压即可;
3、本站所有资源如无特殊说明,都需要本地电脑安装Office2007。图纸软件为AutoCAD,PROE,UG,SolidWorks,CATIA等;
4、本站所有图文资料仅供用户学习参考,不作为任何商用或其他用途;
5、本站不保证下载资源的准确性、安全性和完整性, 不包修改,不支持退换,同时也不承担用户因使用这些下载资源对自己和他人造成任何形式的伤害或损失;
6、 下载文件中如有侵权或不适当内容,请与我们联系,我们立即纠正。