

作品包括:
Word版说明书1份,共45页,约12000字
任务书一份
CAD版本图纸,共7张
摘要
随着石油钻采工业的迅速发展,对于钻采设备的要求也就越来越高,减速器作为采油设备的一个重要组成部分也急需得到了相应的改进和提高。圆弧齿轮传动是一种新型齿轮传动,在冶金、矿山、起重运输机械以及高速传动中得到广泛的应用。圆弧齿轮是一种以圆弧做齿形的斜齿(或人字齿)轮。双圆弧齿轮减速器主要由输入轴、中间轴、输出轴、圆弧齿轮、轴承、键等构成。
本次设计首先,通过对圆弧齿轮传动减速器结构及原理进行分析,在此分析基础上提出了总体结构方案;接着,对主要技术参数进行了计算选择;然后,对各主要零部件进行了设计与校核;最后,通过AutoCAD制图软件绘制了双圆弧齿轮减速器装配图及主要零部件图。
通过本次设计,巩固了大学所学专业知识,如:机械原理、机械设计、材料力学、公差与互换性理论、机械制图等;掌握了普通机械产品的设计方法并能够熟练使用AutoCAD制图软件,对今后的工作于生活具有极大意义。
关键词:圆弧齿轮,减速器,轴,设计
目录
摘要I
ABSTRACT II
1绪论1
1.1研究背景及意义1
1.2国内外研究及发展现状1
1.3双圆弧齿轮减速器的优点2
2总体方案及参数的选择4
2.1设计要求4
2.2传动方案的选择4
2.3电动机的选择6
2.3.1选择电动机类型6
2.3.2选择电动机容量6
2.3.3选择电动机转速7
2.4传动比计算7
2.4.1计算总传动比7
2.4.2分配各级传动比7
2.5运动和动力参数技术8
2.5.1各轴转速8
2.5.2各轴输入功率8
2.5.3各轴转矩8
3带、齿轮传动的设计与校核10
3.1V带传动的设计10
3.1.1 V带的基本参数10
3.1.2带轮结构的设计12
3.2高速级齿轮传动设计12
3.2.1选择材料、精度及参数12
3.2.2按抗弯曲疲劳强度计算齿轮模数13
3.2.3确定齿轮传动参数14
3.2.4验算齿根弯曲疲劳强度15
3.2.5验算齿面接触疲劳强度17
3.2.6几何尺寸计算18
3.3低速机齿轮传动设计19
3.3.1选择材料、精度及参数19
3.3.2按抗弯曲疲劳强度计算齿轮模数19
3.3.3确定齿轮传动参数20
3.3.4验算齿根弯曲疲劳强度21
3.3.5验算齿面接触疲劳强度23
3.3.6几何尺寸计算23
4轴及附件的设计与校核25
4.1轴的设计25
4.1.1输入轴的设计25
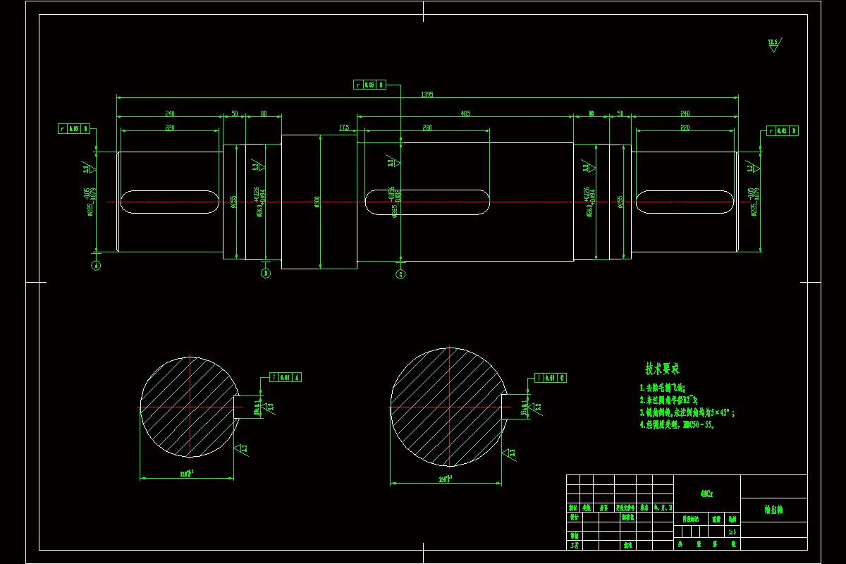
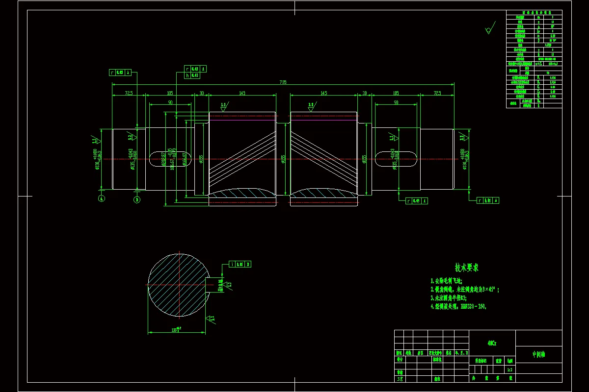
4.1.2中间轴的设计27
4.1.3输出轴的设计28
4.2轴承的选择与校核31
4.2.1输入轴轴承31
4.2.2中间轴轴承32
4.2.3输出轴轴承33
4.3键的选择与校核33
4.3.1输入轴与带轮的键33
4.3.2齿轮2与中间轴的键34
4.3.3齿轮3与轴的键34
4.4减速器附件设计及润滑密封35
4.4.1减速器附件设计35
4.4.2润滑与密封35
4.5刹车装置的设计38
总结39
参考文献40
致谢41
温馨提示:
1、题目前面的备注【字母数字编号】为本站整理分类的编号,与课题内容无关,请选题时忽视;
2、若题目上备注三维,则表示文件里包含三维源文件,由于三维组成零件数量较多,为保证预览截图的简洁性,本站将三维文件夹进行了打包。三维及CAD预览截图,均为本站电脑打开软件进行截图的,保证能够打开,下载原件超高清,下载后解压即可;
3、本站所有资源如无特殊说明,都需要本地电脑安装Office2007。图纸软件为AutoCAD,PROE,UG,SolidWorks,CATIA等;
4、本站所有图文资料仅供用户学习参考,不作为任何商用或其他用途;
5、本站不保证下载资源的准确性、安全性和完整性, 不包修改,不支持退换,同时也不承担用户因使用这些下载资源对自己和他人造成任何形式的伤害或损失;
6、 下载文件中如有侵权或不适当内容,请与我们联系,我们立即纠正。