

作品包括:
说明书1份,共22页,约6500字左右
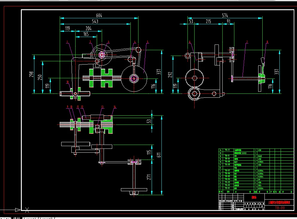
CAD版本本图纸,共10张
PROE三维图一份
摘 要
随着科学技术的不断发展,机械产品趋精密、复杂,改型也益频繁,对机床的性能、精度、自动化程度等提出了越来越高的要求。机械加工工艺过程自动化是实现上述要求的重要技术措施之一,不仅能提高产品质量和生产率,降低生产成本,还能改善工人的劳动条件。为此,许多企采用自动机床、组合机床和专用机床组成自动或半自动生产线。但是,采用这种自动、高效的设备,需要很大的初期投资以及较长的生产准备周期,只有在大批量的生产条件(如汽车、拖拉机、家用电器等工业主要零件的生产)下、才会有显著的经济效益。车床变速操纵机构是车床主传动系统操纵机构中最重要的一个,其作用是根据工件加工工艺的要求,通过旋转变速操纵机构的操作手柄来得到满足当前加工工艺的速度。近年来,随着时代技术的进步,对车床主传动系统变速操纵机构的要求越来越高。众多车床设计工程师在改进车床变速操纵机构性能的研究中倾注了大量的心血,车床变速箱操纵机构加工技术得到了飞速的发展。车床变速箱操纵机构的零件质量的优劣直接影响到其他等零件的相互位置准确性及整个车床主轴箱体使用的灵活性和寿命。
本论文主要论述车床主传动系统变速操纵机构的三维设计,利用PRO/E软件,针对CA6140普通车床主传动系统变速操纵机构的结构特征,利用三维软件绘制三维装配图,和二维工程图,这样更加有利于加深对CA6140普通车床主传动系统变速操纵机构的结构的了解以及使学生们运用三维,二维设计软件的熟练程度更一步加强,为将来的工作和研究做准备。
关键词:机床,主传动系统,操纵机构,三维
目 录
第一章 绪论……………………………………………………………………………………5
1.1课题研究的背景………………………………………………………………………6
1.2选题的意义………………………………………………………………………6
1.3 CA6140卧式车床简介………………………………………………………………7
1.3.1 CA6140卧式车床主传动系统的组成………………………………………7
第二章 CA6140卧式普通车床主传动系统变速操纵机构的设计…………………8
2.1 链传动设计计算……………………………………………………………………8
2.2 传动齿轮的设计计算………………………………………………………9
2.3 传动轴的设计计算………………………………………………………9
第三章主传动系统变速操纵机构中主要零件强度的校核 …………………………10
3.1 传动轴的强度校核…………………………………………………………………11
3.2传动齿轮的强度校核………………………………………………………………12
第四章 主传动系统变速操纵机构中主要零件的三维建模 ………………………14
4.1盘型凸轮的三维建模………………………………………………………………16
4.2传动链轮的三维建模………………………………………………………………16
4.3曲柄的三维建模………………………………………………………………18
4.4花键轴的三维建模………………………………………………………………18
4.5拨叉的三维建模………………………………………………………………19
4.6操纵机构的三维建模………………………………………………………………20
参考文献………………………………………………………………………………………21
致 谢……………………………………………………………………………………………22
毕业设计小结…………………………………………………………………………………23
温馨提示:
1、题目前面的备注【字母数字编号】为本站整理分类的编号,与课题内容无关,请选题时忽视;
2、若题目上备注三维,则表示文件里包含三维源文件,由于三维组成零件数量较多,为保证预览截图的简洁性,本站将三维文件夹进行了打包。三维及CAD预览截图,均为本站电脑打开软件进行截图的,保证能够打开,下载原件超高清,下载后解压即可;
3、本站所有资源如无特殊说明,都需要本地电脑安装Office2007。图纸软件为AutoCAD,PROE,UG,SolidWorks,CATIA等;
4、本站所有图文资料仅供用户学习参考,不作为任何商用或其他用途;
5、本站不保证下载资源的准确性、安全性和完整性, 不包修改,不支持退换,同时也不承担用户因使用这些下载资源对自己和他人造成任何形式的伤害或损失;
6、 下载文件中如有侵权或不适当内容,请与我们联系,我们立即纠正。