

作品包括:
Word版设计说明书1份,共42页,约15000字
任务书一份
开题报告一份
外文翻译一份
CAD版本图纸,共5张

摘 要
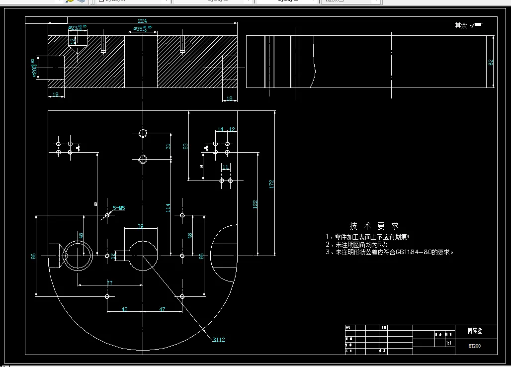
本设计包括车床转盘零件加工过程的基础设计的夹具设计。主要加工部位是平面和孔加工。在一般情况下,确保比保证精密加工孔很容易。因此,设计遵循的原则是先加工面后加工孔表面。在零件的夹具设计中,主要是根据零件加工工序要求,分析应限的自由度数,进而根据零件的表面特征选定定位元件,再分析所选定位元件能否限定应限自由度。确定了定位元件后还需要选择夹紧元件,最后就是确定专用夹具的结构形式。
本次设计的题目是车床转盘加工专用铣床设计。首先针对所要加工的零件入手,对机床进行总体方案设计,进而确定机床的总体布局,随后,对主轴组件进行设计。在设计主轴组件时,以主轴为线索,在满足刚度、精度等要求下,完成其它(如轴承、轴向调节机构、锁紧机构等)所有零件的设计。
关键词:车床转盘零件;工艺;夹具;组合机床,主轴组件,刚度,主轴,轴承
目 录
摘 要 1
Abstract 2
绪 论 5
前 言 6
第1章 车床转盘零件的分析 7
1.1 车床转盘的用途 7
1.2 车床转盘的技术要求 7
1.3 车床转盘的工艺性 7
1.4 车床转盘的生产类型确定 8
第2章 车床转盘机械加工工艺规程设计 9
2.1 分析零件图 9
2.2 选择毛坯制造形式 9
2.3 拟定工艺路线 9
2.3.1 划分加工阶段 9
2.3.2 选择基准 9
2.3.3 确定加工方案 10
2.4 确定切削用量及工时定额 12
第3章 专用铣床总体结构设计 20
3.1 要采用专用机床原因 20
3.2 工艺分析 20
3.2.1 工艺方法的确定 20
3.2.2 机床总体布局 20
3.2.3 机床运动的确定 21
3.3 机床主要技术参数的确定 21
3.3.1 确定工件余量 21
3.3.2 选择切削用量 21
3.3.3 运动参数 22
3.3.4 动力参数—主运动驱动电动机功率的确定 23
3.4 进给驱动电动机功率的确定 24
3.5 主轴组件中相关部件 25
3.5.1 轴肩挡圈 25
3.5.2 挡圈 25
3.5.3 圆螺母 25
3.5.4 套筒 26
3.5.5 前、后支承的轴承盖 27
3.5.6 主轴用套筒及其锁紧部分 29
3.5.7 主轴尾部的内花键 29
3.6 主轴组件轴向调节机构 30
3.6.1 丝杠螺纹 30
3.6.2 丝杠轴承的选择 30
3.6.3 丝杠螺母 31
3.6.4 丝杠中段螺纹 31
3.6.5 丝杠上的内隔套 31
3.6.6 丝杠上调节用锥齿轮 32
第4章 铣两端面夹具设计 34
4.1设计要求 34
4.2夹具设计 34
4.2.1 定位基准的选择 34
4.2.2 切削力及夹紧力的计算 34
4.3定位误差的分析 35
4.4 确定夹具体结构和总体结构 36
4.5夹具设计及操作的简要说明 37
结 论 39
致 谢 40
参考文献 41
温馨提示:
1、题目前面的备注【字母数字编号】为本站整理分类的编号,与课题内容无关,请选题时忽视;
2、若题目上备注三维,则表示文件里包含三维源文件,由于三维组成零件数量较多,为保证预览截图的简洁性,本站将三维文件夹进行了打包。三维及CAD预览截图,均为本站电脑打开软件进行截图的,保证能够打开,下载原件超高清,下载后解压即可;
3、本站所有资源如无特殊说明,都需要本地电脑安装Office2007。图纸软件为AutoCAD,PROE,UG,SolidWorks,CATIA等;
4、本站所有图文资料仅供用户学习参考,不作为任何商用或其他用途;
5、本站不保证下载资源的准确性、安全性和完整性, 不包修改,不支持退换,同时也不承担用户因使用这些下载资源对自己和他人造成任何形式的伤害或损失;
6、 下载文件中如有侵权或不适当内容,请与我们联系,我们立即纠正。