

作品包括:
说明书1份,共37页,约16000字左右
CAD版本本图纸,共4张
XKA5750数控铣床主传动系统设计
摘要
本文介绍了XKA5750立式数控铣床的一些基本情况,简述了机床主传动系统方面的原理和类型,分析了各种传动方案的机理。XKA5750立式数控铣床主传动系统包括主轴电动机、主轴传动系统和主轴组件三部分。本文详细介绍了立式数控铣床主传动系统的设计过程,该立式数控铣床主轴变速箱是靠齿轮进行传动的,传动形式采用集中式传动,主轴变速系统采用多联滑移齿轮变速。齿轮传动具有传动效率高,结构紧凑,工作可靠、寿命长,传动比准确等优点。文中介绍了立式数控铣床主传动系统各种传动方案优缺点的比较、主传动方案的选择和确定、主传动变速系统的设计计算、主轴组件的设计、轴承的选用基润滑、关键零件的校核、以及主轴电动机的控制等设计过程。
关键词:数控铣床,主传动系统,主轴组件
目 录
1 绪 论 1
1.1我国数控机床的发展现状 1
1.2课题提出的意义和目的 2
2 XKA5750数控铣床主传动系统方案的确定 3
2.1数控铣床主传动系统简介 3
2.2 对数控铣床主传动系统的要求 3
2.3 主传动的类型及方案选择 4
3 主传动变速系统主要参数计算 6
3.1 计算切削功率 6
3.1.1切削力的计算 6
3.1.2切削功率的计算 6
3.1.3主轴转速范围的确定 6
3.2 计算主传动功率 7
3.3 分级变速箱的传动系统的设计及主轴电动机的功率的确定 7
3.3.1 变速级数Z的确定 7
3.3.2 电动机的功率的确定 8
3.3.3 电动机参数 8
3.3.4 分级变速箱的传动系统变速机构的确定 10
4 主轴组件设计 12
4.1概述 12
4.2主轴组件应满足的基本要求 12
4.3主轴的设计 13
4.3.1轴的分类 13
4.3.2主轴材料选择 13
4.3.3主轴结构设计 13
4.3.4主轴强度的校核 18
4.4轴承设计 20
4.4.1轴承的类型选择 20
4.4.2 轴承游隙等级的选择 21
4.4.3轴承布局 21
4.4.4轴承装置的设计 22
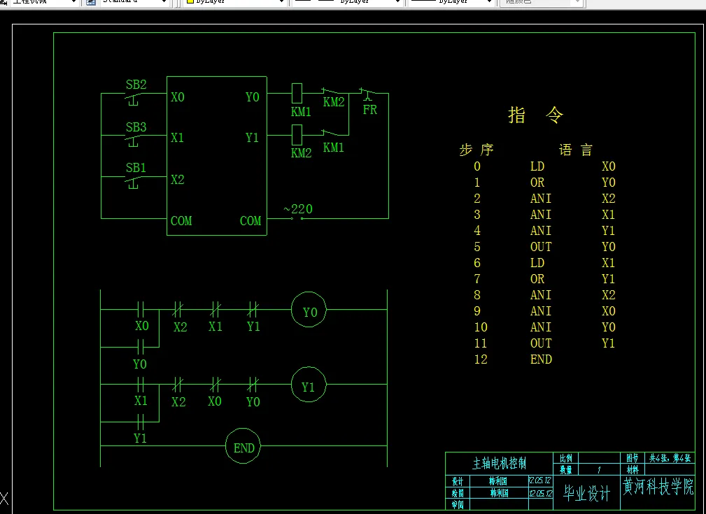
5 数控铣床主轴电气控制系统设计 26
5.1控制方式选择 26
5.2 PLC概述 26
5.2.1 可编程控制器的由来及现状 26
5.2.2 PLC按I/O点数和结构形式的分类 26
5.2.3 可编程控制器的特点 27
5.2.4 PLC的应用领域 28
5.3 PLC 在主轴电动机控制中的应用 28
结论 30
致谢 31
参考文献 32
温馨提示:
1、题目前面的备注【字母数字编号】为本站整理分类的编号,与课题内容无关,请选题时忽视;
2、若题目上备注三维,则表示文件里包含三维源文件,由于三维组成零件数量较多,为保证预览截图的简洁性,本站将三维文件夹进行了打包。三维及CAD预览截图,均为本站电脑打开软件进行截图的,保证能够打开,下载原件超高清,下载后解压即可;
3、本站所有资源如无特殊说明,都需要本地电脑安装Office2007。图纸软件为AutoCAD,PROE,UG,SolidWorks,CATIA等;
4、本站所有图文资料仅供用户学习参考,不作为任何商用或其他用途;
5、本站不保证下载资源的准确性、安全性和完整性, 不包修改,不支持退换,同时也不承担用户因使用这些下载资源对自己和他人造成任何形式的伤害或损失;
6、 下载文件中如有侵权或不适当内容,请与我们联系,我们立即纠正。