

作品包括:
说明书1份,共63页,约21000字左右
CAD版本本图纸,共6张
摘要
数控车床不仅能够车外圆还能用于镗孔、车端面、钻孔与铰孔。与其他种类的机床相比,车床在生产中使用最广。
本论文首先介绍了我国数控机床发展的过程与现状 ,并分析了其存在的问题 ;对数控机床的发展趋势进行了探讨;并对CW61100E数控车床主轴箱传动系统进行了设计与计算。
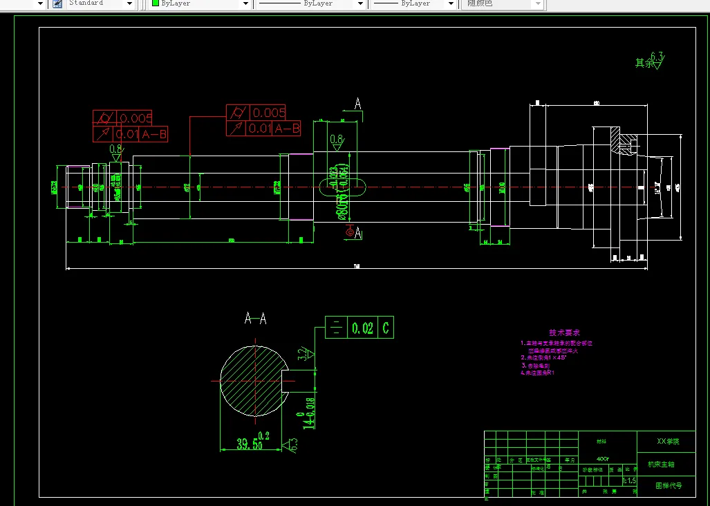
主轴箱有安装在精密轴承中的空心主轴和一系列变速齿轮组成。数控车床主轴可以获得在调速范围内的任意速度,以满足加工切削要求。
目前,数控车床的发展趋势是通过电气与机械装置进行无级变速。变频电机通过带传动和变速齿轮为主轴提供动力。通常变频电机调速范围3—5,难以满足主轴变速要求;串联变速齿轮则扩大了齿轮的变速范围 。
本设计将原来的带轮不卸荷结构变为了带轮卸荷结构,使输入轴在带处只受转矩,将轴上的径向力传动到车床机体上,改善了输入轴的受力情况。
关键词:主轴箱,无级调速,传动系统
目录
摘要 2
ABSTRACT 3
1 绪论 6
2 设计计算 7
2.1机床的主参数 7
2.2主运动参数 7
1.3切削力的计算 8
3 主动参数参数的拟定 10
3.1主运动调速范围的确定、计算各轴计算转速、功率和转矩 10
3.2 主电动机的选择 11
4 变速结构的设计 13
4.1 主变速方案拟定 13
4.2 变速结构式、结构网的选择 13
4.2.1 确定变速组及各变速组中变速副的数目 13
4.2.2 结构网的拟定 14
4.2.3 结构式的拟定 14
4.2.4 结构式的拟定 14
4.2.5 确定各变速组变速副齿数 15
5 传动件的设计 16
5.1 带传动设计 16
5.2选择带型 17
5.3确定带轮的基准直径并验证带速 17
5.4确定中心距离、带的基准长度并验算小轮包角 18
5.5确定带的根数Z 19
5.6确定带轮的结构和尺寸 19
5.7确定带的张紧装置 20
5.8计算压轴力 20
5.9 各变速组齿轮模数的确定和校核 22
5.9.1 齿轮模数的确定 22
5.9.2 齿宽的确定 26
5.9.3 齿轮结构的设计 26
5.10 传动轴的直径估算 27
5.10.1 确定各轴转速 27
5.10.2传动轴直径的估算:确定各轴最小直径 28
5.10.3 键的选择 29
5.11 传动轴的校核 29
5.11.1 传动轴的校核 29
5.11.2 键的校核 30
5.12摩擦离合器的选择和计算 30
5.13 齿轮校验 33
5.13.1 校核a变速组齿轮 34
5.13.2 校核b变速组齿轮 35
5.13.3 校核c变速组齿轮 36
5.14 轴承的选用与校核 38
5.14.1 各轴轴承的选用 38
5.14.2 各轴轴承的校核 38
5.15主轴组件设计 39
6 结构设计 50
6.1 结构设计的内容、技术要求和方案 50
6.2 展开图及其布置 50
6.3 I轴(输入轴)的设计 51
6.4 齿轮块设计 52
6.5 传动轴的设计 53
6.6 主轴组件设计 54
6.6.1 各部分尺寸的选择 54
6.6.2 主轴材料和热处理 55
6.6.3 主轴轴承 55
6.6.4 主轴与齿轮的连接 57
6.6.5 润滑与密封 57
6.6.6 其他问题 58
7 总结和展望 59
7.1本文工作总结 59
7.2课题展望 60
参考文献 61
致 谢 63
温馨提示:
1、题目前面的备注【字母数字编号】为本站整理分类的编号,与课题内容无关,请选题时忽视;
2、若题目上备注三维,则表示文件里包含三维源文件,由于三维组成零件数量较多,为保证预览截图的简洁性,本站将三维文件夹进行了打包。三维及CAD预览截图,均为本站电脑打开软件进行截图的,保证能够打开,下载原件超高清,下载后解压即可;
3、本站所有资源如无特殊说明,都需要本地电脑安装Office2007。图纸软件为AutoCAD,PROE,UG,SolidWorks,CATIA等;
4、本站所有图文资料仅供用户学习参考,不作为任何商用或其他用途;
5、本站不保证下载资源的准确性、安全性和完整性, 不包修改,不支持退换,同时也不承担用户因使用这些下载资源对自己和他人造成任何形式的伤害或损失;
6、 下载文件中如有侵权或不适当内容,请与我们联系,我们立即纠正。