

作品包括:
Word版设计说明书1份
CAD版本图纸,共5张
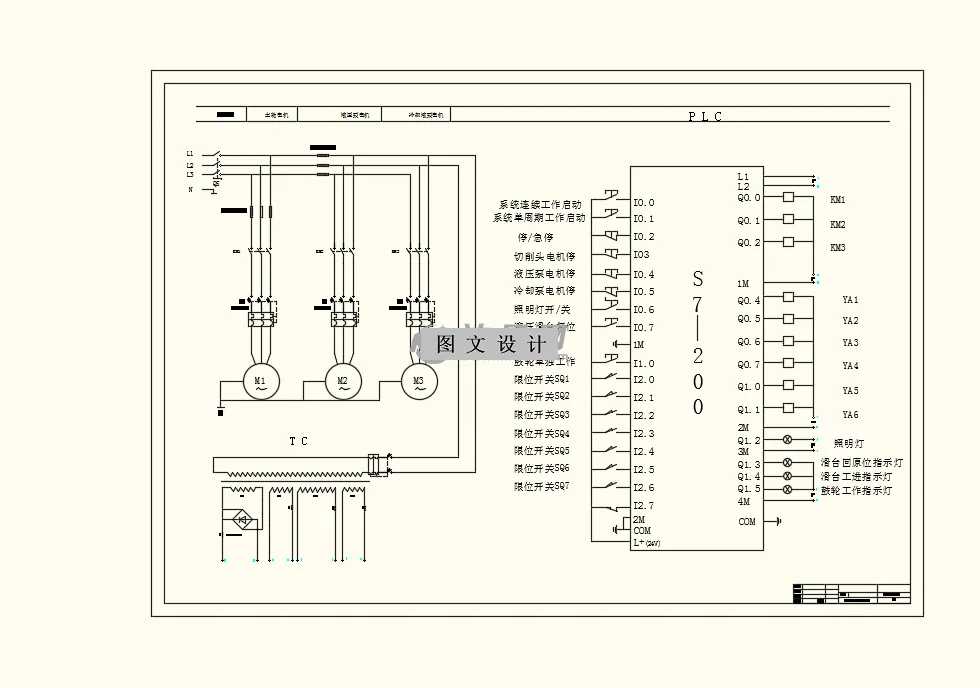
依据ZS1105型柴油机形体特征,再查阅读了大量的工艺制定规则之后设计出相关的加工工艺路线和专用组合钻床设计。在工艺路线上,通过常规的方法以大端面作基准。结合通有机床和专用机床的特点,首先加工机壳箱体的下端面先粗加工再精加工,然后对各个表面进行粗加工和半精加工。在完成面得加工之后,利用我设计的专用组合钻床对其他各面上的孔进行粗加工,对光孔进行精加工,倒角螺纹孔并攻丝,最后去毛刺。在通过不同加工方式的论证下,在经过前后比对经济成本等多方面的因素之后,此方案的各项指标均合理。通过网上查阅资料计算并确定机床的机械加工三要素,选择合理的主轴转速。在使用专用组合钻床,不但提高了工作效率。了解了组合钻床主要工作原理之后采用了新型的PLC控制系统完成各工序,实现机床的基本功能,并且通过绘制出的PLC控制系统原理图简要的说明了PLC控制系统。
温馨提示:
1、题目前面的备注【字母数字编号】为本站整理分类的编号,与课题内容无关,请选题时忽视;
2、若题目上备注三维,则表示文件里包含三维源文件,由于三维组成零件数量较多,为保证预览截图的简洁性,本站将三维文件夹进行了打包。三维及CAD预览截图,均为本站电脑打开软件进行截图的,保证能够打开,下载原件超高清,下载后解压即可;
3、本站所有资源如无特殊说明,都需要本地电脑安装Office2007。图纸软件为AutoCAD,PROE,UG,SolidWorks,CATIA等;
4、本站所有图文资料仅供用户学习参考,不作为任何商用或其他用途;
5、本站不保证下载资源的准确性、安全性和完整性, 不包修改,不支持退换,同时也不承担用户因使用这些下载资源对自己和他人造成任何形式的伤害或损失;
6、 下载文件中如有侵权或不适当内容,请与我们联系,我们立即纠正。