

作品包括:
说明书一份,30页,17000字左右.
任务书一份.
开题报告一份.
实习报告一份.
翻译一份
CAD版本图纸,共12张:
A0-夹具装备图.dwg
A1-夹具体.dwg
A1-夹具左支架.dwg
A2-工序图.dwg
A2-加工示意图.dwg
A3-导向柱.dwg
A3-定位块.dwg
A3-机床尺寸联系图.dwg
A3-压板.dwg
A4-衬块.dwg
A4-盖板.dwg
A4-球头.dwg
变速箱壳体组合机床的夹具设计
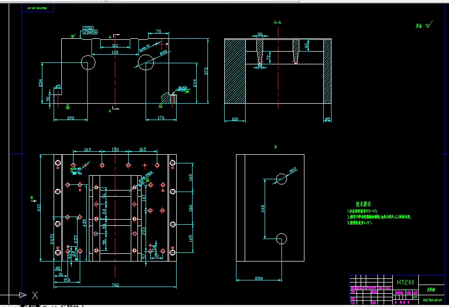
摘 要:变速箱壳体组合机床采用卧式双面加工方案。用于钻削被加工零件左侧面上的8个?8.5的孔,1个?11.9的孔,右侧6个?8.5的孔,2个?9.8的孔。主要包括总体设计和夹具设计两个部分。左侧主轴箱用来加工这9个孔,右侧主轴箱用来完成剩下的8个孔的加工,两主轴箱的中间是夹具部分。机床采用液压滑台实现刀具的进给,以保证进给速度的稳定可靠。工件选用“一面两孔”的定位方案,能够保证工件的位置精度要求,同时便于工件装夹,又有利于夹具的设计与制造。采用气压夹紧方式。为保证工件上被加工孔的位置精度,采用了导向装置。因工件批量较大,导向装置中的钻套容易磨损,所以采用了可换钻套。夹具体材料采用HT150,并在夹具体上开设排屑槽以防止切屑在定位元件工作表面上或其他装置中堆积而影响工件的正确定位和夹具的正常工作。
关键词:组合机床;总体设计;夹具
目 录
1前 言 1
1.1 本课题的意义 1
1.2 国内发展概况 1
1.3 课题由来及所需基本条件 2
2组合机床总体设计 3
2.1 总体方案论证 3
2.1.1 加工内容及要求 3
2.1.2 机床配置型式的选择 3
2.1.3 定位基准的选择 3
2.1.4 滑台型式的选择 4
2.2 确定切削用量及选择刀具 4
2.2.1 切削用量的选择 4
2.2.2 计算切削力、切削扭矩及切削功率 5
2.2.3 刀具结构的选择 5
2.3 总体设计—“三图一卡” 6
2.3.1 被加工零件工序图 6
2.3.2 加工示意图 6
2.3.3 机床尺寸联系总图 7
2.3.4 机床生产率计算卡 9
3 组合机床夹具设计 12
3.1 夹具设计的基本要求和步骤 12
3.1.1 夹具设计的基本要求 12
3.1.2 夹具设计的步骤 12
3.2 定位方案的确定 13
3.2.1 零件的工艺性分析 13
3.2.2 定位方案论证 13
3.2.3 误差分析 13
3.2.4 校核加工精度 15
3.3导向装置 15
3.4 夹紧方案的确定 16
3.4.1 夹紧装置的确定 16
3.4.2 夹紧力的确定 18
3.4.3 气缸的选择 19
3.5 夹具体的设计 20
3.6 夹具三维设计 20
3.6.1 三维建模及三维软件介绍 20
3.6.2 基于三维的夹具设计过程 21
4 结论 24
参 考 文 献 25
致 谢 26
附 件 清 单 27
温馨提示:
1、题目前面的备注【字母数字编号】为本站整理分类的编号,与课题内容无关,请选题时忽视;
2、若题目上备注三维,则表示文件里包含三维源文件,由于三维组成零件数量较多,为保证预览截图的简洁性,本站将三维文件夹进行了打包。三维及CAD预览截图,均为本站电脑打开软件进行截图的,保证能够打开,下载原件超高清,下载后解压即可;
3、本站所有资源如无特殊说明,都需要本地电脑安装Office2007。图纸软件为AutoCAD,PROE,UG,SolidWorks,CATIA等;
4、本站所有图文资料仅供用户学习参考,不作为任何商用或其他用途;
5、本站不保证下载资源的准确性、安全性和完整性, 不包修改,不支持退换,同时也不承担用户因使用这些下载资源对自己和他人造成任何形式的伤害或损失;
6、 下载文件中如有侵权或不适当内容,请与我们联系,我们立即纠正。