

作品包括:
Word版说明书1份,共38页,约16000字
CAD版本图纸,共5张
摘 要
组合机床是根据工件加工需要,以大量通用部件为基础,配以少量专用部件组成的一种高效专用机床。目前,组合机床主要用于平面加工和孔加工两类工序。其生产效率高,加工精度稳定,自动化程度高,降低人工劳动强度,因此广泛应用于到大批量生产场合。
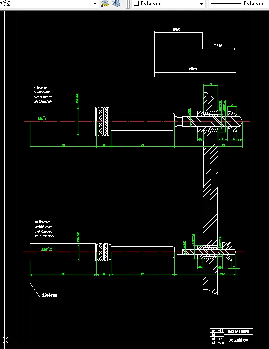
本课题设计了变速箱体钻孔工位组合机床及左多轴箱。在设计中,依据被加工工件进行工艺分析;以及零件本身材料选取合适的切削用量,在充分计算动力参数基础上对标准通用部件做了选择,绘制了加工示意图,机床联系尺寸图以及生产率计算卡并且初定多轴箱的轮廓尺寸。
多轴箱是组合机床的重要专用部件,它是根据加工示意图确定工件加工孔的数量和位置,切削用量和主轴类型设计的传递各主轴运动的动力部件。其动力来自通用的动力箱,与动力箱一起安装于进给滑台,可完成钻孔等加工工序。本设计最终目的是通过所设计的组合机床左多轴箱实现多孔的一次加工完成,提高了工作效率并且减低人工劳动强度。
关键词:组合机床,三图一卡,多轴箱
目 录
第一章 绪论 1
1.1 研究背景 1
1.2 国内外发展现状 2
1.3 主要技术指标 3
1.4 设计思路 3
第二章 零件分析 4
2.1 零件分析 4
2.2 定位基准及夹紧点的选择 5
2.3 加工方案 6
2.4 箱体尺寸的确定 6
2.5 切削用量的确定 7
2.6 切削力,切削转矩和切削功率等动力参数计算 7
2.6.1 切削力的计算 7
2.6.2 各轴转矩的计算 8
2.6.3 各轴切削功率的计算 8
2.6.4 各轴刀具耐用度的计算 8
2.7 导向的选择及其相关尺寸的计算 8
2.8 加工示意图 11
2.9 本章小结 12
第三章 组合机床总体体设计 13
3.1 选择动力部件 13
3.1.1 动力部件的选取计算 13
3.1.2 选取的动力部件的主要尺寸及性能 14
3.2 机床联系尺寸图 14
3.2.1 机床装料高度 14
3.2.2 中间底座轮廓尺寸 15
3.3 生产率计算卡 16
3.3.1 生产率计算卡的作用 16
3.3.2 单件加工时间 17
3.3.3 机床生产率与负荷率 17
3.4 本章小结 18
第四章 多轴箱的设计 19
4.1 多轴箱的概述 19
4.2 多轴箱设计原始依据 19
4.3 主轴、传动轴及齿轮的确定 20
4.4 多轴箱传动系统的设计与计算 21
4.4.1 对多轴箱传动系统的一般要求 21
4.4.2 主轴分布类型及传动系统设计 22
4.4.3 齿轮的设计计算 24
4.4.4 验算各主轴转速 26
4.5 多轴箱坐标计算 27
4.6 本章小结 29
第五章 全文总结 30
参考文献 31
致 谢 32
毕业设计小结 33
附 录 34
温馨提示:
1、题目前面的备注【字母数字编号】为本站整理分类的编号,与课题内容无关,请选题时忽视;
2、若题目上备注三维,则表示文件里包含三维源文件,由于三维组成零件数量较多,为保证预览截图的简洁性,本站将三维文件夹进行了打包。三维及CAD预览截图,均为本站电脑打开软件进行截图的,保证能够打开,下载原件超高清,下载后解压即可;
3、本站所有资源如无特殊说明,都需要本地电脑安装Office2007。图纸软件为AutoCAD,PROE,UG,SolidWorks,CATIA等;
4、本站所有图文资料仅供用户学习参考,不作为任何商用或其他用途;
5、本站不保证下载资源的准确性、安全性和完整性, 不包修改,不支持退换,同时也不承担用户因使用这些下载资源对自己和他人造成任何形式的伤害或损失;
6、 下载文件中如有侵权或不适当内容,请与我们联系,我们立即纠正。