

作品包括:
Word版说明书1份,共46页,约13000字
CAD版本图纸,共6张
摘 要
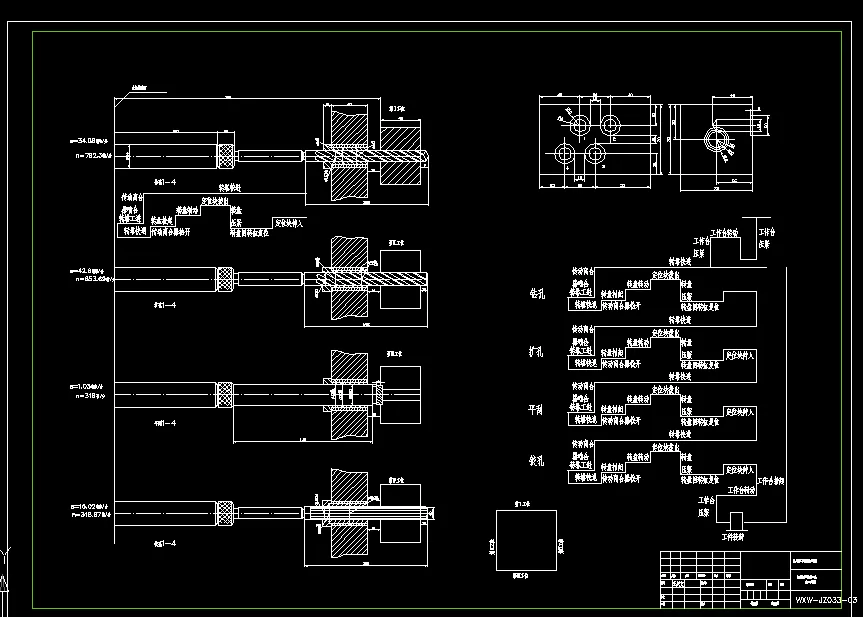
电磁阀体进出油口孔加工组合机床,它的配置型式具有固定式液压夹紧的单工位组合机床,这类组合机床夹具和工作台都是固定不动的,动力滑台实现进给运动。滑台上的动力箱实现切削运动,根据工件结构特点,以及精确要求,采用结合面为定值基准面。 在基准面对应的另一圆柱面上,用压块压紧,由于结合面的加工精度较高,以它为基面,完全可以达到要求的加工精度。
组合机床总体设计三图一卡①“被加工零件工序图”它是组合机床的设计的主要依据,它是制造使用,检修和调整机床的重要技术条件②绘制加工示意图,它是刀具夹具,多轴箱,液压电器装置设计及通用部件选择主要原始资料,它是调整机床,刀具及试车依据。③绘制联系和运动关系及检验机床各部件相对于位置及联系是否满足加工要求,通用部件的选择是否合适,并为进一步开展主轴箱,夹具等专用部件,零件的设计提供依据。④相对生产率计算卡,它用来反映机床的加工过程,完成这一动作所需要的时间,切削用量,机床生产率及机床负荷率。
关键词:组合机床、液压系统、液压缸,自动循环、主轴箱。
目录
摘 要 I
ABSTRACT II
第一章 绪 论 1
第二章 电磁阀体进出油口孔的加工工艺 3
2.1零件的分析 3
2.1.1.零件的作用 3
2.1.2.零件的工艺分析 3
2.2工艺规程的设计 4
2.2.1.确定毛坯的制造形式 4
2.2.2.基准的选择: 4
2.3制订工艺路线 4
2.4确定工序尺寸及公差 6
2.5.钻、扩、平刮、铰孔的切削用量及其基本工时 10
第三章 电磁阀体的进出油口孔的加工组合机床液压系统的设计 12
3.1负载分析 13
3.2.负载图和速度图的绘制 15
3.3液压缸主要参数的确定 15
3.3.1.初选液压缸的工作压力 15
3.3.2.计算液压缸的尺寸 16
3.4.液压缸的强度计算 19
3.5.液压系统图的拟订: 26
3.5.1.液压回路的选择 26
3.5.2组成液压系统 29
3.6.液压元件的计算和选择 32
3.6.1.液压泵 32
3.6.2.阀类元件及其辅助元件 32
3.8.油箱的选择 38
3.9液压系统的性能验算 39
致 谢 42
参 考 文 献 43
温馨提示:
1、题目前面的备注【字母数字编号】为本站整理分类的编号,与课题内容无关,请选题时忽视;
2、若题目上备注三维,则表示文件里包含三维源文件,由于三维组成零件数量较多,为保证预览截图的简洁性,本站将三维文件夹进行了打包。三维及CAD预览截图,均为本站电脑打开软件进行截图的,保证能够打开,下载原件超高清,下载后解压即可;
3、本站所有资源如无特殊说明,都需要本地电脑安装Office2007。图纸软件为AutoCAD,PROE,UG,SolidWorks,CATIA等;
4、本站所有图文资料仅供用户学习参考,不作为任何商用或其他用途;
5、本站不保证下载资源的准确性、安全性和完整性, 不包修改,不支持退换,同时也不承担用户因使用这些下载资源对自己和他人造成任何形式的伤害或损失;
6、 下载文件中如有侵权或不适当内容,请与我们联系,我们立即纠正。