

作品包括:
Word设计说明书1份,共41页,约16000字
CAD版本图纸,共4张

摘要
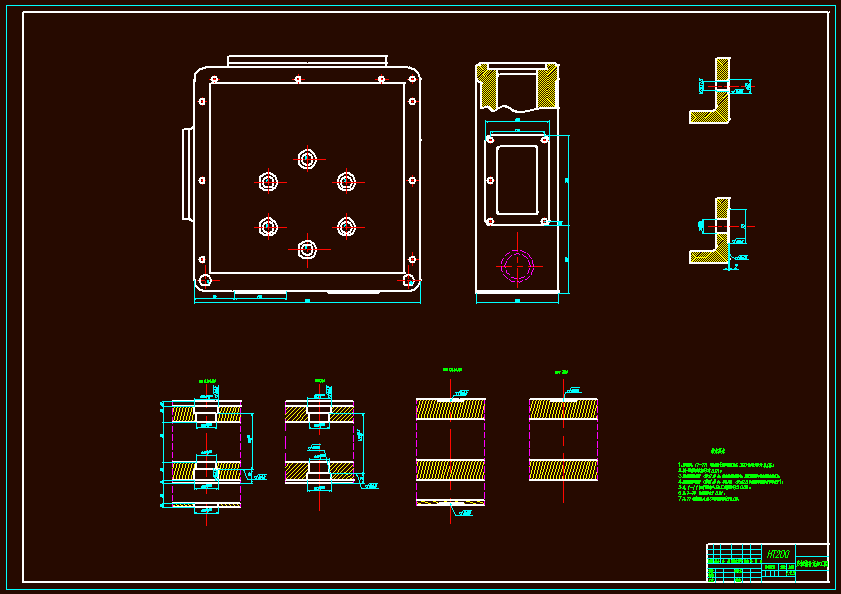
随着国家产业结构改革的不断深入,我国制造业的发展也开始发生质的改变,工厂自动化能力不断提高。在实际生产中,组合机床就是根据工件加工需要,以大量通用部件为基础,配以少量专用部件组成的一种高效专用机床。这种组合机床可用于加工大批量零件,快捷高效,生产效率高,因而成为现阶段工厂中机械加工的首选。本次设计任务是:填料箱盖钻孔组合钻床及主轴箱设计。设计过程主要阐述了组合钻床上多轴箱的工作原理,并进行了组合钻床的联系尺寸的计算,以及主轴箱的设计和计算、主轴位置的确定等。本课题设计的基本任务是完成机械部分的设计,主要绘制的图纸有有机床联系尺寸图、主轴箱装配图,主轴箱补充加工示意图。
主轴箱是组合机床的主要部件之一,其主要作用是:根据被加工零件的加工要求安排各主轴位置,并将动力与运动由动力部件传给各工作主轴,使之得到要求的转速和转向。
关键词:组合机床,填料箱盖,主轴箱
目 录
前 言 1
第1章 引言 2
1.1 组合机床概述 2
1.2 该课题研究的目的和意义 2
1.3 组合机床发展史 2
1.4 国内外该研究技术现状 3
1.5 本课题研究的基本内容 4
1.6 本课题主要研究解决的难点问题和拟采用的办法 5
第2章 多孔钻组合机床总体方案设计 6
2.1 零件分析 6
2.1.1 零件的技术要求 6
2.1.3 选择定位基准的原则及应注意的问题 7
2.1.4 确定夹压位置应注意的问题 7
2.2 工艺分析 7
2.3 确定机床的配置形式 8
2.3.1 不同配置形式组合机床的特点及适应性 9
2.3.2 不同配置形式组合机床的加工精度 9
2.3.3 选择机床配置形式应注意的问题 9
第3章 组合机床设计 11
3.1 切削用量的确定 11
3.2 确定切削力、切削扭矩、切削功率 11
3.3 选择刀具结构 13
3.4 导向结构的选择 13
3.5 确定主轴类型、尺寸、外伸长度 15
3.6 选择刀具接杆 15
3.7 确定加工示意图的联系尺寸 16
3.8 工作进给长度的确定 17
3.9 快进长度的确定 17
3.10 机床尺寸联系图 18
第4章 主轴箱设计 22
4.1 多轴箱的基本结构及表达方法 22
4.2 通用箱体 22
4.2.1 通用箱体类零件 22
4.2.2 通用钻削类主轴 23
4.3 多轴箱的设计 23
4.3.1 绘制多轴箱设计原始依据图 24
4.3.2 确定主轴结构型式及齿轮模数 25
4.4 多轴箱的传动系统设计 26
4.5 多轴箱传动轴位置及齿轮齿数确定 29
4.5.1 确定传动轴8的位置及齿轮齿数 29
4.5.2 确定传动轴9的位置及与主轴5、6间的齿轮副齿数 30
4.5.4 确定传动轴10的位置及与驱动轴 间的齿轮副齿数 31
4.5.5 确定油泵轴11的位置及其与主轴7的齿轮副齿数 31
4.5.6确定合拢传动轴16的位置 31
4.5.7确定主轴16与其他轴的位置及齿轮副齿数 31
4.5.8确定驱动轴 和油泵轴17的位置和齿轮副齿数 32
4.6 多轴箱总图绘制 32
结 论 34
谢 辞 35
参考文献 36
温馨提示:
1、题目前面的备注【字母数字编号】为本站整理分类的编号,与课题内容无关,请选题时忽视;
2、若题目上备注三维,则表示文件里包含三维源文件,由于三维组成零件数量较多,为保证预览截图的简洁性,本站将三维文件夹进行了打包。三维及CAD预览截图,均为本站电脑打开软件进行截图的,保证能够打开,下载原件超高清,下载后解压即可;
3、本站所有资源如无特殊说明,都需要本地电脑安装Office2007。图纸软件为AutoCAD,PROE,UG,SolidWorks,CATIA等;
4、本站所有图文资料仅供用户学习参考,不作为任何商用或其他用途;
5、本站不保证下载资源的准确性、安全性和完整性, 不包修改,不支持退换,同时也不承担用户因使用这些下载资源对自己和他人造成任何形式的伤害或损失;
6、 下载文件中如有侵权或不适当内容,请与我们联系,我们立即纠正。