

作品包括:
Word版说明书一份,共32页,约12000字
CAD版本图纸,共11张
柴油机气缸体顶底面粗铣组合机床总体及夹具设计
摘要:本设计课题为柴油机气缸体顶底面粗铣组合机床总体及夹具设计。机床总体设计主要完成双面铣组合机床的“三图一卡”;拟订夹具的结构方案、绘制夹具总图及其零件图。
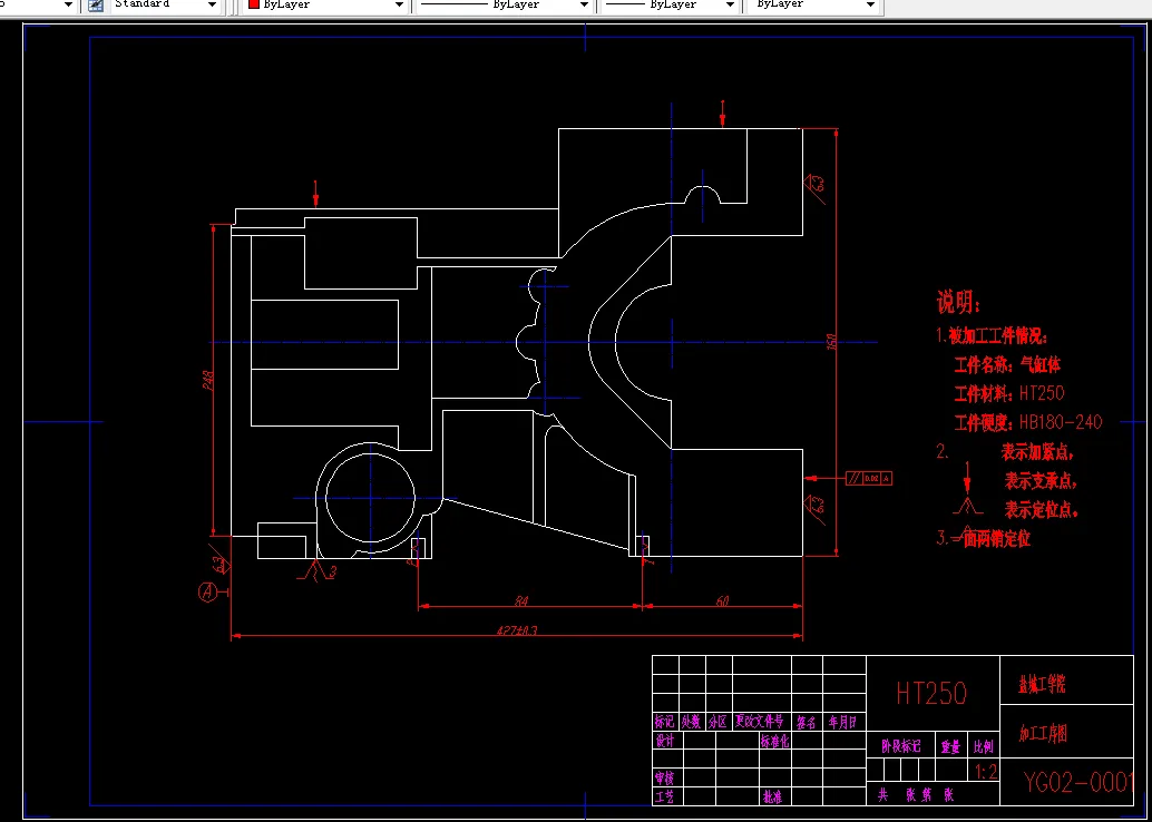
根据气缸体尺寸、形状、材料、加工部位的结构和加工精度、表面粗糙度等要求,确定选用卧式双面铣组合机床;为实现工件快进和工进配以移动工作台;被加工平面为大平面,材料为HT250,故刀具选择硬质合金端铣刀。夹具安装在移动工作台之上。在被加工零件的定位方面,本方案采用了“一面两销”的定位方式,以达到较好的定位效果。夹紧是通过手动夹紧,以四个压板实现夹紧,这样能很好的防止夹紧力作用下工件产生形变。由于被加工零件体积、重量较大,故采用支承板支承。另外通过夹具误差设计分析,能够较好地保证加工精度。
通过这样的设计来达到加工要求,以便能完成对柴油机气缸体顶底的粗铣,满足工厂制定的产量。
关键词:组合机床; 夹具; 气缸体; 铣削
目 录
1 前言………………………………………………………………………………1
2 机床总体设计…………………………………………………………………3
2.1 被加工零件分析………………………………………………………………3
2.2 机床结构的确定………………………………………………………………3
2.3 本组合机床的特点………………………………………………………………3
2.4 切削用量的确定………………………………………………………………3
2.5 各部件的造型………………………………………………………………4
2.6 绘制“三图一卡”………………………………………………………………7
3 夹具设计…………………………………………………………………………………12
3.1 概述……………………………………………………………………………………12
3.2 设计的前期准备………………………………………………………………………13
3.3 定位装置的确定……………………………………………………………………13
3.4 确定夹紧方案……………………………………………………………………16
3.5 其他元件的设计……………………………………………………………………18
3.6 夹具的公差配合及技术要求…………………………………………………………18
3.7 工序的精度分析……………………………………………………………………21
4 总结………………………………………………………………………………………25
5参考文献…………………………………………………………………………………26
6 致谢……………………………………………………………………………………27
温馨提示:
1、题目前面的备注【字母数字编号】为本站整理分类的编号,与课题内容无关,请选题时忽视;
2、若题目上备注三维,则表示文件里包含三维源文件,由于三维组成零件数量较多,为保证预览截图的简洁性,本站将三维文件夹进行了打包。三维及CAD预览截图,均为本站电脑打开软件进行截图的,保证能够打开,下载原件超高清,下载后解压即可;
3、本站所有资源如无特殊说明,都需要本地电脑安装Office2007。图纸软件为AutoCAD,PROE,UG,SolidWorks,CATIA等;
4、本站所有图文资料仅供用户学习参考,不作为任何商用或其他用途;
5、本站不保证下载资源的准确性、安全性和完整性, 不包修改,不支持退换,同时也不承担用户因使用这些下载资源对自己和他人造成任何形式的伤害或损失;
6、 下载文件中如有侵权或不适当内容,请与我们联系,我们立即纠正。