

作品包括:
说明书1份,共81页,约26000字左右
CAD版本本图纸,共8张
摘要
电液换向阀在液压系统中是一种常见的液压元件,同时也是一种十分重要的液压元件,研究电液换向阀会有助于更好的了解液压系统。
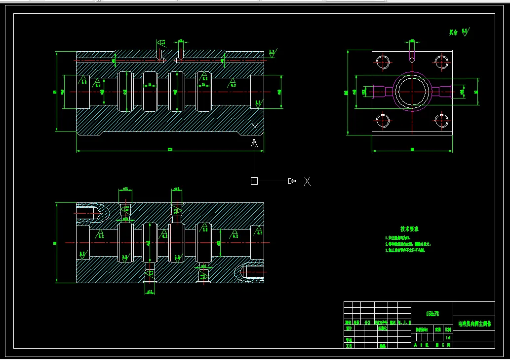
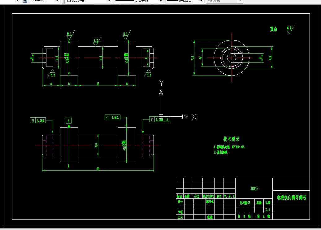
电液换向阀是由电磁铁控制的电磁换向阀和液控换向阀的组合,它是用电磁换向阀控制液控换向阀的工作,变换流体流动方向的控制阀。电磁换向阀和液控换向阀的本质都是换向阀,所以可以先研究电磁换向阀再研究液控换向阀。本次论文对电液换向阀进行了结构设计和性能分析。内容分别包括了前言、主阀芯设计、主阀弹簧设计、主阀螺钉设计、主阀体和阀盖设计、主阀性能验算、导阀芯设计、导阀弹簧设计、导阀螺钉设计、导阀体和阀盖设计、导阀电磁铁选型、导阀性能验算。根据设计的零件的各参数还绘制了零件图,同时也绘制了装配图。
本次设计的电液换向阀满足了设计要求并且可以正常进行工作,通过本文可以很好的了解电液换向阀的工作原理和设计方法,为研究其他的液压元件提供了资料参考。
关键词:液压元件;液压系统;电磁换向阀;电液换向阀;结构设计;性能分析
目录
前言 1
1 绪论 3
1.1 电液换向阀的组成 3
1.2 电液换向阀的工作原理 3
1.3 电液换向阀研究现状 4
2 总体方案设计 5
2.1 设计方案的确定 5
2.2 主阀设计要求的确定 5
2.3 导阀设计要求的确定 5
3 主阀的结构参数设计 7
3.1 主阀零件设计 7
3.1.1 主阀芯尺寸参数计算 7
3.1.2 导阀芯受力计算 9
3.1.3 主阀弹簧设计 11
3.1.4 主阀螺钉设计 15
3.1.5 主阀体的设计 18
3.1.6 主阀盖的设计 19
3.2 主阀性能性能验算 20
3.2.1 压力损失 20
3.2.2 内泄漏量 21
3.2.3 响应时间 22
3.2.4 最低控制压力 23
3.2.5 压力冲击量 25
4 导阀的结构参数设计 26
4.1 导阀零件设计 26
4.1.1 主阀芯尺寸参数计算 26
4.1.2 导阀芯受力计算 28
4.1.3 导阀弹簧设计 30
4.1.4 导阀螺钉设计 33
4.1.5 导阀体的设计 37
4.1.6 导阀电磁铁 38
4.2 导阀性能验算 39
4.2.1 压力损失 39
4.2.2 内泄漏量 41
4.2.3 换向时间 41
4.2.4 对中时间 42
4.2.5 压力冲击量 43
5 技术经济分析 44
6 结论 45
致谢 46
参考文献 47
附录A 译文 48
附录B 外文文献 61
温馨提示:
1、题目前面的备注【字母数字编号】为本站整理分类的编号,与课题内容无关,请选题时忽视;
2、若题目上备注三维,则表示文件里包含三维源文件,由于三维组成零件数量较多,为保证预览截图的简洁性,本站将三维文件夹进行了打包。三维及CAD预览截图,均为本站电脑打开软件进行截图的,保证能够打开,下载原件超高清,下载后解压即可;
3、本站所有资源如无特殊说明,都需要本地电脑安装Office2007。图纸软件为AutoCAD,PROE,UG,SolidWorks,CATIA等;
4、本站所有图文资料仅供用户学习参考,不作为任何商用或其他用途;
5、本站不保证下载资源的准确性、安全性和完整性, 不包修改,不支持退换,同时也不承担用户因使用这些下载资源对自己和他人造成任何形式的伤害或损失;
6、 下载文件中如有侵权或不适当内容,请与我们联系,我们立即纠正。