

作品包括:
word版本说明书一份,共69页,约30000字
CAD版本图纸,共11张
A0-装配图.dwg
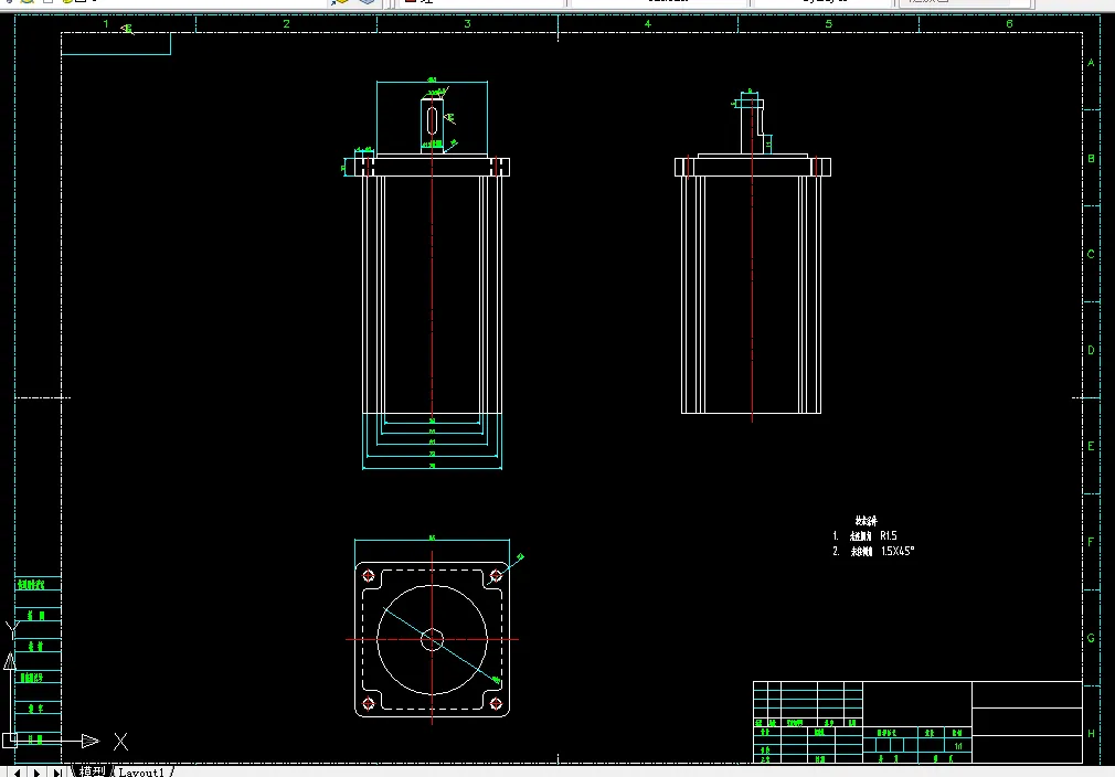
A2-步进电机.dwg
A2-反应室筒体.dwg
A2-观察窗.dwg
A2-门.dwg
A2-收集室筒体.dwg
A2-阴极.dwg
A3-步进电机控制.dwg
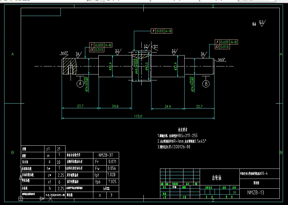
A3-齿轮轴.dwg
A3-法兰.dwg
A3-视孔盖.dwg
摘 要
纳米科技是二十世纪八十年代发展起来的一门新兴交叉、前沿学科。在二十一世纪纳米科技是三大重要技术之一,属于前沿性课题之一。其中纳米粉体的制备是纳米科技的重要研究内容之一。蒸发冷凝法制备纳米粉体是一种较早的物理方法,本文用电弧法制备,也是属于蒸发冷凝法的一种。
本文首先介绍了纳米科技的基本知识及其发展状况和应用前景。然后设计了一套电弧加热法制备纳米粉体的实验装置。该装置的工作原理是在一定压力的惰性气氛或反应气氛中,将金属等材料作为电弧的电极,使其在高温电弧等离子的作用下被溶化、蒸发。蒸汽遇到周围的气体就会被冷却或发生反应形成超微粉。该系统共有加热系统、真空系统、生成室、收集室等几部分组成。首先针对纳米颗粒的生产条件设计了生成室和真空系统。然后用电弧加热制备生成纳米蒸汽。冷阱采用了不断输入液氮实现了急速冷却,使蒸汽快速成核以保证纳米尺度。最后通过采用手套箱结构的收集装置实现真空室中粉体的包装从而避免了氧化。整个系统易于加工实现,能够满足制备纳米微粒的实验需求。
关键词:纳米粉体; 电弧加热; 制备; 冷阱
目 录
第一章 绪 论 1
第1.1节 引 言 1
第1.2节 金属纳米粉的制备方法概述 4
1.2.1机械法 4
1.2.2物理法 5
1.2.3化学法 6
第1.3节 纳米粉体制备及应用国内外现状 7
1.3.1纳米粉体制备及应用的国内现状 7
1.3.2纳米粉体制备及应用的国外现状 9
第1.4节 本文研究的主要内容 11
第二章 电弧法制备金属纳米粉研究 13
第2.1节 电弧 13
2.1.1电弧物理 13
2.1.2弧柱中的气体电离 14
2.1.3电极的电子发射 16
2.1.4电弧的物理特性 18
第2.2节 电弧的应用 23
第2.3节 电弧制取金属纳米粉体 24
2.3.1电弧法制备金属纳米粉体的原理 25
2.3.2金属纳米粉成核机理 26
第三章 真空系统的设计 28
第3.1节 实验装置的整体结构设计 28
第3.2节 真空系统的设计 29
3.2.1真空获得设备——真空机组及其选用 30
3.2.2真空容器的设计 33
3.2.3真空测量系统 44
第3.3节 真空系统设计中的注意点 46
第3.4节 真空管路 48
第3.5节 真空材料 48
第3.6节 本章小结 49
第四章 加热装置的设计 50
第4.1节 电弧加热原理 50
第4.2节 水冷电极 51
4.2.1水冷电极的设计要点 51
4.2.2 加热阴极的设计 52
4.2.3加热阳极的设计 53
4.2.4引弧装置的简介 54
第4.3节 本章小结 56
第五章 粉体的生成与收集 57
第5.1节 粉体获得装置 57
5.1.1冷阱装置 57
5.1.2刮刀 58
第5.2节 收集室 59
第5.3节 其它系统 60
5.3.1气路保护 60
5.3.2过滤膜 61
第5.4节 本章小结 61
第六章 结论与展望 62
英文原文……………………………………………………….66
中文译文…………………………………………………………………81
温馨提示:
1、题目前面的备注【字母数字编号】为本站整理分类的编号,与课题内容无关,请选题时忽视;
2、若题目上备注三维,则表示文件里包含三维源文件,由于三维组成零件数量较多,为保证预览截图的简洁性,本站将三维文件夹进行了打包。三维及CAD预览截图,均为本站电脑打开软件进行截图的,保证能够打开,下载原件超高清,下载后解压即可;
3、本站所有资源如无特殊说明,都需要本地电脑安装Office2007。图纸软件为AutoCAD,PROE,UG,SolidWorks,CATIA等;
4、本站所有图文资料仅供用户学习参考,不作为任何商用或其他用途;
5、本站不保证下载资源的准确性、安全性和完整性, 不包修改,不支持退换,同时也不承担用户因使用这些下载资源对自己和他人造成任何形式的伤害或损失;
6、 下载文件中如有侵权或不适当内容,请与我们联系,我们立即纠正。