

作品包括:
说明书1份,共53页,约15000字左右
CAD版本图纸,共20张
UG三维图一份
摘要
综合国内外的有关文献,对目前液压电梯与利益车库的发展现状和应用前景作简单概括,并在此基础上提出本课题,同时介绍本论文的主要研究内容,即液压电梯与立体车库的组合设计;拟定液压电梯设计方案,设计原理图;立体车库的主要结构设计;液压电梯与立体车库的主要参数确定和校核。因此,本课题致力于以上几个要求,对老小区进行液压电梯和立体车库的加装,切实缓解目前存在于老小区中的停车难和上楼难问题。
关键词:立体车库液压电梯组合校核
目录
摘要 I
Abstract II
第一章绪论 1
1.1立体车库国内外的发展概况 1
1.1.1国外的发展状况 1
1.1.2国内的发展现状 2
1.2 液压电梯国内外现状 4
1.2.1 国内 4
1.2.2 国外 4
1.3液压电梯和立体车库组合机构图 5
第二章立体车库的总体设计方案 6
2.1 立体车库提升方式的选择 6
2.2 立体车库的其他部件 7
2.3 立体车库的设计参数 7
2.4 立体车库结构设计的内容及要求 8
第三章液压电梯设计方案论证 9
3.1 剪叉液压电梯 9
3.1.1 结构特点 9
3.1.2 工作原理 9
3.2 直升式液压电梯 10
3.2.1结构特点 10
3.2.2工作原理 10
3.3 背篓式液压电梯 11
3.3.1结构特点 11
3.3.2工作原理 12
3.4 结论及选定方案 12
3.4.1 选定方案 13
3.4.2 电梯总体布局 13
第四章立体车库主体框架设计 15
4.1 立体车库钢结构设计 15
4.1.1 支撑柱设计 15
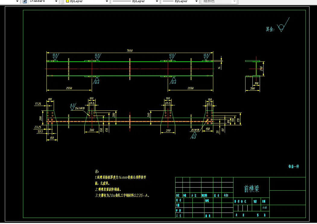
4.1.2 横梁受力分析 19
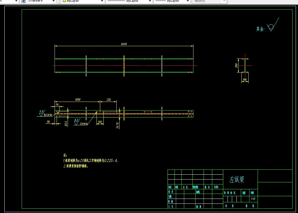
4.1.3 纵梁受力分析 20
4.2 载车板受力分析校核 22
第五章液压电梯的校核 25
5.1电梯受力计算分析: 25
5.2 滚轮轴的设计计算 29
5.2.1 滚轮轴的计算 29
5.2.2 滚轮轴的弯矩图 30
5.3 定滑轮轴的计算、校核 31
5.3.1 定滑轮轴的计算 31
5.3.2 定滑轮轴的剪力弯矩图 31
5.4 钢丝绳直径的选择 32
第六章立体车库的传动系统 34
6.1 上层载车板提升装置设计 34
6.1.1 升降传动系统设计 34
6.1.2 升降液压系统设计 36
6.1.3 升降液压系统链轮设计 38
6.1.4 升降液压系统传动轴设计 39
6.2 横移液压系统设计 41
第七章液压电梯液压油路设计 43
第八章结论与展望 46
8.1结论 46
8.2不足之处及未来展望 46
致谢 47
参考文献 48
温馨提示:
1、题目前面的备注【字母数字编号】为本站整理分类的编号,与课题内容无关,请选题时忽视;
2、若题目上备注三维,则表示文件里包含三维源文件,由于三维组成零件数量较多,为保证预览截图的简洁性,本站将三维文件夹进行了打包。三维及CAD预览截图,均为本站电脑打开软件进行截图的,保证能够打开,下载原件超高清,下载后解压即可;
3、本站所有资源如无特殊说明,都需要本地电脑安装Office2007。图纸软件为AutoCAD,PROE,UG,SolidWorks,CATIA等;
4、本站所有图文资料仅供用户学习参考,不作为任何商用或其他用途;
5、本站不保证下载资源的准确性、安全性和完整性, 不包修改,不支持退换,同时也不承担用户因使用这些下载资源对自己和他人造成任何形式的伤害或损失;
6、 下载文件中如有侵权或不适当内容,请与我们联系,我们立即纠正。