

作品包括:
说明书1份,共21页,约14000字左右
CAD版本图纸,共17张
摘 要
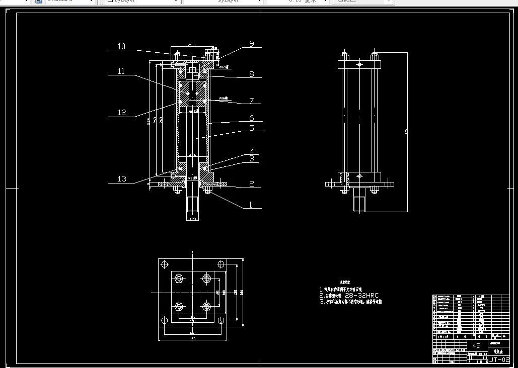
液压式双头套皮辊机主要是由许多通用部件和少量的专用部件组成的。本机适用于棉纺厂的精梳、并条机、粗纱机和细纱机等设备上用的各种规格丁氰皮辊的压系统来实现,达到了自动化的生产要求,并且机器在整个运行过程中套入和压出.
主要实物参照是由昆山协孚厂设制造的液压皮辊机。液压式双头套皮辊机设计,主要是完成纺织皮辊的套入和压出,是棉纺织行业的必备配套设备。
在设计技术标准上主要按照各零部件的材料选择、失效形式、设计准则、结构要求等来设计机器。液压式式双头套皮辊机主要是采用电动机带动油缸传动,同时采用丝杆带动横臂导杆在导轨上滑动,进而实现皮辊的套入和压出。本设计的主要创新点在于用液压传动系统取代了传统的机械传动,并且套皮辊机设计成双头,能同时完成两个皮辊的压入、套出。
关键词: 液压 导轨 油缸
目 录
1 前言 ...................................................3
1 整体方案论证 .............................................4
1.1 原始数据 .................................................5
1.2 机器的结构和传动原理 .....................................5
2 液压缸的设计 ...............................................6
2.1活塞和活塞杆的选择 .....................................7
2.2 活塞杆导向套及防尘圈的选择 ...........................7
3 液压泵的设计 .............................................9
3.1 液压泵的设计根据泵的工作压力和泵的流量确定 ...............9
4 电动机选择 ...............................................9
4.1 选择电动机的类型和结构型式 ...............................10
4.2 确定电动机功率及其它参数 ..............................10
5 整机及其他附件的设计 .....................................10
5.1 机体设计 ...............................................11
5.2 导轨设计 ............................................11
5.3 其它 ...............................................12
6 液压阀及其管路的选择 ....................................12
6.1 液压阀概述 ............................................12
6.2 溢流阀的选择 ............................................13
6.3 方向控制阀的选用 .........................................13
6.4 其它附件 ...............................................13
7 油箱的设计 ...............................................14
7.1 液压油箱的设计 ...........................................14
8 集成块设计 ...............................................17
9 滤油器的选用 .............................................18
10 设计说明 .................................................19
11 结论 .....................................................19
工作总结 .................................................20
参考文献 .................................................20
附件清单 .................................................21
温馨提示:
1、题目前面的备注【字母数字编号】为本站整理分类的编号,与课题内容无关,请选题时忽视;
2、若题目上备注三维,则表示文件里包含三维源文件,由于三维组成零件数量较多,为保证预览截图的简洁性,本站将三维文件夹进行了打包。三维及CAD预览截图,均为本站电脑打开软件进行截图的,保证能够打开,下载原件超高清,下载后解压即可;
3、本站所有资源如无特殊说明,都需要本地电脑安装Office2007。图纸软件为AutoCAD,PROE,UG,SolidWorks,CATIA等;
4、本站所有图文资料仅供用户学习参考,不作为任何商用或其他用途;
5、本站不保证下载资源的准确性、安全性和完整性, 不包修改,不支持退换,同时也不承担用户因使用这些下载资源对自己和他人造成任何形式的伤害或损失;
6、 下载文件中如有侵权或不适当内容,请与我们联系,我们立即纠正。