

作品包括:
说明书1份,共47页,约13000字左右
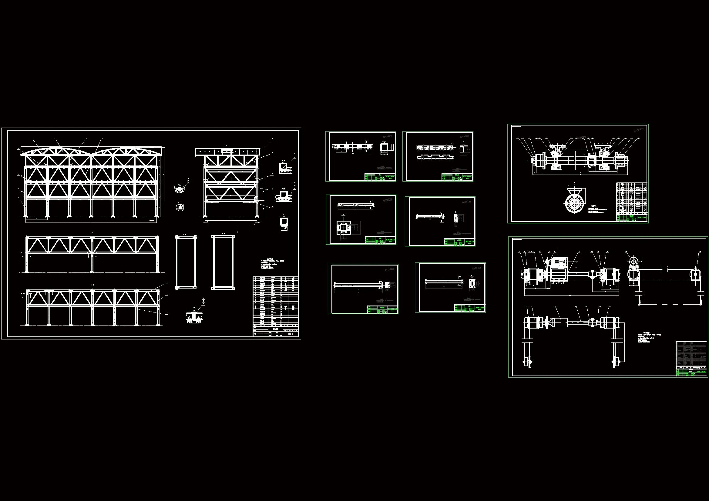
CAD版本本图纸,共8张
轧管机轧辊侧压机构设计
摘要
钢管在钢铁产品中属于经济断面、不可替代的重要品种。轧管机作为生产无缝钢管的主要设备之一,其主要作用是对钢管进行轧制,而在轧制前,轧辊侧压装置必不可少,因为其对轧辊辊缝的调节将直接影响无缝钢管的质量。本课题利用减速器传动、蜗轮蜗杆传动等基本原理,拟定出合理的侧压传动装置的零件图以及装配图,经过合理的计算,确定侧压装置的力能参数,然后按这些参数来选用各个零部件的规格并进行系统的结构设计来达到设计一套完整的轧辊侧压装置的目的。该侧压装置包括减速器传动、蜗轮蜗杆传动两个传动部分,还包括液压缸平衡装置,电动机等,各个部分的设计,结构合理,强度以及寿命等都满足要求,符合实际应用的需求。
关键词:轧制压力;侧压机构;侧压电机;减速器;蜗轮蜗杆
目 录
1 绪论 1
1.1 选题背景及目的 1
1.2 钢管生产工艺及其国民经济中的主要地位与作用 1
1.2.1 钢管生产方法及工艺 1
1.2.2 钢管在国民经济中的地位与作用 2
1.3 国内外轧管机械的发展状况 3
1.3.1 无缝钢管生产工艺技术发展的三个阶段 3
1.3.2 穿孔机的发展 3
1.3.3 轧管机的发展概况 3
1.3.4 定减径机(包括张力减径)的发展 4
1.4 课题设计的内容和方法 4
1.4.1 课题设计的内容 4
1.4.2 课题设计的方法 4
2 总体方案选择 5
2.1设计的原始参数 5
2.2 方案的选择 5
2.2.1 系统动力源的选择 5
2.2.2 传动装置的选择 5
2.2.3 执行装置的选择 6
2.3 总体方案简图 6
3 二辊斜轧穿孔的力参数 8
3.1 轧制压力 8
3.1.1 变形区长度的确定 8
3.1.2 接触面宽度的确定 9
3.1.3 轧制压力的计算 11
4 侧压电机的选择 12
4.1 侧压螺丝主要尺寸的确定 12
4.2 侧压螺丝的传动力矩 13
4.3 侧压电机的选择 15
4.4 电动机的校核 16
5 侧压平衡系统的确定 17
5.1 平衡方法的选择 17
5.2 侧压装置平衡力的计算 17
5.3 平衡液压缸的计算 17
5.3.1 液压缸柱塞直径的计算 17
5.3.2 液压缸柱塞直径的校核 18
5.3.3 液压缸壁厚的校核 18
6 主要零部件强度计算 20
6.1 传动比分配及标准减速器的选取 20
6.1.1 传动比分配 20
6.1.2 标准减速器的选取 20
6.1.3 标准减速器的校核 20
6.2 蜗轮蜗杆的设计与校核 21
6.3 减速器各轴及蜗杆动力参数计算 26
6.4 蜗杆轴的设计 27
6.5 蜗杆传动校核 28
6.6 轴承的寿命计算 31
6.7 侧压螺丝的强度计算 32
6.8 侧压螺母的设计校核 33
7 系统的润滑 35
7.1 润滑剂的分类 35
7.2 蜗轮蜗杆的润滑 35
7.3 滚动轴承的润滑 36
7.4 侧压螺母的润滑 36
8 经济分析及环境保护 37
8.1经济分析 37
8.2环境保护 37
8.2.1 废水治理 38
8.2.2固体废物处理和综合利用 38
8.2.3噪声处理 38
结束语 39
致谢 40
参考文献 41
温馨提示:
1、题目前面的备注【字母数字编号】为本站整理分类的编号,与课题内容无关,请选题时忽视;
2、若题目上备注三维,则表示文件里包含三维源文件,由于三维组成零件数量较多,为保证预览截图的简洁性,本站将三维文件夹进行了打包。三维及CAD预览截图,均为本站电脑打开软件进行截图的,保证能够打开,下载原件超高清,下载后解压即可;
3、本站所有资源如无特殊说明,都需要本地电脑安装Office2007。图纸软件为AutoCAD,PROE,UG,SolidWorks,CATIA等;
4、本站所有图文资料仅供用户学习参考,不作为任何商用或其他用途;
5、本站不保证下载资源的准确性、安全性和完整性, 不包修改,不支持退换,同时也不承担用户因使用这些下载资源对自己和他人造成任何形式的伤害或损失;
6、 下载文件中如有侵权或不适当内容,请与我们联系,我们立即纠正。