

作品包括:
word版设计说明书一份,共83页,约49000字
任务书一份
翻译一份
CAD版本图纸,共9张
毕业设计任务书
毕业设计题目: 带式输送机的拉紧装置设计
毕业设计专题题目:
毕业设计主要内容和要求:
了解长距离带式输送机的工作过程、张紧装置的作用,了解各种张紧装置的工作原理及特点,设计一台液压拉紧装置。
设计参数:张紧力300KN、张紧行程10m
设计内容:
1.根据相关参数完成液压张紧装置的总体设计;
2.完成泵、阀等液压元件的选型设计及液压系统设计;
3.完成主要零、部件的工作图设计;
4.编写完成设计计算说明书。
摘 要
张紧装置是带式输送机不可缺少的部分,是影响输送带动张力的主要部件之一,它直接关系到带式输送机的安全运行及使用寿命,对于大运量、长距离等大型带式输送机的正常运行而言尤为重要。
本带式输送机液压张紧装置的设计是在吸收国、内外输送机张紧技术的基础上,根据国内带式输送机的运行特点及要求研制的一种新型液压张紧装置。采用比例控制技术及可靠性较高的可编程控制技术,可以对张紧力进行多点控制,根据不同工作情况随时调节张紧力的大小。自动实现在胶带机在启动时提供较大张力(约为正常运行时张力的1.5倍),正常运行时较小张力。使胶带在工作过程中有科学合理的张力,即防止了胶带启动时打滑,又可使胶带机正常运行不在过紧状态。利用该装置可以延长胶带的寿命,大大节约输送机的运行成本。本设计中,利用滑轮机构增大了张紧行程,避免使用行程较长的液压缸,减少了制造液压缸的难度。液压系统中采用蓄能器,可以最大限度的吸收液压冲击,减小对负载变化对胶带的冲击,提高胶带的使用寿命。
关键词:带式输送机;液压张紧装置;自动控制;
目录
第一章 概述 1
1.1对带式输送机及其张紧装置概述 1
1.1.1带式输送机械特点 1
1.1.2带式输送机存在的问题 2
1.1.3输送带的伸长或延伸 2
1.1.4发展及未来需求 3
1.1.5张紧装置的作用 4
1.1.6张紧装置的影响因素 5
1.1.7张紧装置的类型 5
1.1.8拉紧行程 8
1.1.9手动拉紧装置 8
1.1.10自动拉紧装置 8
1.2 张紧装置的发展趋势 9
1.2.1张紧装置的主要作用 9
1.3现行带式输送机存在的问题 10
1.4设计总体思路 11
1.5液压传动的特点 11
1.5.1液压传动的优点 11
1.5.2液压传动的缺点 12
第二章 设计方案确定 12
2.1主要设计要求 12
2.2方案确定 12
2.2.1参考方案一 12
2.2.2方案二 13
2.2.3方案三 14
2.2.4方案对比 15
第三章 液压泵及电机的确定 15
3.1液压泵的选用 15
3.1.1液压泵在系统中的作用 15
3.1.2液压泵的分类 16
3.1.3选用液压泵的原则和根据 16
3.1.4液压泵站的主要性能参数 16
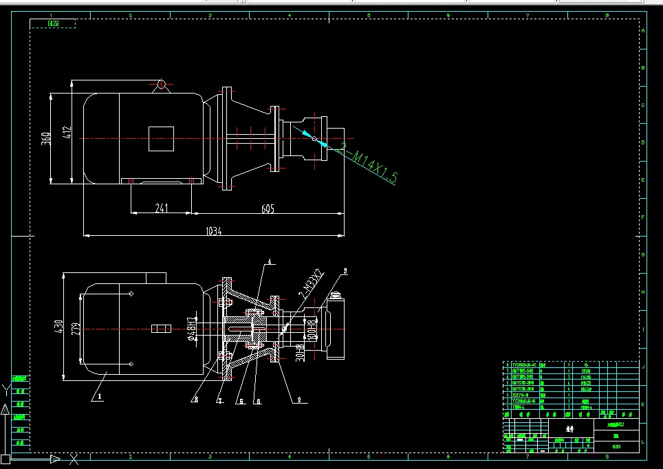
3.2电动机的选用 19
3.2.1计算液压泵的驱动功率 19
3.3选择电机的型号 20
第四章 液压缸 20
4.1液压缸类型 20
4.2液压缸的主要参数 21
4.2.1液压缸的工作压力的确定 21
4.2.2液压缸内径和活塞杆外径的确定 22
4.3 液压缸壁厚 24
4.3.1缸筒壁厚和外径计算 24
4.3.2最小导向长度 26
4.3.3稳定性和强度计算 26
4.4活塞杆和活塞 28
4.5密封,导向和防尘装置 31
4.6液压缸主要零部件结构、材料和技术要求 32
4.7耳轴的安装 33
4.8中隔圈长度的确定 34
4.9液压缸支架设计 35
4.10排气阀 36
4.11油口 36
第五章 确定液压系统元件、辅件 36
5.1选择液压控制阀型号 36
5.2过滤器的选用 42
5.3液压管路的设计 44
第六章 液压油路板的结构 46
6.1液压油路板的设计 46
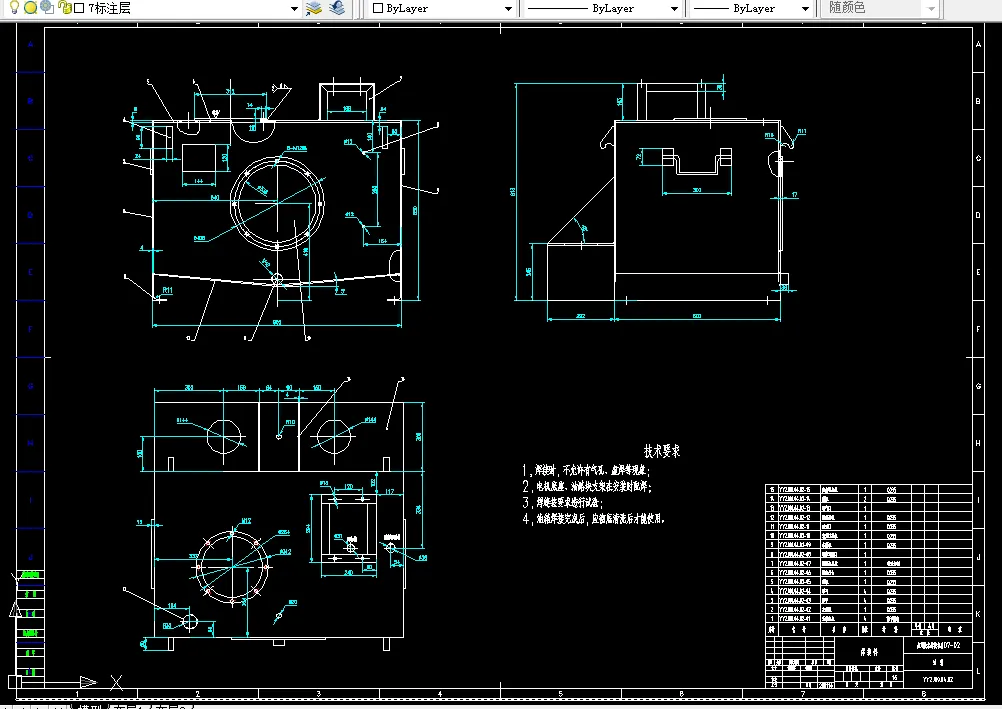
第七章 油箱及其辅件 49
7.1油箱的用途和分类 49
7.2油箱的构造和尺寸 50
7.3油箱容积确定 51
7.4液压油箱的结构设计 52
第八章 滑轮组的设计 57
8.1滑轮的设计计算 57
8.1.1滑轮结构和材料 57
8.1.2钢丝绳进出滑轮时的允许偏角 58
8.1.3滑轮主要尺寸 58
8.1.4绳槽断面尺寸 58
8.2铸造滑轮形式和轴承尺寸 59
第九章液压系统的安装、使用和维护 59
9.1 液压系统的安装、试压和调试 59
9.1.1 液压系统的安装 59
9.1.2液压元件的安装 63
9.1.3管路的安装与清洗 64
9.2 试压 64
9.3 调试 64
9.4系统的使用和维护 65
9.5液压系统常见故障诊断与排除 66
第十章液压工作介质的选用 67
10.1对液压工作介质的主要要求 67
结 论 69
参考文献 70
英文原文 71
中文译文 75
温馨提示:
1、题目前面的备注【字母数字编号】为本站整理分类的编号,与课题内容无关,请选题时忽视;
2、若题目上备注三维,则表示文件里包含三维源文件,由于三维组成零件数量较多,为保证预览截图的简洁性,本站将三维文件夹进行了打包。三维及CAD预览截图,均为本站电脑打开软件进行截图的,保证能够打开,下载原件超高清,下载后解压即可;
3、本站所有资源如无特殊说明,都需要本地电脑安装Office2007。图纸软件为AutoCAD,PROE,UG,SolidWorks,CATIA等;
4、本站所有图文资料仅供用户学习参考,不作为任何商用或其他用途;
5、本站不保证下载资源的准确性、安全性和完整性, 不包修改,不支持退换,同时也不承担用户因使用这些下载资源对自己和他人造成任何形式的伤害或损失;
6、 下载文件中如有侵权或不适当内容,请与我们联系,我们立即纠正。