

作品包括:
word版设计说明书一份,共52页,约40000字
任务书一份
翻译一份
CAD版本图纸,共6张
毕业设计任务书
毕业论文题目:大倾角上运带式输送机
毕业论文专题题目:
毕业论文主要内容和要求:
1. 原始数据:
1) 输送物料:原煤
2) 物料特性:①物料堆积角:α=20°
②原煤比重:γ=1t/m3
③原煤最大块度Xmax=0.3m
④物料温度:T<50℃
3)工作环境:输送机用于煤矿井下,工作条件一般
4)装载点:机尾处
2.主要参数的确定:①输送长度:L=220m
②输送量:Q=400t/h
③输送机倾角β=20°
④带速:V=2.5m/s
⑤装载和卸载:机尾装载,机头卸载
3.输送机总体设计;
4.零件、部件图设计;
5.编写毕业设计说明说;
摘 要
带式输送机的是以胶带作为牵引和承载的部件并通过胶带的连续运动实现物料
送和装卸的一种输送机械。它由电动机作动力,胶带作为输送带,输送带既是承载货物的构件,又是传递牵引力的牵引构件,依靠输送带与滚筒间的摩擦力进行驱动。是连续运输机中效率最高的一种机型。可输送煤、矸石、砂石等散装物料和包装好的成件物品,但不宜输送有坚硬棱角的不规则物料。与其他输送工具相比,它具有输送能力大、效率高、输送距离长、能耗少、工作平稳可靠、操作维修方便等优点。因而被广泛应用与冶金、煤炭、交通、能源、食品、建材、化工等国民经济部门,成为提高机械化水平,实现我国四个现代化必不可少的设备。在煤矿中,带式输送机主要用于采区顺槽、采区上下山、主要运输平巷及斜井,也常用于地面生产系统和选煤厂中。
本文首先介绍了带式输送机的工作特点、发展概况、工作原理及分类;其次,介绍了胶带的摩擦传动原理;最后,根据带式输送机的工作条件对其进行了详细的设计计算,如张紧力、传动滚筒圆周力等。另外该带式输送机采用单电机单滚筒驱动,驱动装置中减速器采用垂直轴布置,此带式输送机结构简单、操作装拆卸方便、成本低、设备安全可靠,在煤矿井下广泛应用。
关键词:大倾角; 带式输送机; 工作原理
目 录
1 绪论 1
1.1带式输送机的现状与发展趋势 1
1.1.1国外带式输送机的技术现状 1
1.1.2国内带式输送机的技术现状 1
1.1.3国内外带式输送机的技术差距 2
1.1.4带式输送机的经济效益比较 3
1.2带式输送机的工作原理、使用条件及特点 5
1.2.1带式输送机的工作原理 5
1.2.2带式输送机的适用条件及优缺点 5
1.3带式输送机的类型及主要结构 5
1.3.1输送带 8
1.3.2托辊与机架 10
1.3.3传动装置 10
1.3.4拉紧装置 11
1.3.5制动装置 12
1.4带式输送机的布置型式 12
2设计方案 13
2.1散状物料的特性 13
2.2带速的选择 13
2.3总机布置设计 13
2.3.1概述 13
2.3.2输送机倾角 13
2.3.3受料段和机尾长度 14
2.3.4卸料段 14
2.3.5拉紧装置型式 14
2.3.6过渡段 14
2.3.7设计方案 14
3 带式输送机的设计计算 15
3.1已知原始数据及工作条件 15
3.2主要参数的确定 15
3.2.1带速 15
3.2.2带宽 16
3.2.3输送带 16
3.2.4托辊 16
3.3传动滚筒圆周力和轴功率的计算 17
3.3.1圆周力计算 17
3.3.2轴功率计算 17
3.4输送带张力计算 18
3.4.1最小张力确定 18
3.4.2输送带最大张力计算 19
3.4.3输送带强度校核. 20
3.5拉紧力和拉紧行程确定 20
3.5.1拉紧力 20
3.5.2拉紧行程 20
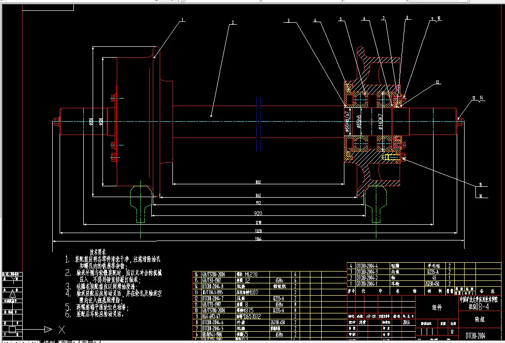
3.5.3张紧车轮轴的设计计算 21
3.5.4轴承处轴径的计算 21
3.6逆止力和逆止力矩 22
3.6.1逆止力 22
3.6.2逆止矩. 22
3.7滚筒直径 22
3.7.1传动滚筒 22
3.7.2改向滚筒直径 22
3.8托辊载荷的校对 22
3.8.1静载荷计算 22
3.8.2动载荷计算 22
3.9设计计算结果 24
4带式输送机的各部件选取 24
4.1传动滚筒的选取 24
4.2改向滚筒的选取 26
4.3托辊的选取 26
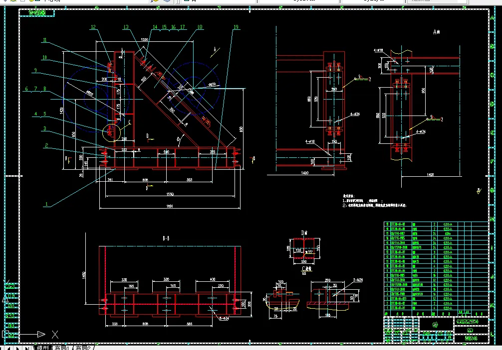
4.4中间架和支腿的选取 31
4.5张紧装置的选取 32
4.6驱动装置的选取 35
4.7制动装置的作用及选取 41
4.8传动架的设计 41
4.9给料装置、清扫装置、头部漏斗及卸料装置 41
4.9.1给料装置 41
4.9.2清扫装置 42
4.9.3头部漏斗 43
4.9.4卸料装置 44
5带式输送机的安装和操作维护 44
5.1安装、试运转和调整 44
5.1.1安装准备 44
5.1.2安装要求 44
5.1.3试运转 45
5.1.4调整 46
5.2安全操作和维护保养 46
5.2.1设备的正常使用 47
5.2.2操作方面应注意事项 47
5.2.3设备定期检查 47
5.3润滑 48
5.4易损件清单 48
结论 49
参考文献 50
致谢 51
温馨提示:
1、题目前面的备注【字母数字编号】为本站整理分类的编号,与课题内容无关,请选题时忽视;
2、若题目上备注三维,则表示文件里包含三维源文件,由于三维组成零件数量较多,为保证预览截图的简洁性,本站将三维文件夹进行了打包。三维及CAD预览截图,均为本站电脑打开软件进行截图的,保证能够打开,下载原件超高清,下载后解压即可;
3、本站所有资源如无特殊说明,都需要本地电脑安装Office2007。图纸软件为AutoCAD,PROE,UG,SolidWorks,CATIA等;
4、本站所有图文资料仅供用户学习参考,不作为任何商用或其他用途;
5、本站不保证下载资源的准确性、安全性和完整性, 不包修改,不支持退换,同时也不承担用户因使用这些下载资源对自己和他人造成任何形式的伤害或损失;
6、 下载文件中如有侵权或不适当内容,请与我们联系,我们立即纠正。