

作品包括:
word版设计说明书一份,共64页,约22000字
CAD版本图纸,共8张
毕业设计任务书
毕业论文题目:支撑掩护式液压支架设计
毕业论文主要内容和要求:
主要内容:
1、液压支架的原理、发展等;
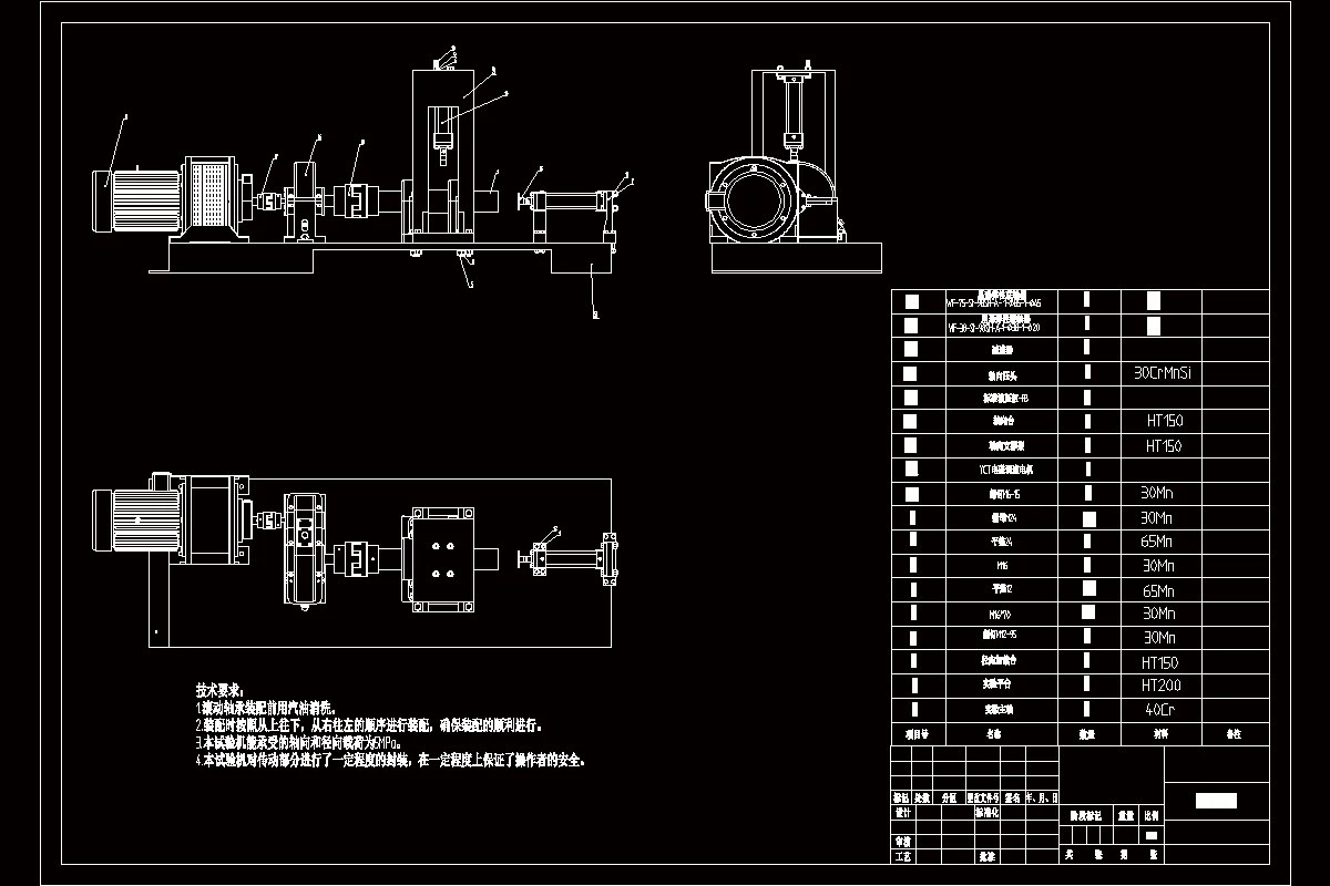
2、根据围岩性质、煤层赋存条件、初选配套设备的相关尺寸,确定支架基本架型及支架结构;液压支架的基本参数确定及其尺寸计算。
3、对顶梁、底座、掩护梁、立柱、前后连杆等主要结构进行设计,并对其进行受力分析和强度校核。
基本要求:
工作阻力5600KN,最小高度2.5m,最大高度4.7,中心距1.5。完成主要部件、组件及主要零件工作图的设计,编写完成整机设计计算说明;设计图纸量折合成A0图纸不少于3张,并完成设计说明书,要有英文相关文章的翻译,翻译成中文后不少于3000字。
摘 要
本论文的内容是支撑掩护式液压支架的总体设计。论文主要阐述了一般支撑掩护式液压支架的设计过程。设计内容包括:选架型、总体设计、主要零部件的设计、主要零部件的校核和液压系统的设计。
支撑掩护式液压支架结合了垛式液压支架和掩护式液压支架的特点。所以,支撑掩护式液压支架具有以上两者所具有的优点。
液压支架作为回采工作面的一种支护设备,液压支架在工作过程中能否取得良好的支护效果,取决于支架的架型,结构和相关参数。首先,通过作图确定支架的四连杆机构各杆系的长度;然后,以力学模型为依据,分析了液压支架的顶梁、掩护梁上载荷的作用机理,得到了较为合理的支架载荷的计算公式;其次,结合设计的支架,从平面和空间两方面对支架主要结构件进行受力分析;最后对支架主要结构件、连接销轴进行强度校核,并画出所有的机械图。
关键词:支撑掩护式支架; 顶梁; 四连杆; 强度
目 录
1支撑掩护式液压支架概述 1
1.1 液压支架的用途 1
1.2液压支架的工作原理 1
1.2.1支架自由度计算 1
1.2.2支架升降 1
1.2.3 支架移动和推移输送机 3
1.3 液压支架的分类 3
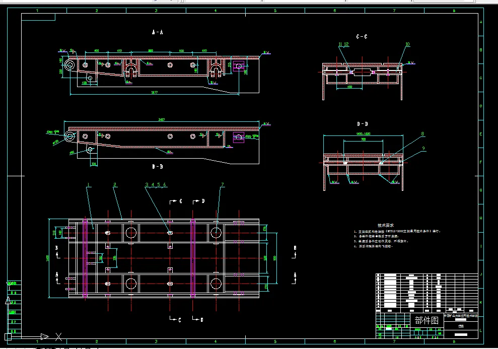
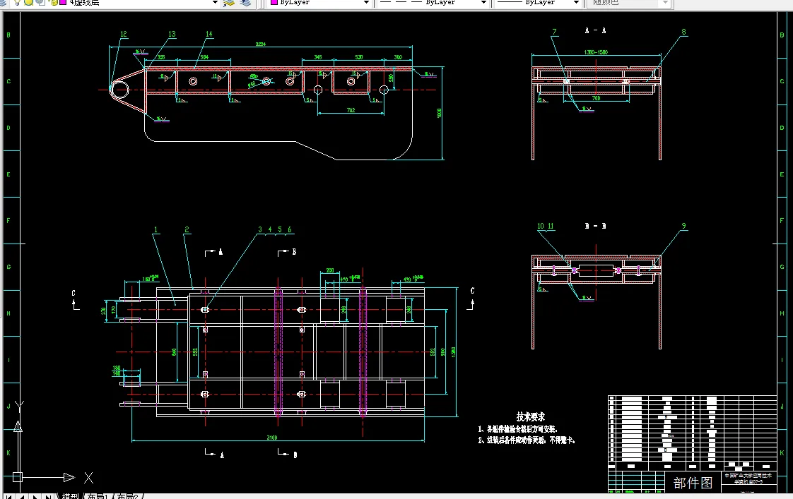
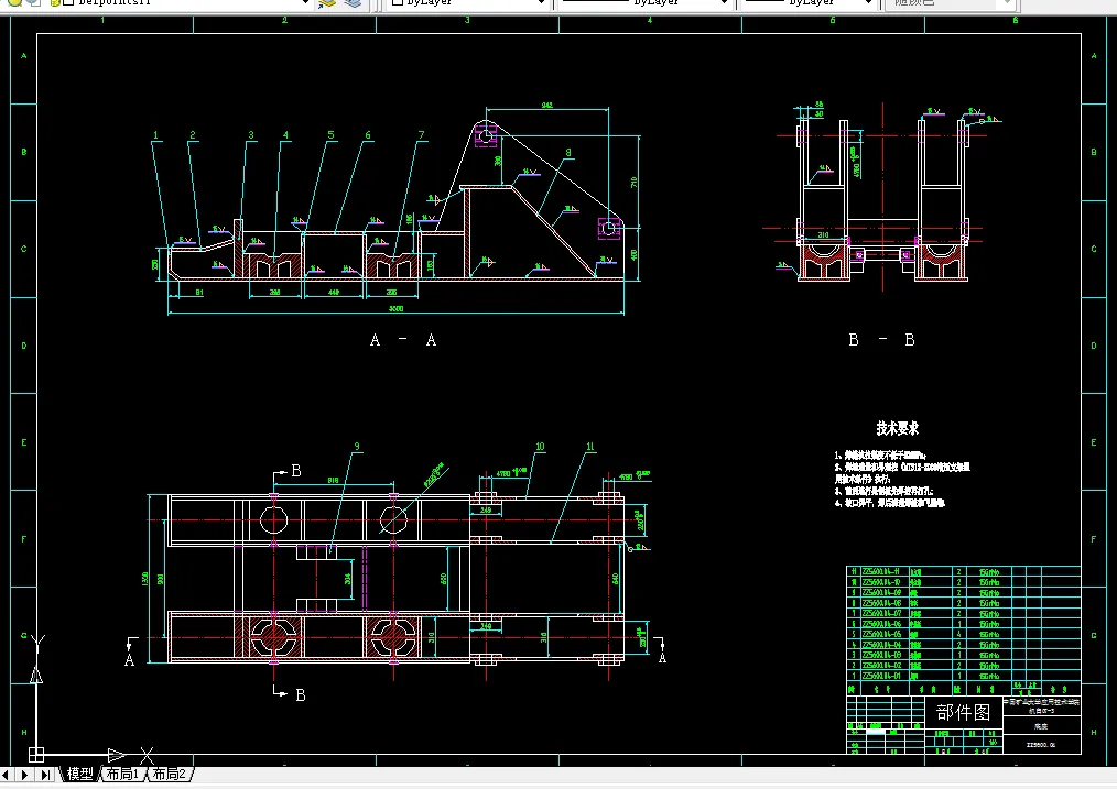
1.4 液压支架的组成 4
1.4.1 顶梁 4
1.4.2 底座 5
1.4.3 立柱 5
1.4.4 掩护梁 5
1.4.5 活动侧护板 5
1.4.6 连杆 5
1.4.7操纵控制系统 6
1.5 液压支架的设计 6
1.5.1 设计目的 6
1.5.2 对液压支架的基本要求 6
1.5.3 设计液压支架必需的基本参数 7
1.5.4坚硬顶板的液压支架设计 7
1.6 液压支架的设计动向 8
2 液压支架的结构设计 10
2.1 液压支架基本尺寸的确定 10
2.1.1 支架高度和伸缩比 10
2.1.2 支架中心距 11
2.1.3 支架间距的确定 11
2.2 支架整体机构尺寸确定 11
2.2.1底座长度 11
2.2.2确定四连杆机构 11
2.2.3确定顶梁的长度 17
2.2.4液压支架的性能参数 18
2.2.5立柱布置 19
2.2.6覆盖率 20
2.2.7支架立柱的计算 20
2.3 立柱的参数计算 21
2.3.1 立柱的初撑力 21
2.3.2 立柱的工作阻力 22
2.4 千斤顶参数确定 22
2.4.1移架千斤顶的尺寸 22
2.4.2前梁千斤顶参数 23
2.4.3侧推千斤顶参数 23
2.4.4护帮千斤顶参数 24
2.5 底座接触比压的计算 24
2.6 液压支架的主要技术参数 25
3液压支架的受力分析及校核 26
3.1液压支架整体受力分析 27
3.2液压支架的底座分析 30
4 液压支架部件的安全强度校核 32
4.1 液压支架在强度设计时强度条件 32
4.2 液压支架的强度校核 33
4.2.1 顶梁强度的校核 33
4.2.2 掩护梁强度的校核 37
4.2.3 底座强度的校核 38
4.2.4 立柱稳定性验算 41
4.2.5 顶梁耳板的强度校核 44
4.2.6 前连杆与底座的销轴校核 45
4.2.7 掩护梁与顶梁的销轴校核 45
4.2.8 后连杆与底座的销轴校核 46
4.3 液压系统的控制方式 46
5 液压支架的操作和维护 47
5.1 液压支架的操作管理事项 47
5.2 液压支架维护和管理的具体内容 47
结 论 48
参考文献 49
翻译部分
英文原文 50
中文译文 57
致 谢 63
温馨提示:
1、题目前面的备注【字母数字编号】为本站整理分类的编号,与课题内容无关,请选题时忽视;
2、若题目上备注三维,则表示文件里包含三维源文件,由于三维组成零件数量较多,为保证预览截图的简洁性,本站将三维文件夹进行了打包。三维及CAD预览截图,均为本站电脑打开软件进行截图的,保证能够打开,下载原件超高清,下载后解压即可;
3、本站所有资源如无特殊说明,都需要本地电脑安装Office2007。图纸软件为AutoCAD,PROE,UG,SolidWorks,CATIA等;
4、本站所有图文资料仅供用户学习参考,不作为任何商用或其他用途;
5、本站不保证下载资源的准确性、安全性和完整性, 不包修改,不支持退换,同时也不承担用户因使用这些下载资源对自己和他人造成任何形式的伤害或损失;
6、 下载文件中如有侵权或不适当内容,请与我们联系,我们立即纠正。