

作品包括:
word版设计说明书一份,共80页,约34000字
翻译一份
任务书一份
CAD版本图纸,共10张
摘 要
本设计是通过对液压绞车工作原理、工作的环境和工作的特点进行分析,并结合实际,在进行细致观察后,对液压绞车进行了总体方案研究和总体布局设计;对静液压绞车的液压与控制系统作了详细设计、分析与计算;对液压绞车进行了主参数设计和主要元件的选型计算和安全校核。
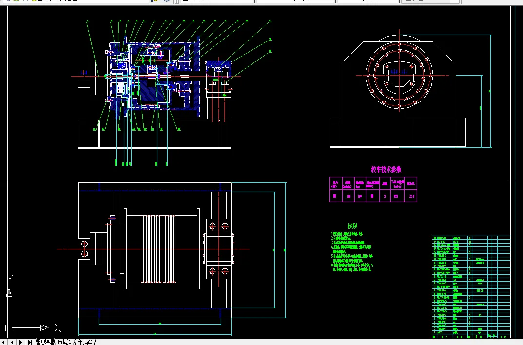
本绞车由进口液压马达、进口平衡阀、常闭多片式制动器、离合器、卷筒、支承、机架和液压泵站等部件组成,还可根据需要设计阀组直接集成于马达配油器上,如带平衡阀、高压梭阀、调速换向阀或其它性能的阀组。在结构上具有紧凑、体积小、重量轻、外型美观等特点,在性能上则具有安全性好、效率高、启动扭矩大、低速稳定性好、噪音低、操作可靠等特点,在提升和下放工作中运转相当平稳,带离合器的绞车可实现自由下放工况,广泛适用于铁道机车和汽车起重机、船舶、油田钻采、地质勘探、煤矿、港口等各种起重设备中。
关键词:液压;绞车;卷扬机;泵站;阀组
目 录
1 概述 1
1.1简介 1
1.1.1绞车概述 1
1.1.2 绞车功能与结构 1
1.1.3 绞车分类 1
1.1.4 绞车应用 3
1.2最新技术与发展趋势 5
1.3液压传动系统概述 5
1.3.1传动类型及液压传动的定义 5
1.3.2液压系统的组成部分 5
1.3.3 液压系统的类型 5
1.3.4液压传动的优缺点 6
1.3.5拟定液压绞车系统图 7
1.4液压绞车结构方案的确定 8
1.4.1常见卷扬机构结构方案及分析 8
1.4.2本设计所采用的方案 13
1.4.3卷扬机构方案设计注意事宜 14
2卷扬机构组成及工作过程分析 15
2.1卷扬机构的组成 15
2.2卷扬机构工作过程分析 15
2.2.1卷扬机构的工作周期 16
2.2.2载荷升降过程的动力分析 18
3钢丝绳的选择和滚筒的设计 18
3.1钢丝绳的设计 18
3.1.1 钢丝绳的结构 18
3.1.2 钢丝绳的分类 18
3.1.3 钢丝绳的选择 19
3.1.4钢丝绳在卷筒上的固定方式 20
3.2滚筒的设计 20
3.2.1卷扬机卷筒组的分类和特点 20
3.2.2卷筒设计计算 22
4传动装置的设计 23
4.1传动装置结构设计 23
4.2液压马达的选择 24
4.2.1 概述 25
4.2.2液压马达的选择 26
4.3行星减速箱的设计 26
4.3.1选取行星齿轮传动的传动类型和传动简图 26
4.3.2配齿计算 27
4.3.3初步计算齿轮的主要参数 28
4.3.4啮合参数计算 28
4.3.5几何尺寸计算 29
4.3.6装配条件的验算 30
4.3.7传动效率的计算 30
4.3.8结构设计 30
4.3.9齿轮强度验算 35
4.4轴的设计计算 35
4.4.1输入轴设计计算 38
4.5制动器的设计与选用 38
4.5.1制动器的作用、特点及动作方式 39
4.5.2制动器的计算 44
4.6 配流器的选择 45
5泵站的设计 45
5.1液压泵及其电机的选择 45
5.1.1 液压泵的选择 46
5.1.2 电机的选择 47
5.2液压阀的选用 47
5.2.1 概述 47
5.2.2 平衡阀的选用 48
5.2.3 调速阀的选用 49
5.2.4 手动换向阀的选用 50
5.3辅助元件的选用与设计 50
5.3.1油管和管接头的选用 52
5.3.2 滤油器选用 55
5.3.3 冷却器的选用 58
5.3.4 油箱的设计 59
6液压绞车使用说明 60
6.1绞车装配注意事项 60
6.2 试运转......... ........ .............................................60
6.2.1空负荷试运转 60
6.2.2 负荷试运转 60
6.3 绞车维护与检修 62
结论 63
参考文献 64
致 谢....................................................................65
温馨提示:
1、题目前面的备注【字母数字编号】为本站整理分类的编号,与课题内容无关,请选题时忽视;
2、若题目上备注三维,则表示文件里包含三维源文件,由于三维组成零件数量较多,为保证预览截图的简洁性,本站将三维文件夹进行了打包。三维及CAD预览截图,均为本站电脑打开软件进行截图的,保证能够打开,下载原件超高清,下载后解压即可;
3、本站所有资源如无特殊说明,都需要本地电脑安装Office2007。图纸软件为AutoCAD,PROE,UG,SolidWorks,CATIA等;
4、本站所有图文资料仅供用户学习参考,不作为任何商用或其他用途;
5、本站不保证下载资源的准确性、安全性和完整性, 不包修改,不支持退换,同时也不承担用户因使用这些下载资源对自己和他人造成任何形式的伤害或损失;
6、 下载文件中如有侵权或不适当内容,请与我们联系,我们立即纠正。