

作品包括:
说明书1份,共27页,约11000字左右
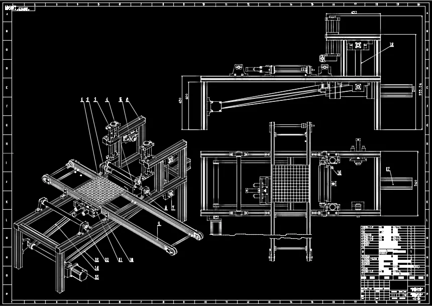
CAD版本本图纸,共11张
SW三维图一份
目 录
摘 要 III
Abstract IV
目 录 V
第1章 绪论 1
1.1课题来源 •••••••••••••••••••••••••••••••••••••••••••••••••••••••••••••••••1
1.2目的及意义 •••••••••••••••••••••••••••••••••••••••••••••••••••••••••••••••1
1.3国内外技术的发展现状 •••••••••••••••••••••••••••••••••••••••••••••••••••••1
第2章马赛克自动铺贴机及自动刷胶系统的介绍••••••••••••••••••••••••••••2
2.1马赛克自动铺贴机••••••••••••••••••••••••••••••••••••••••••••••••••••••••••1
2.2自动刷胶系统••••••••••••••••••••••••••••••••••••••••••••••••••••••••••••••1
第3章马赛克自动刷胶系统的设计•••••••••••••••••••••••••••••••••••••••••1
3.1胎模定位机构设计•••••••••••••••••••••••••••••••••••••••••••••••••••••••••••1
3.1.1 方案拟定•••••••••••••••••••••••••••••••••••••••••••••••••••••••••••1
3.1.2 气缸选型•••••••••••••••••••••••••••••••••••••••••••••••••••••••••••1
3.1.3 滑动轴承选型•••••••••••••••••••••••••••••••••••••••••••••••••••••••1
3.2卷纸传输机构设计••••••••••••••••••••••••••••••••••••••••••••••••••••••••••1
3.2.1 方案拟定•••••••••••••••••••••••••••••••••••••••••••••••••••••••••••1
3.2.2 气缸选型•••••••••••••••••••••••••••••••••••••••••••••••••••••••••••1
3.2.3 轴的强度校核•••••••••••••••••••••••••••••••••••••••••••••••••••••••1
3.3自动刷胶机构设计••••••••••••••••••••••••••••••••••••••••••••••••••••••••••1
3.3.1 方案拟定•••••••••••••••••••••••••••••••••••••••••••••••••••••••••••1
3.3.2 射胶泵设计•••••••••••••••••••••••••••••••••••••••••••••••••••••••••1
3.3.3 轴的强度校核•••••••••••••••••••••••••••••••••••••••••••••••••••••••1
3.4废边纸回收机构设计•••••••••••••••••••••••••••••••••••••••••••••••••••••••1
3.3.1 方案拟定•••••••••••••••••••••••••••••••••••••••••••••••••••••••••••1
3.3.2 步进电机选型•••••••••••••••••••••••••••••••••••••••••••••••••••••••1
3.3.3 同步带轮选型•••••••••••••••••••••••••••••••••••••••••••••••••••••••1
第4章马赛克自动刷胶系统Solidworks建模及模拟装配••••••••••••••••••••••••••••1
4.1Solidworks软件介绍••••••••••••••••••••••••••••••••••••••••••••••••••••••••1
4.2马赛克自动刷胶系统Solidworks建模及模拟装配•••••••••••••••••••••••••••••••1
4.2.1马赛克自动刷胶系统零件的三维建模••••••••••••••••••••••••••••••••••••1
4.2.2马赛克自动刷胶系统零部件的模拟装配••••••••••••••••••••••••••••••••••1
结论 26
参考文献 27
致 谢 28
温馨提示:
1、题目前面的备注【字母数字编号】为本站整理分类的编号,与课题内容无关,请选题时忽视;
2、若题目上备注三维,则表示文件里包含三维源文件,由于三维组成零件数量较多,为保证预览截图的简洁性,本站将三维文件夹进行了打包。三维及CAD预览截图,均为本站电脑打开软件进行截图的,保证能够打开,下载原件超高清,下载后解压即可;
3、本站所有资源如无特殊说明,都需要本地电脑安装Office2007。图纸软件为AutoCAD,PROE,UG,SolidWorks,CATIA等;
4、本站所有图文资料仅供用户学习参考,不作为任何商用或其他用途;
5、本站不保证下载资源的准确性、安全性和完整性, 不包修改,不支持退换,同时也不承担用户因使用这些下载资源对自己和他人造成任何形式的伤害或损失;
6、 下载文件中如有侵权或不适当内容,请与我们联系,我们立即纠正。