

作品包括:
Word版说明书一份,共54页,约15000字
实习报告一份
CAD版本图纸,共4张
Solidworks三维一份
转炉倾动机构的设计
摘 要
随着氧气转炉炼钢生产的普及和发展,转炉倾动装置也在不断地更新和改革,为完美适应炼钢生产的需要,世界各国研究开发出了许多新的设备结构和配置型式。
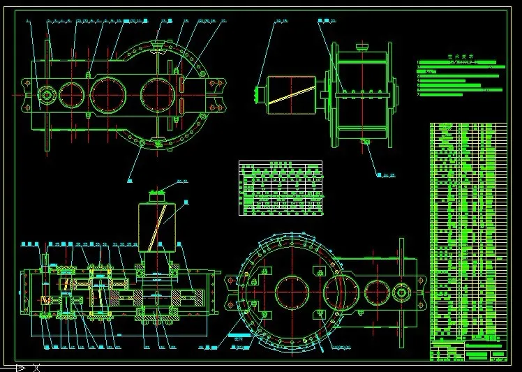
转炉倾动装置是转炉炼钢生产中主要设备之一,先后经历了落地式、半悬挂式和目前应用广泛的全悬挂装置,此次采用全悬挂倾动装置。
全悬挂式配置的倾动装置主要有以下设备:四台电机、一次减速机(四套三级斜齿圆柱齿轮减速器)、二次减速机和扭力杆缓冲装置。
本次设计80t转炉全悬挂倾动装置的性能是:倾动角度为连续回转360°、倾动速度范围从0.1r/min 到1.1r/min进行的设计、转炉可连续工作并可根据工艺操作实现任意位置点动。
主要内容包括:
1.、转炉倾动力矩的计算(本次设计采用SOLIDWORK模拟计算)。
2、倾动机械及其传动件的设计(根据倾动力矩进行电动机的选择和校核、传动方案的选择、、减速器的设计、主要零部件的强度校核)。
3、抗扭缓冲装置的设计。
4、技术经济性分析。
关键词:转炉;倾动装置;倾动力矩;计算;
目 录
摘 要 II
第一章绪 论 8
1.1氧气转炉炼钢法简介 8
1.2氧气顶吹转炉车间的设备 10
1.3设计概览 12
第二章 方案分析与确定 13
2.1设计简介 13
2.1.1设计题目 13
2.1.2技术参数及性能 13
2.2设计要求 13
2.3转炉倾动机械的配置形式 13
2.4比较倾动机械的优缺点 15
2.5确定倾动机械布置方案 16
第三章倾动力矩的计算和最佳耳轴位置的确定 17
3.1转炉炉壳质量及重心位置的计算 17
3.1.1建立空炉模型 17
3.1.2炉壳重量重心与转动惯量的计算 18
3.2转炉炉衬质量及重心位置的计算 19
3.2.1建立空炉炉衬模型 19
3.2.2炉衬重量重心与转动惯量的计算 20
3.3空炉质量重心位置及其转动惯量的计算 20
3.4转炉摩擦力矩的计算 21
3.5转炉炉液力矩的计算及最佳耳轴位置的确定 21
3.5.1 Solidworks计算原理及建模方法 21
3.5.2 最佳耳轴位置的确定 24
第四章倾动机械的设计计算 27
4.1电动机的选择与校核 27
4.1.1电动机的容量计算及型号选择 27
4.1.2选定电动机 28
4.1.3过载校核 28
4.1.3.1塌炉过载校核 28
4.1.3.2事故过载校核 28
4.1.3.3启动时间校核 29
4.2 制动器选择与制动时间校核 31
4.3 联轴器的选择 34
4.4分配传动比 34
在计算齿轮之前,首先要分配传动比。设计减速器时,合理的分配各级传动比是一个很重要的步骤,因为它将直接影响到减速器的外形尺寸、形状、润滑条件和各零件的装配条件。 34
4.4.1分配传动比的一般原则 34
4.4.2分配传动比 35
4.5选择减速器的传动方案 35
4.6各级传动齿轮的计算 36
4.7轴设计与校核 38
4.8箱体尺寸计算与选择 42
4.9倾动机械的润滑 43
第五章扭力杆装置的设计 44
5.1平衡抗扭器的基本形式 44
5.2平衡抗扭器的设计 44
5.3最佳间隙的确定 47
第六章技术经济性分析 48
6.1技术经济分析概述 48
6.2提高产品实用价值的途径 48
6.4比较分析 49
6.4综合分析 50
6.5倾动机械价值优化的措施及效果 51
结论 52
致谢 53
参考文献 54
温馨提示:
1、题目前面的备注【字母数字编号】为本站整理分类的编号,与课题内容无关,请选题时忽视;
2、若题目上备注三维,则表示文件里包含三维源文件,由于三维组成零件数量较多,为保证预览截图的简洁性,本站将三维文件夹进行了打包。三维及CAD预览截图,均为本站电脑打开软件进行截图的,保证能够打开,下载原件超高清,下载后解压即可;
3、本站所有资源如无特殊说明,都需要本地电脑安装Office2007。图纸软件为AutoCAD,PROE,UG,SolidWorks,CATIA等;
4、本站所有图文资料仅供用户学习参考,不作为任何商用或其他用途;
5、本站不保证下载资源的准确性、安全性和完整性, 不包修改,不支持退换,同时也不承担用户因使用这些下载资源对自己和他人造成任何形式的伤害或损失;
6、 下载文件中如有侵权或不适当内容,请与我们联系,我们立即纠正。