

作品包括:
Word版说明书1份,48页,约18000字
CAD版本图纸,共5张
摘要
本文介绍了钢管打包机打捆装置的组成和工作原理,详细的介绍了钢管打包机的设计过程,从电动机的选用,到结构部分的组成,主要设计了打捆成型的传动设计部分。对目前无缝钢管的生产与设计,进行了简单的描述。
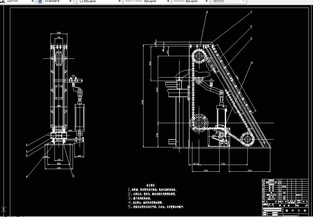
钢管打包机捆成型是无缝钢管生产线上最后一道工艺,钢管打包机主要由升降支架,提升支架,小车,梁,挡臂,气缸以及摇臂等部分组成,主要工作原理是电动机带动轴,来驱动链传动,控制支架,由气缸控制挡臂,钢管在挡臂中通过捆成型链自动打包成六边形形状。钢管打包机是现代无缝钢管生产线上的重要部分,体现了现代钢管生产技术的高效率,高自动化。
关键词:钢管打包机,链传动,小车,六边形,捆成型。
目录
第一章绪论 1
1.1MPM限动芯棒连轧管机组 1
1.1.1环形加热炉 1
1.1.2 穿孔机组 1
1.1.3 MPM连轧管机区域 3
1.1.4 脱管机 5
1.1.5链式输送机 6
1.1.6 定、张减区总述 6
1.1.7 管排锯区 8
1.2.工艺及质量事故原因分析 8
1.2.1 穿孔机工艺事故原因分析 8
1.2.2 连轧管机工艺事故原因分析 9
1.2.3 定/张减机区主要缺陷的防止和消除 9
第二章 选择传动方案 11
2.1 方案的选择 11
2.2方案比较 11
第三章 提升装置的设计 14
3.1选择电动机 14
3.1.1. 提升装置受力分析 15
3.1.2.电动机负载功率 16
3.2减速器的选择 16
3.2.1常用减速器的选择 16
3.2.2减速器的计算 17
3.2.3选择减速器 17
3.3链的设计计算 18
3.3.1取定链轮齿数 18
3.3.2.确定链的额定功率 18
3.3.3.选择链的型号、确定链节距和排数 19
3.3.5轴上力的计算 21
3.3.6链传动的润滑、布置和张紧 21
3.3.7设计结果 22
3.4滚子链轮的设计选择 22
3.5 主动链轮轴的计算 23
3.5.1选择轴的材料 23
3.5.2 初步估算轴颈 24
3.5.3轴的结构设计 25
3.5.4轴的强度验算 28
3.6电动机与减速器输入轴连接处联轴器的选择计算 31
3.6.1一般联轴器的选择计算 31
3.6.2万向轴的选择 32
3.6.3万向轴的选定 33
3.7.1 轴承的选择 33
3.7.2轴承的计算 34
第四章 横移小车运行阻力运算 36
4.1横移小车阻力计算 36
4.1.1满载和空载时摩擦阻力的计算 36
4.1.2.满载和空载时坡度阻力计算 36
4.2选择电动机的型号 37
4.2.1静功率 37
4.2.2计算功率 38
4.2.3选择电机型号 38
4.3.1减速器的计算 38
4.3.2减速器的选择 38
结束语 39
参考文献 41
温馨提示:
1、题目前面的备注【字母数字编号】为本站整理分类的编号,与课题内容无关,请选题时忽视;
2、若题目上备注三维,则表示文件里包含三维源文件,由于三维组成零件数量较多,为保证预览截图的简洁性,本站将三维文件夹进行了打包。三维及CAD预览截图,均为本站电脑打开软件进行截图的,保证能够打开,下载原件超高清,下载后解压即可;
3、本站所有资源如无特殊说明,都需要本地电脑安装Office2007。图纸软件为AutoCAD,PROE,UG,SolidWorks,CATIA等;
4、本站所有图文资料仅供用户学习参考,不作为任何商用或其他用途;
5、本站不保证下载资源的准确性、安全性和完整性, 不包修改,不支持退换,同时也不承担用户因使用这些下载资源对自己和他人造成任何形式的伤害或损失;
6、 下载文件中如有侵权或不适当内容,请与我们联系,我们立即纠正。