

作品包括:
word说明书一份,共40页,约12000字
任务书一份
开题报告一份
CAD版本图纸,共7张
摘 要
本设计是根据我国近几年来房地产业的蓬勃发展和老百姓私家车的急剧增多,私家车数量的急剧增加与车(位)库设置严重滞后的矛盾应运而生的自动化车库。链驱动双层升降横移式立体车库,是充分利用小区地下空间设置的新型车库,其型号为单层2个车位。车库下降后可完全居于地面之下,车库表面能与周边完全融为一体。并且每个车库均属独立空间,升降自如,停(取)车极为方便,快捷,是充分利用地下空间改造或兴建的安全、新型、便捷式车库。该车库设计新颖、独特、巧妙,实用性强,可以大大缓解小区车库(位)严重不足的矛盾。 本说明书共分五章,着重设计计算了钢丝绳及滑轮组机构、载车板、升降机构、横移入库机构以及库架等主要系统的设计计算。
关键词:载车板;升降系统;横移;机构;链驱动。
目 录
摘要 Ⅰ
Abstract Ⅱ
第1章 绪论 1
1.1 选题背景、目的及意义 1
1.2 国内外研究现状 1
1.3 研究内容及研究方法 2
1.4 研究内容 2
1.5 研究研究流程图 3
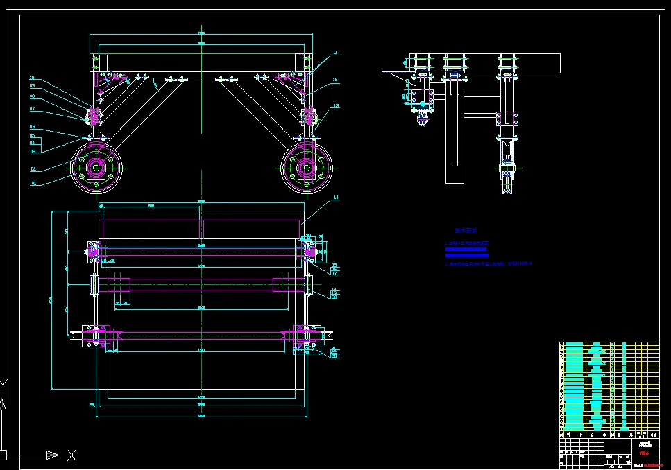
第2章 车库总体设计方案以及工作原理和组成 4
2.1 全自动车库的定义与分类 4
2.2 车库总体设计方案 4
2.3 车库的工作原理 5
2.4 车库的总体组成部分 5
2.5 本章小结 5
第3章 车库主体钢材的选用 6
3.1 车库上边框钢材的选择 6
3.2 库架支撑钢的选择 6
3.3 上下层支撑钢的选择 6
3.4 升降台辅助支撑钢的选择 7
3.5 链轮支撑钢的选择 7
3.6 链轮辅助支撑钢的选择 7
3.7 滑轮支撑钢的选择 7
3.8 滑轮辅助支撑钢的选择 7
3.9上下层支撑钢横向连接钢的选择 8
3.10滑轮支撑钢横向连接钢的选择 8
3.11链轮支撑钢横向连接钢的选择 8
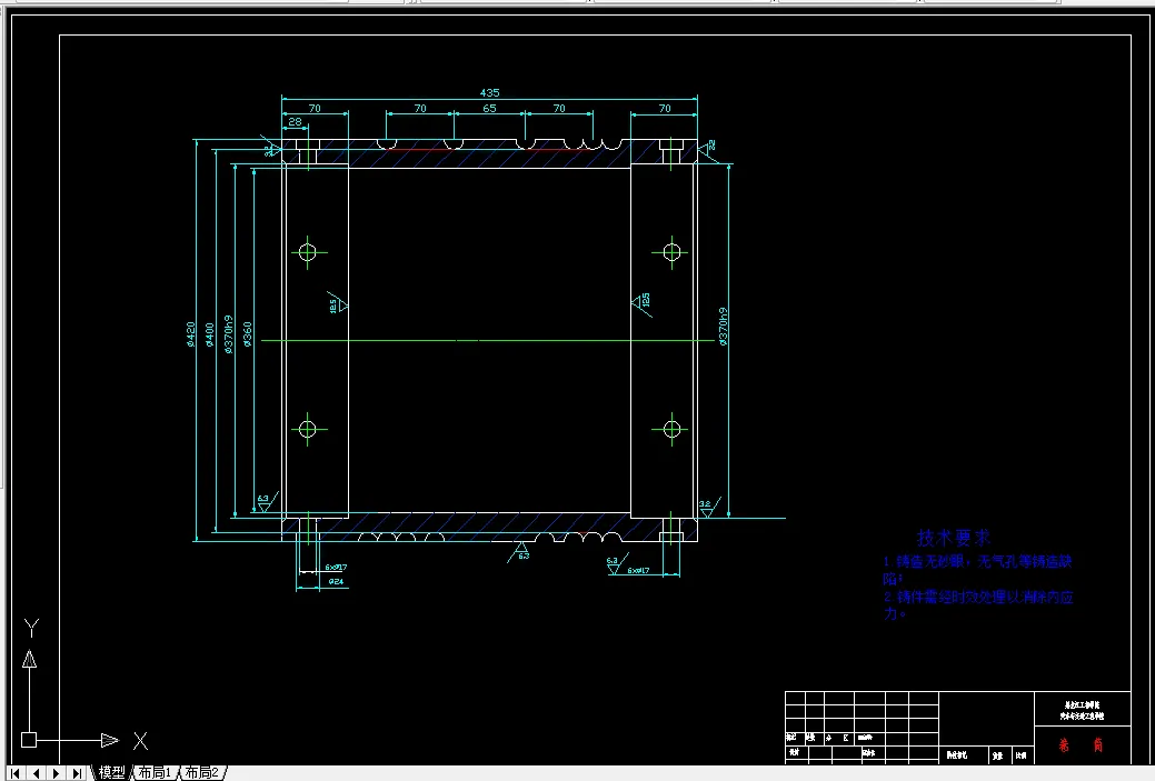
3.12载车板横向边缘钢 8
3.13载车板的结构和尺寸的设计计算 9
3.14 本章小结 10
第4章 升降系统各零部件的结构设计和尺寸确定 11
4.1 升降台结构的初步设计 11
4.2 钢丝绳的设计计算 11
4.3 钢丝绳夹的选择 13
4.4 滑轮及其组件的设计计算 14
4.5 卷筒的设计计算和尺寸确定 18
4.6 升降链及链轮的选择 21
4.7 升降用电动机及变速器的设计计算和型号选择 23
4.8 升降电动传动链及连轮的设计计算 24
4.9 本章小结 26
第5章 横移机构的设计计算 27
5.1 轨道和导轮的设计计算 28
5.2 横移电动机的设计计算及型号选择 30
5.3 带及带轮的选择 32
5.4 联轴器的选择 34
5.5 本章小结 35
结 论 36
致 谢 37
参考文献 38
附 录 40
附录A 40
附录B 43
温馨提示:
1、题目前面的备注【字母数字编号】为本站整理分类的编号,与课题内容无关,请选题时忽视;
2、若题目上备注三维,则表示文件里包含三维源文件,由于三维组成零件数量较多,为保证预览截图的简洁性,本站将三维文件夹进行了打包。三维及CAD预览截图,均为本站电脑打开软件进行截图的,保证能够打开,下载原件超高清,下载后解压即可;
3、本站所有资源如无特殊说明,都需要本地电脑安装Office2007。图纸软件为AutoCAD,PROE,UG,SolidWorks,CATIA等;
4、本站所有图文资料仅供用户学习参考,不作为任何商用或其他用途;
5、本站不保证下载资源的准确性、安全性和完整性, 不包修改,不支持退换,同时也不承担用户因使用这些下载资源对自己和他人造成任何形式的伤害或损失;
6、 下载文件中如有侵权或不适当内容,请与我们联系,我们立即纠正。