

作品包括:
WORD版设计说明书1份,共36页,约17000字
开题报告一份
外文翻译一份
CAD版本图纸,共7张
摘要
随着现代科学技术的发展,机器人技术越来越受到广泛关注,在工业生产日益现代化的今天,机器人的使用变得越来越普及。因此,对于机器人技术的研究也变得越来越迫切,尤其是工业机器人方面。本论文作者针对这一领域,设计了一款液压机械机械手,该机器人拥有五个自由度。首先,作者针对该机器人的设计要求,对结构设计选择了一个最优方案,对关键零件设计并进行校核。
本课题是一个机械、液压紧密的实用性项目,文中对机械手机械结构的设计、液压系统的设计讨。最后,总结了全文,指出了机械手的改进措施、应用前景和发展方向。
关键字:机械手,液压系统,五个自由度
目录
摘要 I
Abstract II
第1章 绪论 1
1.1 选题背景及其意义 1
1.2 国内外研究现状与发展趋势 1
1.3 本设计主要研究的内容 3
第2章 机械手的总体设计 4
2.1 机械手的组成及各部分关系概述 4
2.2 机械手的设计分析 4
2.2.1 设计要求 4
2.2.2 总体设计任务分析 4
2.2.3 总体方案拟定 6
第3章 机械手结构的设计分析 8
3.1 末端操作器的设计分析 8
3.2 手腕的设计分析 8
3.3 手臂的设计分析 8
3.4 机身和机座的设计分析 9
第4章 机械手各部件的载荷计算 11
4.1 设计要求分析 11
4.2 手指夹紧机构的设计 11
4.3 手臂伸缩机构载荷的计算 12
4.4 手臂俯仰机构载荷的计算 13
4.5 机身摆动机构载荷力矩的计算 13
4.6 初选系统工作压力 14
第5章 机械手各部件结构尺寸计算及校核 16
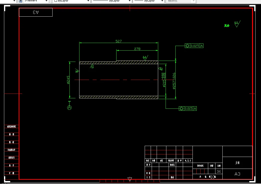
5.1 手腕油缸尺寸的确定 16
5.2 手臂伸缩机构结构尺寸的确定 19
5.3 手臂俯仰机构结构尺寸的确定 19
5.4 机身摆动机构的确定 19
5.5 强度校核 19
5.6 弯曲稳定性校核 20
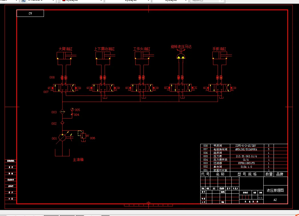
第6章 液压系统的设计 22
6.1 制定基本方案 22
6.1.1 基本回路的选择 22
6.2 液压元件的选择 22
6.2.1 液压泵的选择 22
6.2.2 液压泵所需电机功率的确定 24
6.2.3 液压阀的选择 24
6.2.4 液压辅助元件的选择原则 25
6.2.5 油箱容量的确定 26
6.2.6 液压原理图 27
结论 29
参考文献 30
温馨提示:
1、题目前面的备注【字母数字编号】为本站整理分类的编号,与课题内容无关,请选题时忽视;
2、若题目上备注三维,则表示文件里包含三维源文件,由于三维组成零件数量较多,为保证预览截图的简洁性,本站将三维文件夹进行了打包。三维及CAD预览截图,均为本站电脑打开软件进行截图的,保证能够打开,下载原件超高清,下载后解压即可;
3、本站所有资源如无特殊说明,都需要本地电脑安装Office2007。图纸软件为AutoCAD,PROE,UG,SolidWorks,CATIA等;
4、本站所有图文资料仅供用户学习参考,不作为任何商用或其他用途;
5、本站不保证下载资源的准确性、安全性和完整性, 不包修改,不支持退换,同时也不承担用户因使用这些下载资源对自己和他人造成任何形式的伤害或损失;
6、 下载文件中如有侵权或不适当内容,请与我们联系,我们立即纠正。