

作品包括:
word说明书一份,共40页,约14000字
任务书一份
开题报告一份
外文翻译一份
CAD版本图纸,共4张
摘 要
机械专业的毕业设计针对广大完成机械专业相关学科学习的应届毕业生,一次重要的事件性教学环节。同时也是高等工科院校大多数专业学生第一次较全面的设计能力训练,在此过程中,毕业生们将会对所学专业知识进行全面复习与实践。其目的是培养理论联系实际的设计思想,训练综合运用机械设计和相关选修课程的理论,结合实际分析和结局工程实际问题的能力,巩固、加深和扩展有关机械设计方面的知识。
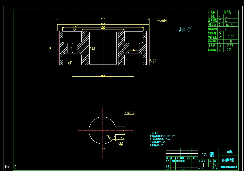
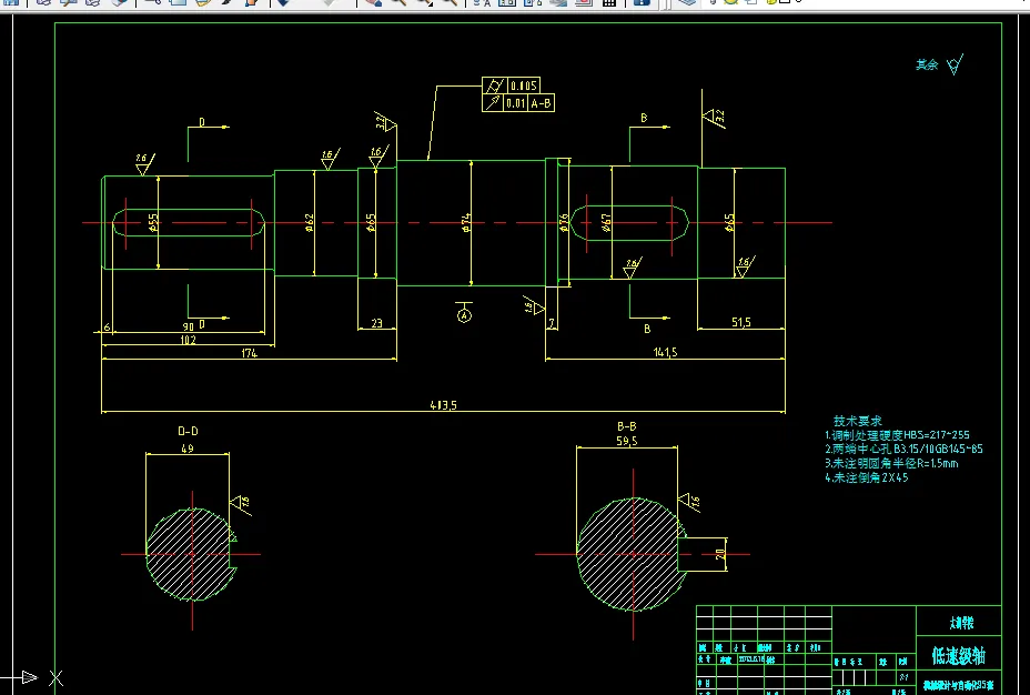
此次设计的论文题目是《工业窑炉的设计(输送装置)》。选择输送装置方向的毕业设计题目完全符合本专业的要求,从应用性方面来说,输送装置又是很多机器所必不可少的一个部分。有效保证输送装置的功率及稳定性能够达到设计的要求,具有很好的发展前途和应用前景。带式输送机是胶带兼作牵引机构和承载机构的一种机械设备,因此本课题研究带式输送机的工作原理,以及整体机械中的零件尺寸计算、选用标准和强度校核,必须要求学生要有良好的心理素质和仔细认真的作风,对学生也是一次很好的练习机会。根据题目要求和机械设计的特点做了以下几方面的工作:①选择适宜的带式输送机的总体设计方案;②选择电动机并计算传动装置的运动和动力参数;③传动零件以及轴的设计计算,轴承、滚动轴承、键、联轴器的选择及校验计算;④绘制减速器装配图及典型零件图;⑤编写一份分析明晰,计算正确,阐述清晰的设计说明。
关键词:带式输送机;减速器 ;机械设计计算;校验计算
目 录
摘 要 III
Abstract IV
目 录 V
1 绪论 1
1.1 课题研究的背景和依据 1
1.2 本课题的研究意义 1
1.3 课题国内外研究现状及发展趋势 1
1.3.1 国外带式输送机技术的现状及趋势 1
1.3.2 国产带式输送机的发展现状及趋势 1
2 带式输送机简介 3
2.1 带式输送机概述 3
2.2 带式输送机的特点 3
2.3 带式输送机安全运行保护装置 3
3 输送装置的总体设计 5
3.1 原始数据及设计要求 5
3.2 传动方案分析 5
3.2.1 所选方案的优缺点 5
3.3 电动机的选择 5
3.3.1 选择电动机的功率 5
3.3.2 选择电动机的转速 6
3.3.3 选择电动机的类型 6
3.4 传动比的分配 6
3.5 传动装置的运动和动力参数分析 7
4 传动件的设计计算 9
4.1 齿轮传动的设计计算 9
4.1.1 高速级齿轮的传动设计 9
4.1.2 低速级齿轮的传动设计 12
5 轴系零部件设计 16
5.1 轴的设计和计算 16
5.2 滚动轴承的选择和计算 20
5.2.1 1轴上的轴承的选择和寿命计算 20
5.2.2 2轴上轴承的选择计算 20
5.2.3 3轴上轴承的选择计算 21
5.3 键连接的选择与计算 22
5.4 联轴器的选择与计算 23
6 润滑与密封的说明 24
6.1 润滑说明 24
6.2 密封说明 24
6.2.1 减速器的密封 24
6.2.2 轴伸出端的密封 24
6.2.3 箱体结合面密封 24
6.2.4 轴承靠近箱体内外侧的密封 24
7 拆装和调整的说明 26
8 减速器箱体附件的说明 28
9 结论和展望 29
9.1 结论 29
9.2 不足之处及未来展望 29
致谢 31
参考文献 32
温馨提示:
1、题目前面的备注【字母数字编号】为本站整理分类的编号,与课题内容无关,请选题时忽视;
2、若题目上备注三维,则表示文件里包含三维源文件,由于三维组成零件数量较多,为保证预览截图的简洁性,本站将三维文件夹进行了打包。三维及CAD预览截图,均为本站电脑打开软件进行截图的,保证能够打开,下载原件超高清,下载后解压即可;
3、本站所有资源如无特殊说明,都需要本地电脑安装Office2007。图纸软件为AutoCAD,PROE,UG,SolidWorks,CATIA等;
4、本站所有图文资料仅供用户学习参考,不作为任何商用或其他用途;
5、本站不保证下载资源的准确性、安全性和完整性, 不包修改,不支持退换,同时也不承担用户因使用这些下载资源对自己和他人造成任何形式的伤害或损失;
6、 下载文件中如有侵权或不适当内容,请与我们联系,我们立即纠正。