

作品包括:
Word版说明书1份,共31页,约12000字
CAD版本图纸,共7张
中文摘要
立井多绳箕斗是在煤矿立井中用来配合摩擦轮提升机提升矿物的一种提升容器。目前我国煤矿使用的是JD系列的立井多绳提升煤矿箕斗。该系列箕斗已列入煤炭部部颁标准。在多绳提升系统中,为了减少提升侧与下放侧的张力差,采用平衡尾绳是十分必要的。平衡尾绳一种为扁钢丝绳,另一种为圆钢丝绳,二者都满足使用要求。但扁钢丝绳目前仍是由人工编织的,成本高,产量少,价格贵且质量不能保证。圆钢丝绳则恰好相反,因此在JD系列多绳箕斗标准设计中选圆尾绳。本次通过对箕斗尾绳装置的设计,了解他们的设计方法即箕斗尾绳悬挂装置的零件的安装、设计计算、零件的工艺分析、箕斗尾绳悬挂装置的工作原理,根据所设计的箕斗尾绳悬挂装置的工作需要,合理选择各个零件,连接件的材料及对所选的材料进行相应的热处理。
关键词:立井多绳;提升机;尾绳悬挂装置;提升系统
第一章 箕斗概述 5
1.1提升容器的概况 5
1.2提升容器的轻型化发展 5
1.2.1容质材料的选择 5
1.2.2轻质材料的选择 5
1.2.3高强钢的应用 6
1.3提升容器的改造 6
1.4JD系列箕斗的自我完善和改造 7
1.4.1JD系列立井多绳提煤箕斗的概述 7
1.4.2JD系列立井多绳提煤箕斗的品种及基本参数 8
1.4.3JD系列立井多绳提煤箕斗主要部件结构简述 10
第二章 多绳箕斗设计计算 12
2.1已知数据 12
2.2箕斗圆尾绳悬挂装置设计计算 12
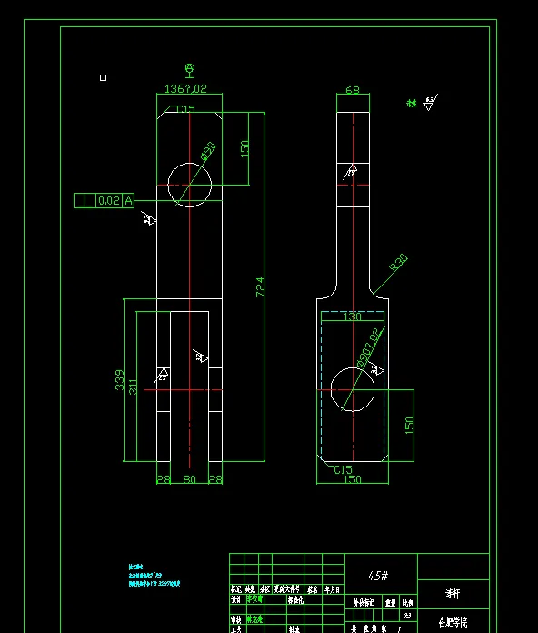
2.2.1连杆及连接销轴强度验算(图2-2) 13
2.2.2吊杆强度验算(图2-3) 15
2.2.3连接螺栓强度验算 17
第三章.主要零部件的工艺分析 18
3.1连杆的工艺分析 18
3.2吊杆的工艺分析 19
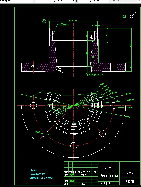
3.3锥形支架的工艺分析 20
3.4锥形套的工艺分析 20
3.5轴承套的加工工艺分析 22
第四章.箕斗尾绳悬挂装置的装配工艺分析 23
4.1螺纹连接要求: 23
4.2.1滚动轴承的安装: 23
4.2.2滚动轴承的预紧 23
4.2.3滚动轴承的润滑 24
4.3锥形套的浇注工艺 24
4.3.1浇注前的准备工作 24
4.3.2钢丝绳头的处理 24
4.3.3浇注 25
第五章.箕斗尾绳的快速更换方法 26
5.1准备工作 26
5.2换绳步骤 26
第六章.多绳摩擦提升系统尾绳断裂原因及其防护 28
6.1断绳原因分析 28
6.2防护措施 29
第七章总结 30
参考文献 30
致谢 31
温馨提示:
1、题目前面的备注【字母数字编号】为本站整理分类的编号,与课题内容无关,请选题时忽视;
2、若题目上备注三维,则表示文件里包含三维源文件,由于三维组成零件数量较多,为保证预览截图的简洁性,本站将三维文件夹进行了打包。三维及CAD预览截图,均为本站电脑打开软件进行截图的,保证能够打开,下载原件超高清,下载后解压即可;
3、本站所有资源如无特殊说明,都需要本地电脑安装Office2007。图纸软件为AutoCAD,PROE,UG,SolidWorks,CATIA等;
4、本站所有图文资料仅供用户学习参考,不作为任何商用或其他用途;
5、本站不保证下载资源的准确性、安全性和完整性, 不包修改,不支持退换,同时也不承担用户因使用这些下载资源对自己和他人造成任何形式的伤害或损失;
6、 下载文件中如有侵权或不适当内容,请与我们联系,我们立即纠正。