

作品包括:
Word版说明书1份,共70页,约33000字
外文翻译一份
CAD版本图纸,共8张
摘 要
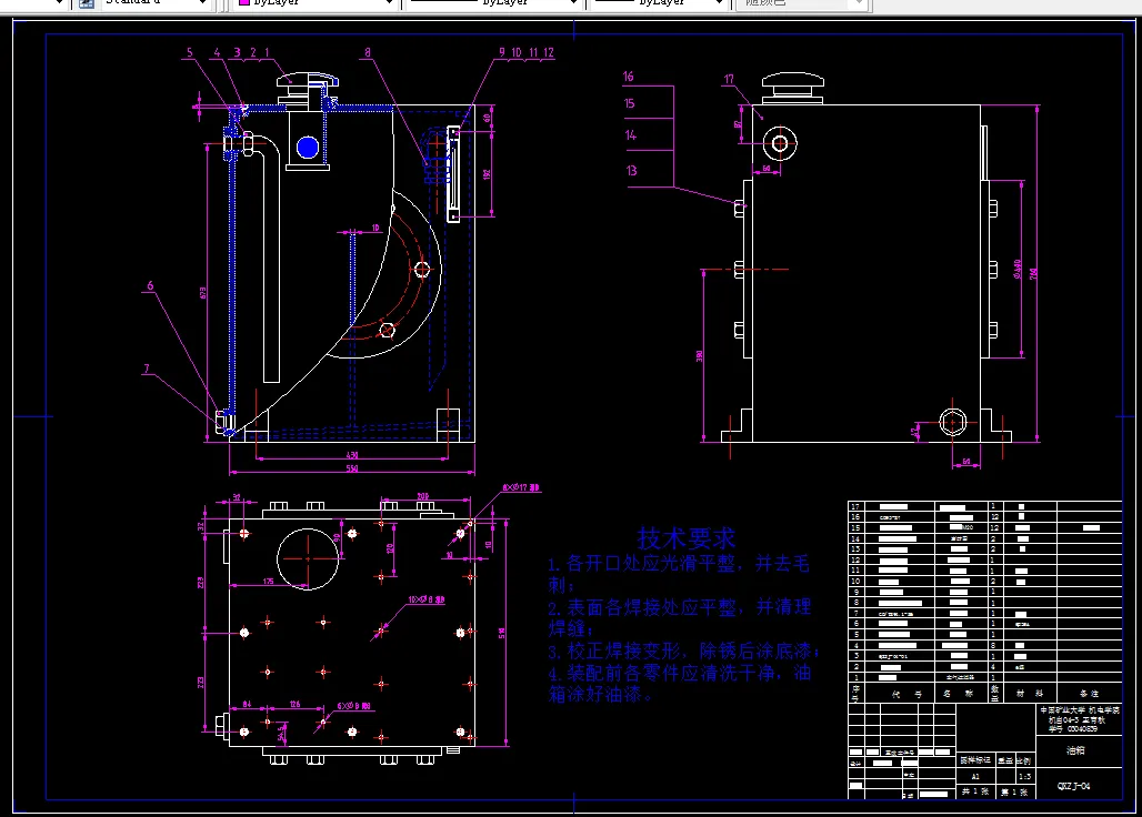
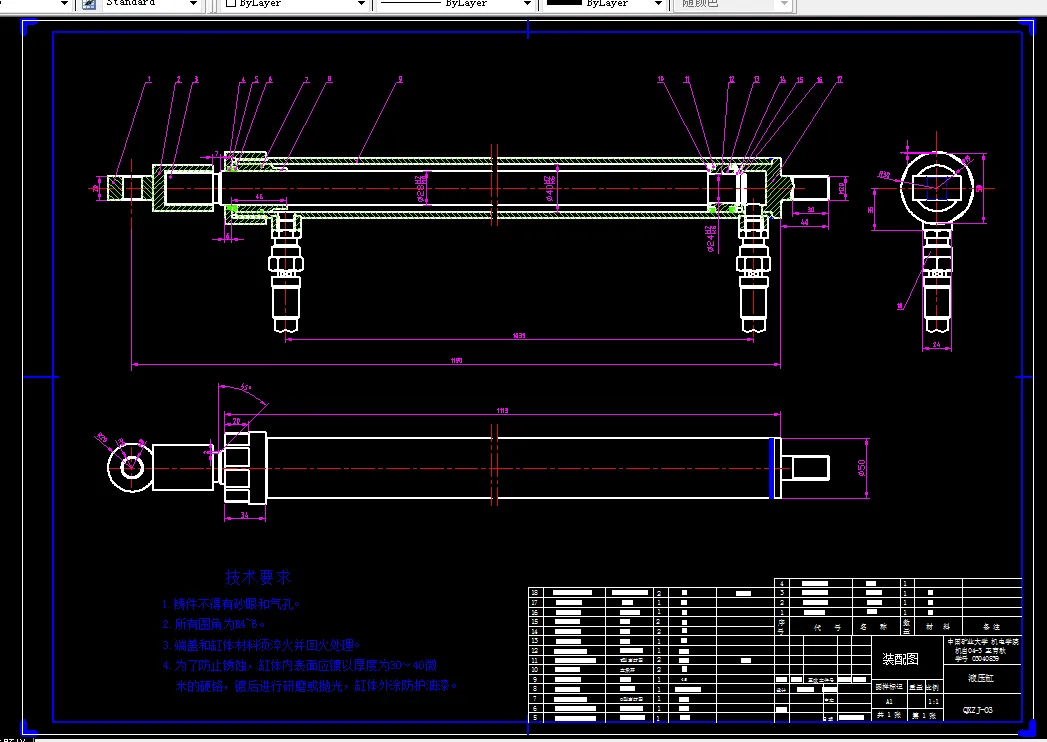
瓦斯抽放钻机主要用于瓦斯抽放孔,探水孔,防水孔等,根据其用途可知该钻机属于坑道钻机。具有扭矩大、给进拔起力强等特点。适用于煤矿井下大直径瓦斯抽放钻孔、地质勘探孔或地表工程中的大直径近水平钻机的施工。钻机整体结构主要由泵站、动力头、机架、安装座、钻具等部分组成。液压泵站主要有防爆电机、齿轮泵、油箱和溢流阀、冷却器、过滤器、空气滤清器以及底架组成。泵站是钻机的动力源,电动机通过联轴器驱动齿轮泵旋转,经过分流阀,产生旋转油路和推进油路两路不同流量、压力的压力油,其压力分别由各油路上的溢流阀来调整,经高压油管输送到动力头,回油经冷却器、精滤油器后流回油箱。动力头主要由液压马达、主轴,壳体锚固定在顶底板之间,调节杆可调整机架的安装角,即可满足钻孔的倾角要求。在压力油作用下液压马达驱动主轴旋转,再通过水辨轴给钻具传递运动和扭矩。机架主要由导轨架、液压缸、托板架、夹持器等组成。动力头安装在拖板架上,在压力油的作用下液压马达驱动齿轮旋转,并带着拖板架和动力头沿导轨架作直线往复运动,从而实现钻具的前进和后退。安装座主要由底架、立柱、整体报箍、横梁、上下支承座等组成。是支承、安装机架的装置。钻具包括钻杆和钻头,钻头选用胎块式针状硬质合金钻头,适用于中硬及其以下地层的钻进,适用性广、寿命长、效率高。不同的钻头类型、唇面形状、胚体配方使钻头在各种类型的地层中始终保持优越的性能。
关键词:瓦斯抽放钻机;液压缸;齿轮泵;针状硬质合金钻头
目 录
1 绪论 1
1.1引言 1
1.2钻探机械概述 1
1.2.1钻探机械的发展 1
1.2.2钻探机械的类型 4
1.3本课题应解决的主要问题 5
1.3.1轻型液压浅孔钻机的主要用途 5
1.3.2课题要解决的问题 5
1.3.3轻型液压浅孔钻机的特点 5
2轻型液压浅孔钻机 6
2.1概述 6
2.2主要用途及适用范围 6
2.3使用环境条件 6
2.4安全警示 6
3 轻型液压浅孔钻机的设计 8
3.1轻型液压浅孔钻机的总体方案 8
3.1.1已知条件 8
3.1.2液压浅孔钻机方案的确定 8
3.1.3传动系统的基本计算 9
3.1.4液压马达、泵站以及电机的选择计算 11
3.2推进液压缸的设计计算 15
3.2.1液压缸的设计计算步骤 15
3.2.2液压缸类型与安装方式 15
3.2.3液压缸性能参数的计算 16
3.2.4液压缸主要几何尺寸的计算 18
3.2.5液压缸结构参数的计算 19
3.2.6液压缸的联接计算 22
3.2.7液压缸强度和稳定性验算 26
3.3液压辅助元件的设计 30
3.3.1油箱容量计算 31
3.3.2油管 31
3.3.3管接头 33
3.3.4过滤器 34
3.3.5冷却器 39
3.3.6液压控制阀的选用 40
3.4液压传动系统的安装、使用和维护 45
3.4.1液压装置的安装要求 45
3.4.2液压油箱的安装要求 45
3.4.3液压阀的安装要求 45
3.4.4液压辅件的安装要求 46
3.4.5液压元件的安装要求 46
3.4.6液压设备的维护 47
3.5导轨、动力头的设计 49
3.5.1导轨的设计 49
3.5.2动力头 50
3.6 钻机安装座的设计 50
3.6.1立柱普通钢的选用 51
3.6.2立柱的受力分析 51
3.6.3千斤顶的设计 52
4钻机的安装 54
5钻机的操作 55
结论 56
参考文献 57
翻译部分 58
英文原文 58
中文译文 64
致谢 70
温馨提示:
1、题目前面的备注【字母数字编号】为本站整理分类的编号,与课题内容无关,请选题时忽视;
2、若题目上备注三维,则表示文件里包含三维源文件,由于三维组成零件数量较多,为保证预览截图的简洁性,本站将三维文件夹进行了打包。三维及CAD预览截图,均为本站电脑打开软件进行截图的,保证能够打开,下载原件超高清,下载后解压即可;
3、本站所有资源如无特殊说明,都需要本地电脑安装Office2007。图纸软件为AutoCAD,PROE,UG,SolidWorks,CATIA等;
4、本站所有图文资料仅供用户学习参考,不作为任何商用或其他用途;
5、本站不保证下载资源的准确性、安全性和完整性, 不包修改,不支持退换,同时也不承担用户因使用这些下载资源对自己和他人造成任何形式的伤害或损失;
6、 下载文件中如有侵权或不适当内容,请与我们联系,我们立即纠正。