

作品包括:
Word版说明书1份,共40页,约15000字
任务书一份
CAD版本图纸,共12张
摘要
我国沥青混凝土路面占公路总里程的90﹪以上。但是,沥青路面在使用过程中由于路基不稳和沥青本身的疲劳,经常会产生坑槽、裂缝、啃边和松散剥落等种种路病。以往对沥青路面修补采用镐头、铁锹,效率低、质量差、养护工人工作条件差。随着全球公路建设的飞速发展,越来越多地使用机械化挖补,能完成旧路面的破碎,沥青混凝土的输送,沥青(或乳化沥青)的喷洒及路面的压实等工艺要求,以保证道路维修质量,改善养护工人工作条件,提高工作效率和经济效益。
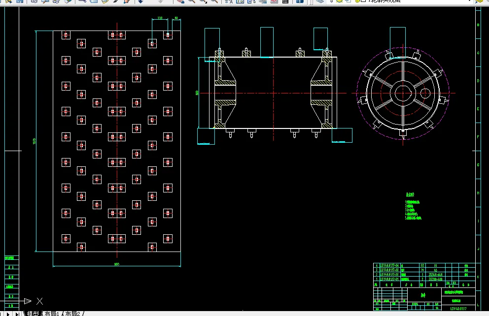
LDY-40道路养护工程车的铣刨系统是本次设计的题目,它是在总结以前各种沥青路面修补机械的修补工艺、传动方式、加热及保温设备技术经验的基础上设计的。同时,设备的装配,拆卸,维修及操作也十分方便,对环境的污染也很小。
本次设计的内容包括以下几个方面:
1.铣削转子的设计,其中包括刀具,铣刨轮的设计与装配;
2.铣刨轮轴的设计,其中包括与它安装的键,轴承的选取,校核及润滑密封;
3.铣刨轮传动系统的设计,其中包括滚子链的选取,链轮的设计,以及它们的校核,润滑;
4.其他零件,如减速器,联轴器的选择;
5.铣刨系统的技术管理及其在作业前,中,后的操作规程。
关键词:沥青混凝土路面,道路养护工程车,铣刨系统
目录
1 绪论 1
2 铣刨装置的设计计算 3
2.2.1结构 3
2.2.2刀具布置 3
2.3 铣刨轮轴的设计计算 9
2.3.1 选择材料及热处理方式 9
2.3.2 结构设计 9
2.3.3 确定轴的尺寸 10
2.3.4 键的选取及校核 11
2.3.5 轴承的选取及寿命计算 12
2.3.6 轴的校核 13
2.3.7 滚动轴承的润滑与密封 14
3 铣刨轮传动系统设计 15
3.1 概述 15
3.2 设计计算 15
3.3 链传动的校核 18
3.3.1 滚子链的静强度校核 18
3.3.2 滚子链的耐疲劳工作能力计算 19
3.3.3 滚子链的耐磨损工作能力计算 20
3.3.4 滚子链的抗胶合工作能力计算 21
3.4链传动的布置,张紧及润滑 22
3.4.1 链传动的布置 22
3.4.2 链传动的张紧 22
3.4.3链传动的润滑 22
3.5链轮尺寸 22
3.5.1小链轮 22
3.5.2大链轮 24
3.5.3大小链轮采用腹板式双排铸造链轮 26
3.6链轮的箱体设计外形 26
4 其他零部件的选择 28
4.1减速器的选择 28
4.1.1确定减速器的传动比和型式 28
4.1.2确定减速的公称中心距(规格) 28
4.1.3验算启动转矩 29
4.2联轴器的选择 29
5 铣刨系统的使用技术管理 30
5.1技术管理 30
5.2 操作规程 30
5.2.1作业前的技术准备 30
5.2.2 作业中的及技术要求 30
5.2.3 作业后的技术工作 30
6结论 32
参考文献 33
附录 34
致谢 35
温馨提示:
1、题目前面的备注【字母数字编号】为本站整理分类的编号,与课题内容无关,请选题时忽视;
2、若题目上备注三维,则表示文件里包含三维源文件,由于三维组成零件数量较多,为保证预览截图的简洁性,本站将三维文件夹进行了打包。三维及CAD预览截图,均为本站电脑打开软件进行截图的,保证能够打开,下载原件超高清,下载后解压即可;
3、本站所有资源如无特殊说明,都需要本地电脑安装Office2007。图纸软件为AutoCAD,PROE,UG,SolidWorks,CATIA等;
4、本站所有图文资料仅供用户学习参考,不作为任何商用或其他用途;
5、本站不保证下载资源的准确性、安全性和完整性, 不包修改,不支持退换,同时也不承担用户因使用这些下载资源对自己和他人造成任何形式的伤害或损失;
6、 下载文件中如有侵权或不适当内容,请与我们联系,我们立即纠正。