欢迎来到龙图网在线图文分享平台-CAD图纸,设计说明书,工业设计3D模型,三维软件下载! 客服QQ:2363701252
热搜: 工艺夹具 模具设计 数控编程 土木工程 3D模型

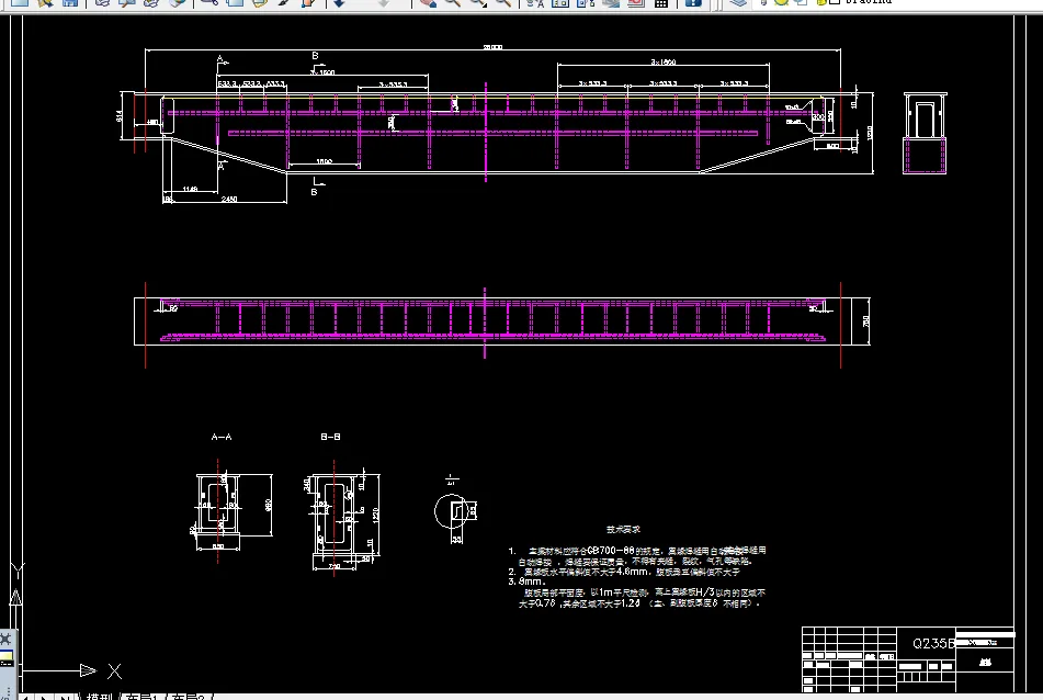
W890-双梁A型门式起重机结构设计 下载积分:50 资料编号: W890

1.打开支付宝或者微信扫描二维码。
2.填写金额:50 
3.添加备注,填写资料编号:
资料编号: W890
4.支付成功后,请发资料编号到邮箱:jxsj168@qq.com
会有专人在15分钟内把资料发到您邮箱
备注:如果付款忘记填写资料编号,则发邮件时附带您的交易明细截图即可。
请耐心等待,如超过30分钟还没收到,请联系客服QQ:2363701252

作品描述

作品包括:

Word版说明书一份,共71页,约9200字

开题报告一份

CAD版本图纸,共6张


摘要

进入21世纪以来,我国的铁路、造船工业进入了快速发展的轨道,门式起重机因其在露天作业环境中有其它类型起重机无法替代的优势,因此对其进行研究、创新,使其结构更合理,使用更方便,具有重要的战略和现实意义。本设计以双梁A型门式起重机结构设计为设计目标,内容包括主梁、支腿、马鞍、上下横梁等结构的设计。首先采用许用应力法及计算机辅助设计方法和第四强度理论对主梁结构进行载荷计算,然后对其强度、稳定性、刚度进行校核,最后进行螺栓连接的计算。如不符合,重复所做步骤。其设计很好的体现了结构力学、材料力学在金属结构件和起重机运输中的重要运用。

关键词:门式起重机;金属结构;载荷计算;双梁 .


目录

第一章 前言 1

1.1 结构简介 1

1.2 发展现状 1

1.3 研究目的和意义 2

第二章 总体设计 4

2.1 总体设计 4

2.1.1 材料选择 4

2.1.2 总体结构设计 4

2.1.3设计参数 5

2.2 部件截面形状的确定 6

2.3 截面惯性矩验算 11

第三章 主梁计算 12

3.1 载荷及内力计算 12

3.1.1 载荷计算 12

3.1.2内力计算 17

3.2 主梁的强度 24

3.2.1主梁弯曲应力验算 24

3.2.2 主梁支撑处的剪力 28

3.2.3 主梁疲劳强度 29

3.3主梁的稳定性 30

3.4 主梁刚度设计计算 35

3.4.1 主梁跨中一简支刚架静刚度计算 35

3.4.2 小车悬臂一简支刚架静刚度计算 36

3.4.3 主梁水平静刚度计算 36

3.4.4 悬臂的水平静刚度 37

3.4.5主梁动刚度 37

第四章 支腿平面内刚架的设计 40

4.1 钢架的三次超静定结构 40

4.2 马鞍横梁跨中截面内力计算 42

4.2.1 刚性腿侧计算 42

4.2.2 结构弯矩计算 43

第五章 支承架设计及计算 45

5.1支撑架刚度计算 45

5.2 支撑架的小车轨顶处位移 51

5.3 整体稳定性计算 58

第六章 螺栓连接强度计算 60

6.1 马鞍的连接强度计算 60

6.2 支腿与横梁的连接计算 61

6.3 主梁在跨中的连接计算 62

6.4主梁盖板的螺栓连接 62

结论 64

致谢 65

参考文献 66

附录:外文资料与中文翻译 67

温馨提示:

1、题目前面的备注【字母数字编号】为本站整理分类的编号,与课题内容无关,请选题时忽视;

2、若题目上备注三维,则表示文件里包含三维源文件,由于三维组成零件数量较多,为保证预览截图的简洁性,本站将三维文件夹进行了打包。三维及CAD预览截图,均为本站电脑打开软件进行截图的,保证能够打开,下载原件超高清,下载后解压即可;

3、本站所有资源如无特殊说明,都需要本地电脑安装Office2007。图纸软件为AutoCAD,PROE,UG,SolidWorks,CATIA等;

4、本站所有图文资料仅供用户学习参考,不作为任何商用或其他用途;
5、本站不保证下载资源的准确性、安全性和完整性, 不包修改,不支持退换,同时也不承担用户因使用这些下载资源对自己和他人造成任何形式的伤害或损失;

6、 下载文件中如有侵权或不适当内容,请与我们联系,我们立即纠正。


线

W890-双梁A型门式起重机结构设计 下载积分:50 资料编号:W890

作品描述

作品包括:

Word版说明书一份,共71页,约9200字

开题报告一份

CAD版本图纸,共6张


摘要

进入21世纪以来,我国的铁路、造船工业进入了快速发展的轨道,门式起重机因其在露天作业环境中有其它类型起重机无法替代的优势,因此对其进行研究、创新,使其结构更合理,使用更方便,具有重要的战略和现实意义。本设计以双梁A型门式起重机结构设计为设计目标,内容包括主梁、支腿、马鞍、上下横梁等结构的设计。首先采用许用应力法及计算机辅助设计方法和第四强度理论对主梁结构进行载荷计算,然后对其强度、稳定性、刚度进行校核,最后进行螺栓连接的计算。如不符合,重复所做步骤。其设计很好的体现了结构力学、材料力学在金属结构件和起重机运输中的重要运用。

关键词:门式起重机;金属结构;载荷计算;双梁 .


目录

第一章 前言 1

1.1 结构简介 1

1.2 发展现状 1

1.3 研究目的和意义 2

第二章 总体设计 4

2.1 总体设计 4

2.1.1 材料选择 4

2.1.2 总体结构设计 4

2.1.3设计参数 5

2.2 部件截面形状的确定 6

2.3 截面惯性矩验算 11

第三章 主梁计算 12

3.1 载荷及内力计算 12

3.1.1 载荷计算 12

3.1.2内力计算 17

3.2 主梁的强度 24

3.2.1主梁弯曲应力验算 24

3.2.2 主梁支撑处的剪力 28

3.2.3 主梁疲劳强度 29

3.3主梁的稳定性 30

3.4 主梁刚度设计计算 35

3.4.1 主梁跨中一简支刚架静刚度计算 35

3.4.2 小车悬臂一简支刚架静刚度计算 36

3.4.3 主梁水平静刚度计算 36

3.4.4 悬臂的水平静刚度 37

3.4.5主梁动刚度 37

第四章 支腿平面内刚架的设计 40

4.1 钢架的三次超静定结构 40

4.2 马鞍横梁跨中截面内力计算 42

4.2.1 刚性腿侧计算 42

4.2.2 结构弯矩计算 43

第五章 支承架设计及计算 45

5.1支撑架刚度计算 45

5.2 支撑架的小车轨顶处位移 51

5.3 整体稳定性计算 58

第六章 螺栓连接强度计算 60

6.1 马鞍的连接强度计算 60

6.2 支腿与横梁的连接计算 61

6.3 主梁在跨中的连接计算 62

6.4主梁盖板的螺栓连接 62

结论 64

致谢 65

参考文献 66

附录:外文资料与中文翻译 67

温馨提示:

1、题目前面的备注【字母数字编号】为本站整理分类的编号,与课题内容无关,请选题时忽视;

2、若题目上备注三维,则表示文件里包含三维源文件,由于三维组成零件数量较多,为保证预览截图的简洁性,本站将三维文件夹进行了打包。三维及CAD预览截图,均为本站电脑打开软件进行截图的,保证能够打开,下载原件超高清,下载后解压即可;

3、本站所有资源如无特殊说明,都需要本地电脑安装Office2007。图纸软件为AutoCAD,PROE,UG,SolidWorks,CATIA等;

4、本站所有图文资料仅供用户学习参考,不作为任何商用或其他用途;
5、本站不保证下载资源的准确性、安全性和完整性, 不包修改,不支持退换,同时也不承担用户因使用这些下载资源对自己和他人造成任何形式的伤害或损失;

6、 下载文件中如有侵权或不适当内容,请与我们联系,我们立即纠正。

关于我们 网站申明 友情链接 联系我们

扫一扫,联系微信客服


Copyright @ 龙图网版权所有  网站客服QQ:2363701252  微信客服:a58cad

皖ICP备2021006205号-2