

作品包括:
WORD版设计说明书1份,共34页,约13000字左右
CAD版本图纸,共11张
摘 要
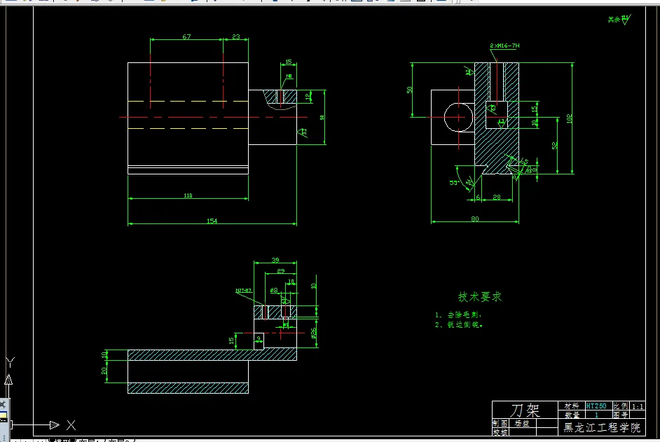
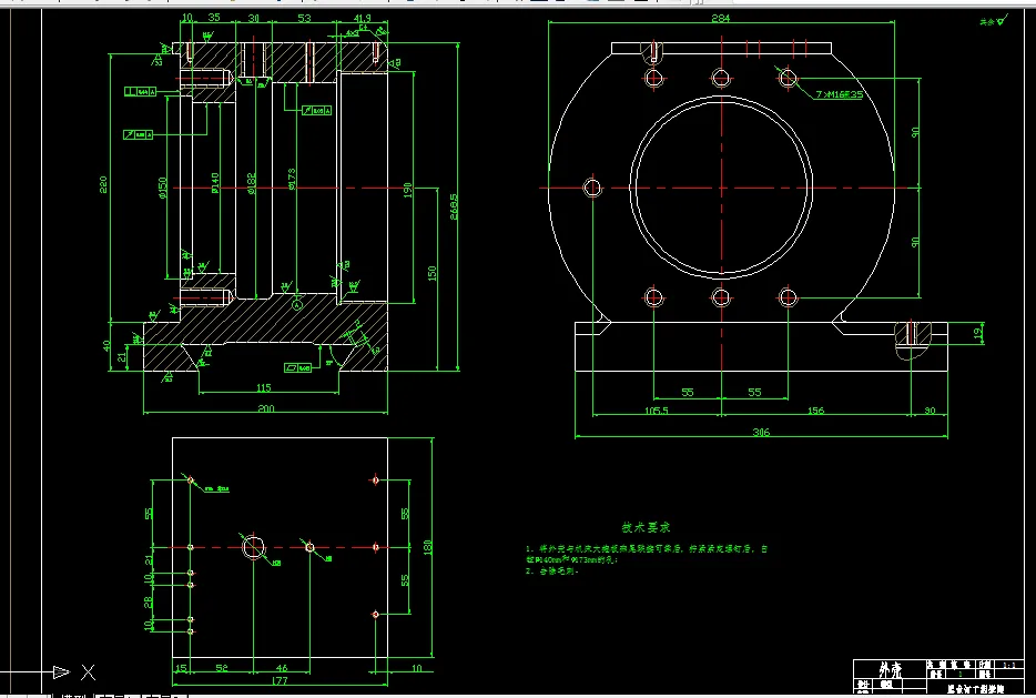
本说明书详细介绍了车滚压的加工原理,而且以圆柱筒为例,详细设计了一个用于圆柱筒外圆加工的车滚压装置,最后仔细分析了本装置的适用范围和经济价值等内容。圆柱筒的外圆加工通常采用(车—磨)等工序,但是本装置采用一种新的方法——滚压加工,来实现外圆表面的粗糙度的要求,而且滚压加工还有提高工件硬度、耐磨性、耐腐蚀性等在切削加工中无法得到的特性。本装置只需对普通车床加以改造,把大托板上的刀架换成本装置,就可以实现精密加工的效果。本装置适用于几乎所有外圆表面加工,而且对那些对表面有较高要求的工件,更能发挥出本装置的优势。本装置是一种工艺装备,而且结构简单,对于一般的厂家都有能力自行设计并制造出适合其产品的车滚压装置。
关键词:车滚压、外圆、滚子、粗糙度
目 录
摘要 ……………………………………………………………………………Ⅰ
Summary ………………………………………………………………………Ⅱ
第1章 绪论 …………………………………………………………………1
1.1 选题意义 ……………………………………………………………1
1.2 滚压加工的概况 ……………………………………………………1
1.2.1滚压加工的概念 ……………………………………………1
1.2.2滚压加工的原理 ……………………………………………1
1.2.3滚压加工的特点及其应用场合 ……………………………2
1.2.4滚压加工的分类 ……………………………………………3
1.3本文主要研究内容 …………………………………………………5
第2章 设计方案的确定……………………………………………………5
2. 1设计参数 ……………………………………………………………5
2. 2设计方案的确定 ……………………………………………………6
第3章 工作参数的选择……………………………………………………7
3.1 滚压力 ………………………………………………………………7
3.2 过 盈 量 ……………………………………………………………8
3.3 滚压速度 ……………………………………………………………8
3.4 滚压进给量 …………………………………………………………9
3.5 切削用量 ……………………………………………………………9
3.6 工件原始表面质量 …………………………………………………10
3.7 冷却液 ………………………………………………………………10
第4章 主要结构的确定及校核…………………………………………10
4.1滚子设计及计算 ……………………………………………………10
4.1.1滚子的设计 …………………………………………………12
4.1.2滚子的失效分析 ……………………………………………13
4.2滚压器的尺寸计算 …………………………………………………14
4.3轴承的选择及计算 …………………………………………………16
4.3.1轴承的受力分析 ……………………………………………16
4.3.2轴承寿命计算 ………………………………………………17
4.4导轨的选定 …………………………………………………………17
4.5其余结构的确定 ……………………………………………………18
4.5.1滚压过盈量的调节机构 ……………………………………18
4.5.2吃刀深度的调节机构 ………………………………………18
4.5.3车刀的选用 …………………………………………………19
4.5.4挡屑装置 ……………………………………………………19
4.5.5冷却装置 ……………………………………………………19
第5章 外圆滚压加工注意事项…………………………………………20
第6章 车滚压的加工效果.………………………………………………21
6.1尺寸精度和表面粗糙度………………………………………………21
6.2金属内部的物理变化…………………………………………………22
6.3表面性能的变化………………………………………………………22
第7章 车滚压装置的用途………………………………………………23
第8章 经济价值分析……………………………………………..24
结论 ……………………………………………………………………………25
致谢 ……………………………………………………………………………26
参考文献. ………………………………………………………………………27
专题 快速制模技术………………………………………………………..27
附录1 ……………………………………………………………………………36
附录2 ……………………………………………………………………………42
温馨提示:
1、题目前面的备注【字母数字编号】为本站整理分类的编号,与课题内容无关,请选题时忽视;
2、若题目上备注三维,则表示文件里包含三维源文件,由于三维组成零件数量较多,为保证预览截图的简洁性,本站将三维文件夹进行了打包。三维及CAD预览截图,均为本站电脑打开软件进行截图的,保证能够打开,下载原件超高清,下载后解压即可;
3、本站所有资源如无特殊说明,都需要本地电脑安装Office2007。图纸软件为AutoCAD,PROE,UG,SolidWorks,CATIA等;
4、本站所有图文资料仅供用户学习参考,不作为任何商用或其他用途;
5、本站不保证下载资源的准确性、安全性和完整性, 不包修改,不支持退换,同时也不承担用户因使用这些下载资源对自己和他人造成任何形式的伤害或损失;
6、 下载文件中如有侵权或不适当内容,请与我们联系,我们立即纠正。