

作品包括:
WORD版设计说明书1份,共30页,约13000字左右
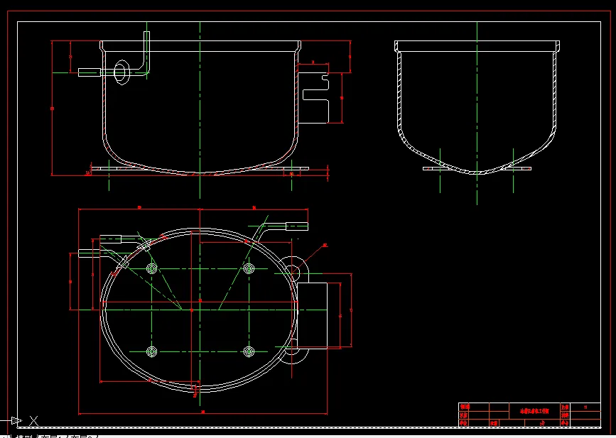
CAD版本图纸,共14张
目 录
前言……………………………………………………………………………………1
第一章 现代制造业的生产的夹具发展……………………………………………2
1.1 现代制造业的发展特点………………………………………………………2
1.2 现代夹具的发展方向…………………………………………………………2
1.3 机床夹具的功用………………………………………………………………2
1.4 装夹的实质……………………………………………………………………3
第二章 夹具的组成 …………………………………………………………………4
2.1 定位装置………………………………………………………………………4
2.2 夹紧装置………………………………………………………………………4
2.3 对刀-引导装置 ………………………………………………………………5
2.4 夹具体…………………………………………………………………………5
第三章 滚子的设计 …………………………………………………………………7
3.1 设计总的方案…………………………………………………………………7
3.2 轴承的选择……………………………………………………………………7
第四章 靠模设计 ……………………………………………………………………9
4.1 轮廓设计………………………………………………………………………9
4.2 具体设计………………………………………………………………………10
第五章 导轨设计 ……………………………………………………………………11
5.1 导轨的介绍……………………………………………………………………11
5.2 导轨的选用……………………………………………………………………12
5.3 导轨的设计 ………………………………………………………………… 14
5.4 导轨的材料与热处理…………………………………………………………15
5.5 导轨的润滑……………………………………………………………………16
第六章 蜗轮蜗杆的设计 …………………………………………………………18
6.1 蜗轮蜗杆的设计与计算………………………………………………………18
6.2 强度计算………………………………………………………………………19
6.3 蜗杆传动的润滑………………………………………………………………21
第七章 夹紧方案的设计……………………………………………………………22
7.1 夹具夹紧装置的组成………… ……………………………………………22
7.2 对夹具装置的要求………………………………………………………… 23
7.3 确定夹紧力……………………………………… …………………………23
7.4 夹紧力的方向……………………………………… ………………………23
7.5 夹紧力的确定…………………………………………………… …………24
7.6 夹紧动力的计算………………………………………… …………………25
第八章 夹具在机床中的定位对刀的设计………………………………………27
8.1 夹具的定位………………………………………………………………… 27
8.2 夹具体的设计………… ……………………………………………………27
结论……………………………………………………………………………………28
谢词……………………………………………………………………………………29
参考书目………………………………………………………………………………30
摘 要
随着科学技术的进步和生产的发展,为了适应现代机械工业的向更高,更快的方向发展,机床夹具向精密化,高效自动化,标准化的方向发展。
本课题研究的对象是壳体剖切专用夹具。适用对象为非标准零件或外形结构复杂的零件的加工和维修。工件通过夹紧装置固定在回转工作台上,刀具只做旋转运动,不做进给运动。通过靠模与滚子运动轨迹来实现工件相对与刀具复杂的运动,可以不停车一次性切削。应对专用夹具的部分部件,可调整夹具部分及夹具零件部分,实现统一的标准化。
关键词:专用夹具 ,进给运动,标准化
温馨提示:
1、题目前面的备注【字母数字编号】为本站整理分类的编号,与课题内容无关,请选题时忽视;
2、若题目上备注三维,则表示文件里包含三维源文件,由于三维组成零件数量较多,为保证预览截图的简洁性,本站将三维文件夹进行了打包。三维及CAD预览截图,均为本站电脑打开软件进行截图的,保证能够打开,下载原件超高清,下载后解压即可;
3、本站所有资源如无特殊说明,都需要本地电脑安装Office2007。图纸软件为AutoCAD,PROE,UG,SolidWorks,CATIA等;
4、本站所有图文资料仅供用户学习参考,不作为任何商用或其他用途;
5、本站不保证下载资源的准确性、安全性和完整性, 不包修改,不支持退换,同时也不承担用户因使用这些下载资源对自己和他人造成任何形式的伤害或损失;
6、 下载文件中如有侵权或不适当内容,请与我们联系,我们立即纠正。