

作品包括:
word说明书一份,共45页,约13000字
CAD版本图纸,共5张
摘 要
用于对坯料进行成型加工的锻压机械称作压力机。机械压力机动作平稳,工作可靠,广泛用于冲压、挤压、模锻和粉末冶金等工艺。
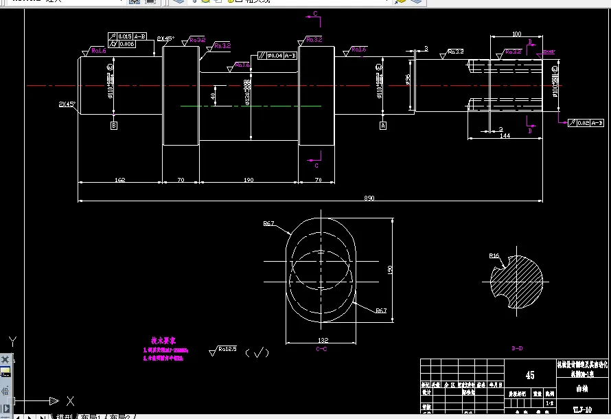
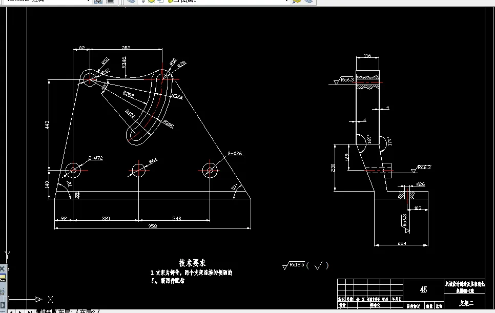
本次设计题目是双柱式倾斜压力机。倾斜式压力机由支承着床身和压头的底座支架,动力电源,压头,垂直于床身并作直线运动的机构组成。倾斜式压力机的优点是有利于废料的排出。在设计过程中,通过对冲压功率的分析,确定了飞轮和电动机功率。并且通过计算确定了各级传动比和基本尺寸。通过计算确定了系统的最大功率,对带轮和齿轮机构进行了外形尺寸和参数的计算。同时也对曲柄滑块机构进行结构设计,根据计算解决了曲轴和后轴的尺寸。
关键词:压力机;功率;机构
目 录
摘 要 I
Abstract II
第1章 绪论 1
1.1 设计的目的 1
1.2 设计的内容 1
1.3 设计要求和注意事项 1
1.3.1 设计要求 1
1.3.2 注意事项 2
1.4 传动方案的机构选型原则 2
1.5 传动装置的方案论证 3
1.6 执行机构方案论证 4
第2章 执行机构的设计计算及功率的确定 7
2.1 力、加速度及功率分析 7
2.2 电动机的选择 9
第3章 传动机构的设计及计算 12
3.1 带传动设计及计算 12
3.1.1 确定设计功率Pca 12
3.1.2 选择带型 12
3.1.3 确定带轮的基准直径dd1和dd2 12
3.2 带轮的设计 15
3.2.1 小带轮的设计 16
3.2.2 大带轮的设计 17
3.3 齿轮的设计计算 18
3.3.1 齿轮的类型、精度等级、材料和齿数 18
3.3.2 按齿面接触疲劳强度设计 19
3.3.3 按齿根弯曲疲劳强度的设计 21
3.3.4 几何尺寸计算 23
3.3.5 齿轮的结构设计 23
3.4 轴的设计 25
3.4.1 后轴的设计 25
3.4.2 曲轴的设计 28
第4章 轴承、机座及导轨的设计 30
4.1 轴承的设计 30
4.1.1 滚动轴承的选择及校核 30
4.1.2 曲轴两端滑动轴承的设计 31
4.2 机座的设计 33
4.2.1 机座材料的选择 33
4.2.2 机座设计的基本要求 33
4.2.3 肋的布置 33
4.2.4 连接结构设计 33
4.2.5 导轨的功用、分类和应满足的要求 34
4.2.6 直线滑动导轨的结构设计 34
结论............................................................................... 36
致谢....................... 37
参考文献 38
温馨提示:
1、题目前面的备注【字母数字编号】为本站整理分类的编号,与课题内容无关,请选题时忽视;
2、若题目上备注三维,则表示文件里包含三维源文件,由于三维组成零件数量较多,为保证预览截图的简洁性,本站将三维文件夹进行了打包。三维及CAD预览截图,均为本站电脑打开软件进行截图的,保证能够打开,下载原件超高清,下载后解压即可;
3、本站所有资源如无特殊说明,都需要本地电脑安装Office2007。图纸软件为AutoCAD,PROE,UG,SolidWorks,CATIA等;
4、本站所有图文资料仅供用户学习参考,不作为任何商用或其他用途;
5、本站不保证下载资源的准确性、安全性和完整性, 不包修改,不支持退换,同时也不承担用户因使用这些下载资源对自己和他人造成任何形式的伤害或损失;
6、 下载文件中如有侵权或不适当内容,请与我们联系,我们立即纠正。