

作品包括:
Word版说明书1份,共28页,约14000字
任务书一份
开题报告一份
外文翻译一份
CAD版本图纸,共6张

摘要
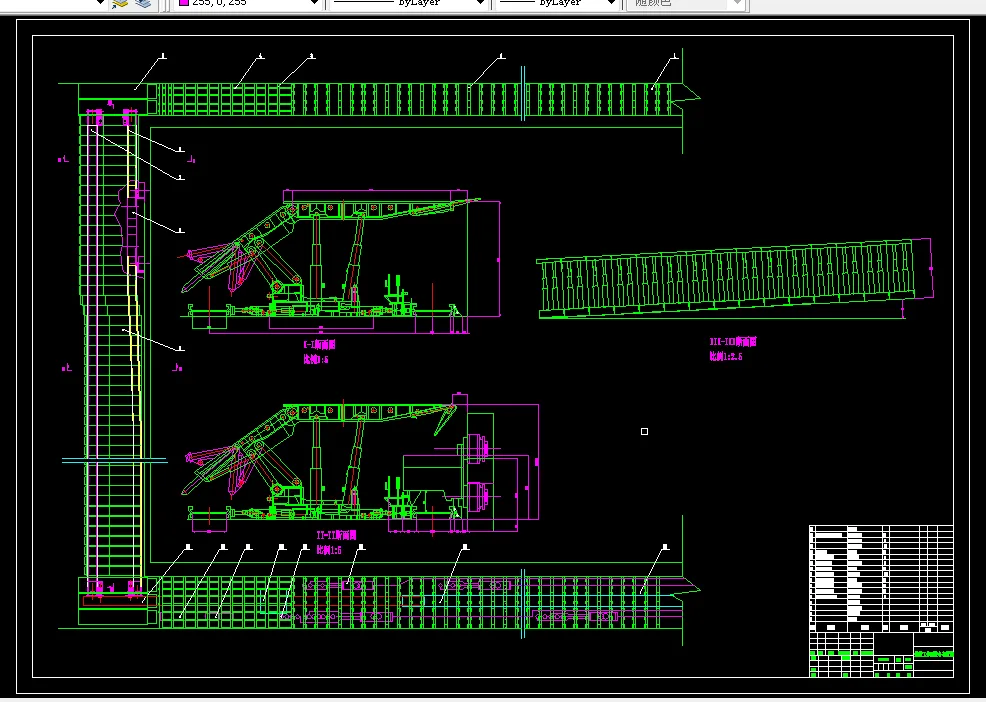
分离器是决定碾磨产品粗细度的重要组成部分。它由变速传动装置,转子,导叶,套管,粗粉落料锥斗,出风口等组成。它是一种高效,节能,快速的粉末选择装置。立式磨机是一种技术密集型干燥和研磨设备,集机械,电气,液压,材料和热工程于一体。它用破碎,干燥,研磨,粉状,运送形成一个整体。它是比球磨机更好的装备。立式磨的主要由分离器,磨辊,磨盘,加压,减速器,电动机,壳体组成。本篇文章主要讲解了立式磨的主要构造,工作性质,结构特性和主要数据数字,并根据设计参数进行了总体设计。在此基础上,重点介绍了分离器的设计和结构以及下壳体的下部,并简要介绍和分析了立式磨机的液压系统.
关键词:分离器下壳体液压系统
目录
摘要- 1 -
Abstract - 2 -
1、绪论- 5 -
1.1课题研究的目的和意义- 6 -
1.2国内外的研究状况- 6 -
1.3主要设计内容与要求- 8 -
1.3.1 1250立式磨性能要求- 8 -
1.3.2主要研究内容- 8 -
2、系统总体方案- 9 -
2.1立式磨的工作原理和特点- 9 -
2.1.1立式磨工作原理- 9 -
2.1.2立式磨结构特点- 10 -
2. 2立式磨的组成- 10 -
2.3主要的设计内容- 12 -
2.3.1磨机产量- 12 -
2.3.2磨盘直径的确定- 13 -
2.3.3分离器的设计- 13 -
2.3.4液压系统的设计- 14 -
2.3.5下壳体的设计- 14 -
3、分离器结构设计- 16 -
3.1分离机械的概述- 16 -
3.2分离器的工作原理及组成- 18 -
3.3分离器结构方案的确定- 19 -
3.4分离器尺寸结构设计计算- 20 -
3.4.1结构- 20 -
3.4.2分离器机构设计- 21 -
3.4.3分离器机构的控制要求- 22 -
4、液压系统设计- 23 -
4.1液压系统的原理及组成- 23 -
4.1.1工作原理- 23 -
4.1.2液压系统原理图- 24 -
4.2液压系统主要液压元件的选型- 24 -
4.3液压系统的构成- 25 -
4.3.1液压系统的用油- 25 -
4.3.2液压系统清洁度要求。 - 25 -
总结- 26 -
参考文献- 27 -
致谢- 29 -
温馨提示:
1、题目前面的备注【字母数字编号】为本站整理分类的编号,与课题内容无关,请选题时忽视;
2、若题目上备注三维,则表示文件里包含三维源文件,由于三维组成零件数量较多,为保证预览截图的简洁性,本站将三维文件夹进行了打包。三维及CAD预览截图,均为本站电脑打开软件进行截图的,保证能够打开,下载原件超高清,下载后解压即可;
3、本站所有资源如无特殊说明,都需要本地电脑安装Office2007。图纸软件为AutoCAD,PROE,UG,SolidWorks,CATIA等;
4、本站所有图文资料仅供用户学习参考,不作为任何商用或其他用途;
5、本站不保证下载资源的准确性、安全性和完整性, 不包修改,不支持退换,同时也不承担用户因使用这些下载资源对自己和他人造成任何形式的伤害或损失;
6、 下载文件中如有侵权或不适当内容,请与我们联系,我们立即纠正。