

作品包括:
Word版设计说明书1份,共36页,约21000字
任务书一份
CAD版本图纸,共8张
![1749966327918464.webp RHVJG}`%]V9DK0BI_N6P8ON.webp](/static/upload/image/20250615/1749966327918464.webp)
摘要
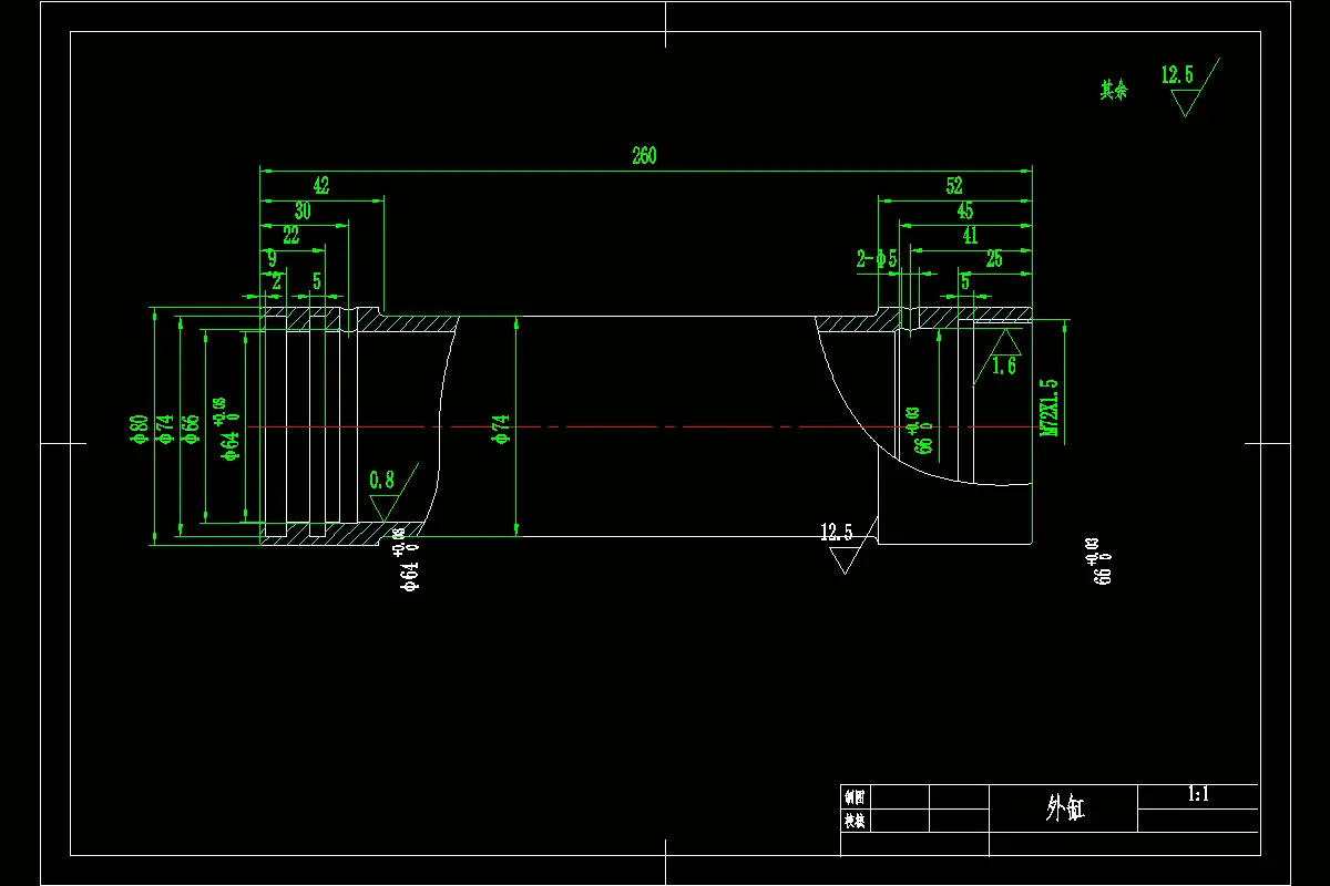
本设计是SL(手动)型锚索预紧拉力计的设计。拉力计是使锚索产生预紧力的同时,快速安装锚具的一种矿用设备。与国内其他产品比较有以下优点:① 重量轻,仅4.5Kg;②钢绞线外露短,120mm;③ 省力,同等用力升压30MPa;④速度快,每次排油4.5mL。本拉力计的主要性能参数为:张拉千斤顶额定张拉力180KN、张拉行程200mm、穿孔直径<φ15.5mm。在设计中主要有两大问题:①张拉千斤顶,也就是液压缸的设计,主要包括内缸、中缸、外缸、活塞、缸盖的结构设计以及密封装置的选择。各缸壁厚以及内外径的确定应根据受力情况进行设计,再考虑密封圈的尺寸系列进行圆整。缸筒与缸盖的联接形式根据结构要求选择。液压缸内各处静密封、动密封应根据液压手册选择常用形式。②锚具夹紧装置的设计。在设计过程中,各零部件的设计要交叉进行,根据互相关系确定,综合考虑结构要求确定结构形式。
关键词:液压缸,锚具,设计
目录
一、 主要零部件的结构设计--------------------------------------- 1
1、简介--------------------------------------------------------1
1.1、张拉操作过程--------------------------------------------1
1.2、主要性能参数--------------------------------------------1
2、液压缸的结构组成--------------------------------------------1
2.1、缸筒----------------------------------------------------1
2.2、活塞和活塞杆--------------------------------------------2
2.2.1、活塞的结构型式--------------------------------------2
2.2.2、活塞杆----------------------------------------------2
2.3、密封装置------------------------------------------------3
2.3.1、密封的分类------------------------------------------4
2.3.2、常用密封件材料的性能--------------------------------4
2.3.3、密封的基本原理及设计要点----------------------------5
2.3.4、静密封装置------------------------------------------5
2.3.5、往复运动密封装置------------------------------------6
3、主要结构、零部件的设计与选取--------------------------------7
3.1、内缸的壁厚设计计算--------------------------------------7
3.2、活塞外径设计计算----------------------------------------8
3.3、外缸壁厚和中缸内径的计算--------------------------------8
4、外缸、中缸、内缸及活塞的结构尺寸----------------------------11
4.1、活塞的结构型式-----------------------------------------11
4.2、确定内缸尺寸-------------------------------------------12
4.3、外缸的结构尺寸设计-------------------------------------14
二、各零件的技术要求的拟定,制造加工要求-----------------------23
1、缸筒的制造加工要求-----------------------------------------23
2、公差配合的选择---------------------------------------------23
2.1、基准制的选择-------------------------------------------23
2.2、公差等级的选择-----------------------------------------23
2.3、配合的选择---------------------------------------------24
2.4、表面粗糙度数值的选择-----------------------------------24
3、内缸与中缸、活塞以及中缸活塞与外缸的配合的选择-------------24
4、其他零件加工要求-------------------------------------------25
三、常见故障和排除方法-----------------------------------------27
1、缸筒、缸盖结合处结构性泄漏---------------------------------27
2、缸体组件的损坏---------------------------------------------29
2.1、缸筒的损坏---------------------------------------------29
2.2、螺纹退刀槽外的应力集中造成损坏-------------------------29
2.3、筒口连接法兰盘的变形-----------------------------------29
3、缸盖的损坏-------------------------------------------------30
3.1、缸盖(底)被冲坏-----------------------------------------30
3.2、缸盖螺纹损坏-------------------------------------------30
3.3、缸盖连接螺栓损坏---------------------------------------30
3.4、拉力计常见故障-----------------------------------------31
致谢
参考文献
温馨提示:
1、题目前面的备注【字母数字编号】为本站整理分类的编号,与课题内容无关,请选题时忽视;
2、若题目上备注三维,则表示文件里包含三维源文件,由于三维组成零件数量较多,为保证预览截图的简洁性,本站将三维文件夹进行了打包。三维及CAD预览截图,均为本站电脑打开软件进行截图的,保证能够打开,下载原件超高清,下载后解压即可;
3、本站所有资源如无特殊说明,都需要本地电脑安装Office2007。图纸软件为AutoCAD,PROE,UG,SolidWorks,CATIA等;
4、本站所有图文资料仅供用户学习参考,不作为任何商用或其他用途;
5、本站不保证下载资源的准确性、安全性和完整性, 不包修改,不支持退换,同时也不承担用户因使用这些下载资源对自己和他人造成任何形式的伤害或损失;
6、 下载文件中如有侵权或不适当内容,请与我们联系,我们立即纠正。