

作品包括:
Word版说明书1份,共56页,约19000字
开题报告一份
CAD版本图纸,共14张
![1749352653541389.webp NB8]M8E}Z}[YG4IS(TYFMI0.webp](/static/upload/image/20250608/1749352653541389.webp)
摘要
锤片式粉碎机是饲料加工机械的四大主机之一,是饲料生产必要的设备之一,其性能对饲料厂的节能降耗意义重大。分析了锤片式粉碎机的结构和工作原理,对处理谷物的锤片式粉碎机提出了优化设计方案,以提高粉碎效率、降低能耗,获得优质产品。
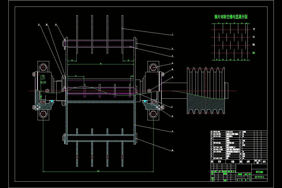
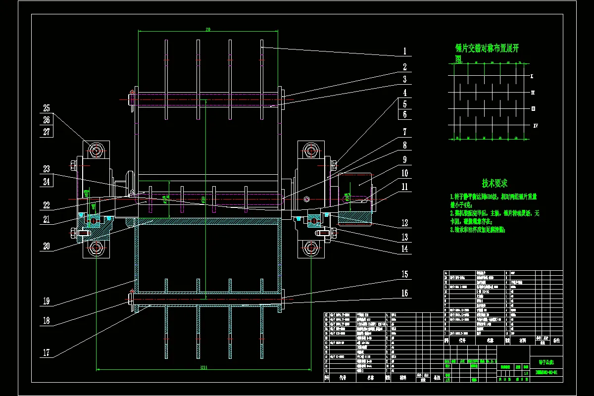
根据已有的双转子粉碎机的结构及工作原理,提出了自己的创新性设计方案。即:设计一种双转子锤片式粉碎机,包括进料口,机座,机壳和转子总成,驱动两个转子的中心轴旋转的动力及传动装置,机壳位于机座上,进料口位于机壳上,在机壳内设置有两个相互平行的转子总成;所述两个转子总成的锤片是轴向错位设置的;并且轴向错位设置的锤片的锤头端有部分重叠,即两个转子总成的锤片的锤头端面到轴心的距离之和大于两轴的轴心之间的距离。
关键词:双转子;锤片;粉碎机;进料口;转子;传动装置
目录
摘要I
Abstract II
1绪论1
1.1课题背景1
1.2课题研究的意义及主要内容2
2饲料粉碎机械概述及总体方案设计3
2.1粉碎基本理论3
2.2粉碎机械的分类3
2.3国内外粉碎机研究现状简述4
2.3.1我国饲料粉碎机技术发展现状4
2.3.2国外粉碎机研究现状综述5
2.4锤片式粉碎机7
2.4.1锤片式粉碎机的构造与工作过程7
2.4.2锤片式粉碎机主要工作部件8
2.5双转子粉碎机10
2.5.1双转子粉碎机设计开发的意义10
2.5.2双转子粉碎机的用途及特点10
2.5.3双转子粉碎机工作过程与原理11
2.5.4分析现有的两种种双转子粉碎机11
2.6双转子锤片式粉碎机的总体方案设计14
3双转子锤片式粉碎机设计计算15
3.1已知设计参数及设计要求15
3.2传动装置的总体设计15
3.2.1转子直径D与粉碎室宽度B的确定15
3.2.2拟定传动方案16
3.3带传动设计计算18
3.3.1左侧带传动18
3.3.2右侧带传动21
3.4齿轮传动设计计算24
3.5轴的结构设计计算29
3.5.1轴3的结构设计计算29
3.5.2轴1的结构设计计算31
3.6锤片结构设计及其强度校核33
3.6.1锤片的结构设计33
3.6.2锤片的布置34
3.6.3锤片的强度校核34
3.7轴的校核35
3.7.1轴3的结构及其强度校核35
3.7.2轴1的结构及其强度校核40
3.8轴承寿命计算44
3.9键的校核46
3.9.1主轴3上键的校核46
3.9.2主轴1上键的校核47
3.10双转子锤片式粉碎机箱体设计47
5结论与讨论49
参考文献50
致谢52
温馨提示:
1、题目前面的备注【字母数字编号】为本站整理分类的编号,与课题内容无关,请选题时忽视;
2、若题目上备注三维,则表示文件里包含三维源文件,由于三维组成零件数量较多,为保证预览截图的简洁性,本站将三维文件夹进行了打包。三维及CAD预览截图,均为本站电脑打开软件进行截图的,保证能够打开,下载原件超高清,下载后解压即可;
3、本站所有资源如无特殊说明,都需要本地电脑安装Office2007。图纸软件为AutoCAD,PROE,UG,SolidWorks,CATIA等;
4、本站所有图文资料仅供用户学习参考,不作为任何商用或其他用途;
5、本站不保证下载资源的准确性、安全性和完整性, 不包修改,不支持退换,同时也不承担用户因使用这些下载资源对自己和他人造成任何形式的伤害或损失;
6、 下载文件中如有侵权或不适当内容,请与我们联系,我们立即纠正。