

作品包括:
Word版说明书1份,共35页,约11000字
CAD版本图纸,共19张
摘要
多工位转位台是一种典型的间歇式工作系统,广泛应用于自动化和半自动化工业加工和生产领域,对其机械结构进行设计具有广泛应用价值。生产实际中,存在大量的六工位生产加工需求,因此本课题具有工程实践意义。传统的槽轮机构在曲柄上的圆销进入或脱离槽轮啮合瞬间,槽轮机构的速度为零,但角加速度不为零,产生冲击。为使槽轮机构传动平稳,减少冲击现象,本设计采用一种修正槽轮机构,它是利用圆销偏心的行星运动和槽轮啮合来实现,通过改变柱销进入或退出啮合时的撞击现象,使其进入或退出啮合时瞬时角加速度等于零,而使槽轮机构转动平稳、能传递一定的动力,扩大其使用范围。槽轮间歇转台具有简单的结构,旋转角度准确,运行安全可靠程度较高,制作效率高等优点。当槽轮被均速转动的圆滚驱动时,它常常有很高的加速和减速特性。在这里的改进中,当被槽凸轮转动驱动时,包括驱滚在内的输出杆可以沿径向移动。于是,当驱动滚与槽轮啮合时,连杆将沿径向向内移动。
关键词:多工位转台;槽轮机构; 设计
目录
第一章 绪论1
1.1 研究背景和研究意义1
1.2 自动化设备的发展1
1.3 槽轮的介绍2
第二章 六工位间歇转台设计方案的确定4
2.1间歇转台典型的结构方案4
2.2间歇转台方案的确定6
第三章 传动系统的设计7
3.1 传动系统的布局8
3.2电动机的选择9
3.3 传动装置的动力参数计算10
3.4 各轴的设计11
3.4.1 I轴的设计11
3.4.2 II轴的设计14
第四章 六工位间歇转台槽轮机构的设计17
4.1角速度和角加速度分析17
4.2槽轮的设计18
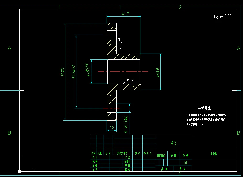
4.3固定轴的设计19
4.4槽轮轴的设计20
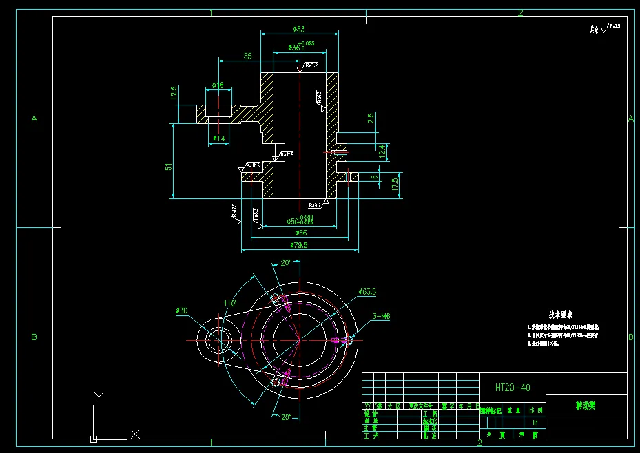
4.5转动架的设计21
4.6各零部件装配关系21
第五章 零件的强度校核22
5.1 槽轮轴的强度校核22
5.2 轴承寿命校核24
5.2.1求比值25
5.2.2初步计算当量动载荷P25
5.2.3验算轴承寿命25
5.3键的选择及校核计算26
总结27
参考文献28
致谢30
温馨提示:
1、题目前面的备注【字母数字编号】为本站整理分类的编号,与课题内容无关,请选题时忽视;
2、若题目上备注三维,则表示文件里包含三维源文件,由于三维组成零件数量较多,为保证预览截图的简洁性,本站将三维文件夹进行了打包。三维及CAD预览截图,均为本站电脑打开软件进行截图的,保证能够打开,下载原件超高清,下载后解压即可;
3、本站所有资源如无特殊说明,都需要本地电脑安装Office2007。图纸软件为AutoCAD,PROE,UG,SolidWorks,CATIA等;
4、本站所有图文资料仅供用户学习参考,不作为任何商用或其他用途;
5、本站不保证下载资源的准确性、安全性和完整性, 不包修改,不支持退换,同时也不承担用户因使用这些下载资源对自己和他人造成任何形式的伤害或损失;
6、 下载文件中如有侵权或不适当内容,请与我们联系,我们立即纠正。