

作品包括:
Word版说明书1份,共44页
任务书一份
开题报告一份
CAD版本图纸,共7张

摘要
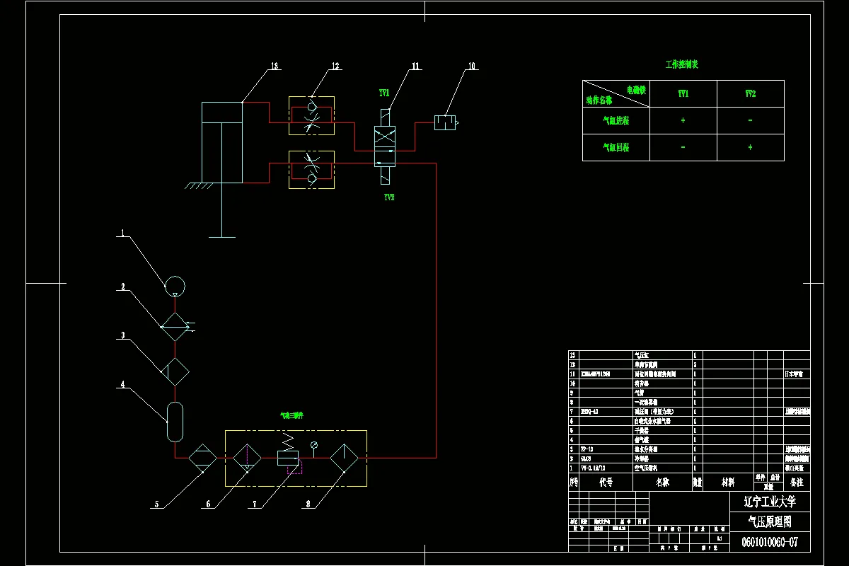
本次设计的题目为全自动弹簧预压机的设计。这台设备主要用于对已冷卷成型的弹簧进行预压冲击载荷,使弹簧的形状,节距进一步改善和释放弹簧内部因冷卷而残余应力,使工件在几何形状和内部结构上更进一步满足成品要求。
这个设计包括了机械系统设计和PLC控制系统设计。具体包括:皮带传动的设计及选择、气压缸的选择、步进电机的选择、联接中使用的紧固件(螺栓、螺母、垫圈)的选择和装置中的架体的设计。
本设计中的步进电机的控制采用可编程控制器(PLC)的控制,具体控制过程如下:由PLC控制步进电机转动的角度,当工件到达待加工位置时,接近开关打开,电机停止转动,气缸充气,压头下降,压缩之后气缸回程,接近开关打开,转盘转动,完成一次加工任务。
本设备的特点:机电一体化程度高、操作简单方便、可实现自动控制、工作效率高、工件可以大批量生产和对环境的要求较低等。
关键词:预压机可编程控制器(PLC)气缸步进电机
目录
第1章绪论5
1.1设计题目5
1.2设计总体5
1.2.1设计参数5
1.2.2方案设计6
第2章弹簧预压机的机械传动部分的设计计算7
2.1步进电动的选择7
2.1.1脉冲当量的选择7
2.1.2步进电动机转轴上的总传动惯量的计算7
2.1.3步进电动机转轴上的等效负载转矩的计算8
2.1.4步进电动机的初选9
2.1.5步进电动机的性能校核9
2.2带传动部分的设计计算11
2.2.1求设计功率11
2.2.2确定带的型号和节距12
2.2.3选择小带轮齿数13
2.2.4确定带轮节圆直径13
2.2.5初定中心距13
2.2.6确定同步带的节线长度13
2.2.7计算同步带齿数14
2.2.8传动中心距a计算14
2.2.9确定同步带设计功率为时所需带宽14
2.2.10验算15
2.2.11数据整理16
2.3轴的设计计算16
2.3.1按扭转强度条件计算16
2.3.2按弯扭合成强度计算17
2.4气缸的设计计算18
2.4.1活塞直径的计算18
2.4.2缸筒计算18
2.4.3活塞杆计算19
2.4.4数据整理19
2.4.5气压缸设计思路20
第3章控制系统设计21
3.1芯片的选择21
3.2基本电路23
3.3 PLC地址24
第4章软件部分设计26
4.1手动部分程序设计26
4.2自动部分程序设计27
第5章总结28
参考文献29
致谢30
附录Ⅰ 31
附录Ⅱ 35
温馨提示:
1、题目前面的备注【字母数字编号】为本站整理分类的编号,与课题内容无关,请选题时忽视;
2、若题目上备注三维,则表示文件里包含三维源文件,由于三维组成零件数量较多,为保证预览截图的简洁性,本站将三维文件夹进行了打包。三维及CAD预览截图,均为本站电脑打开软件进行截图的,保证能够打开,下载原件超高清,下载后解压即可;
3、本站所有资源如无特殊说明,都需要本地电脑安装Office2007。图纸软件为AutoCAD,PROE,UG,SolidWorks,CATIA等;
4、本站所有图文资料仅供用户学习参考,不作为任何商用或其他用途;
5、本站不保证下载资源的准确性、安全性和完整性, 不包修改,不支持退换,同时也不承担用户因使用这些下载资源对自己和他人造成任何形式的伤害或损失;
6、 下载文件中如有侵权或不适当内容,请与我们联系,我们立即纠正。