

作品包括:
Word版说明书1份,共41页,约14000字
任务书一份
CAD版本图纸,共12张
SW三维图一套
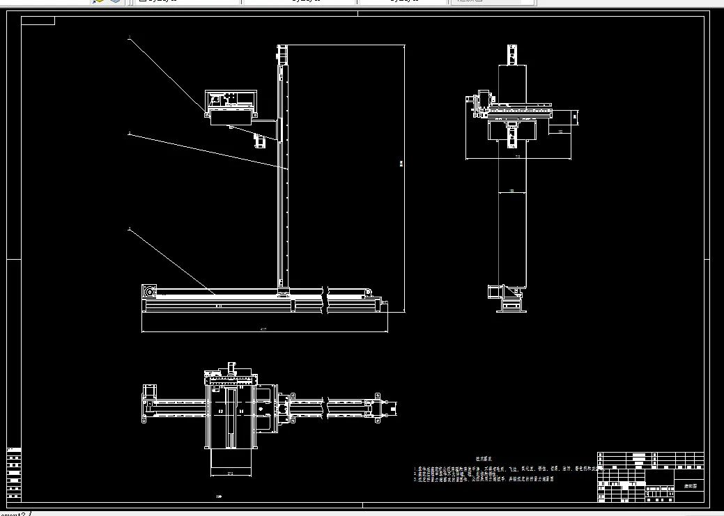
![1749869197502951.webp 1R8P]`P]`Q_D)G}1{TW2_FP.webp](/static/upload/image/20250614/1749869197502951.webp)
摘要
本论文旨在设计一种药房取药机械手结构,以提高药房工作效率和准确性。通过分析药房取药过程中的关键环节,确定了机械手需要具备的功能和性能。然后,根据功能需求,运用现代机械设计原理,进行结构设计和力学分析。在结构设计中,考虑了机械手的机械臂长度、关节数量和位置等因素,以增加其工作范围和灵活性。本论文设计了一种药房取药机械手结构,并通过实验验证了其有效性。该机械手能够满足药房取药过程中的需求,提高取药效率,减少错误。未来,我们将进一步完善机械手的性能,探索更多应用场景,以促进医疗服务的自动化和智能化发展。
关键词:取药机械手;结构;自动化;智能
目 录
1 绪论 1
1.1 研究背景及意义 1
1.2 国内外研究现状 1
1.2.1 国内研究现状 1
1.2.2 国外研究现状 2
2 药房取药机械手的总体方案的设计 4
2.1 机械手的功能要求 4
2.2 机器手的总体运动过程 4
2.3 各运动的传动方案设计 4
3 机械手的横向移动机构设计 6
3.1 横向运行机构方案设计 6
3.2 电机功率计算与选型 6
3.3 同步带的计算与选型 8
3.3.1 同步带的传动特点 8
3.3.2 同步带的设计计算 8
3.4 导轨的计算与选型 11
3.4.1 直线导轨的工作原理 11
3.4.2 初选导轨型号及估算导轨长度 11
3.4.3 导轨副距离额定寿命 12
3.4.4 导轨的技术要求 14
4 机械手纵向升降机构的设计 15
4.1 纵向升降机构方案设计 15
4.2 丝杠机构的设计计算 16
4.2.1 丝杆机构传动特点 16
4.2.2 螺旋传动的设计和选材 17
4.3 夹紧手臂的设计 18
4.3.1 夹紧手臂的结构设计 18
4.3.2 夹紧手臂的电机选型 18
4.3.3 夹紧手臂的轴的计算 19
4.3.4 夹紧手臂轴承的选型 20
4.3.5夹紧手臂齿轮的计算与校核 20
5药品抓手机架刚度分析 24
5.1 药品抓手机架有限元模型建立 24
5.1.1 模型结构简化 24
5.1.2 单元类型选择及网格划分 24
5.1.3 部件连接关系模拟 25
5.2 弯曲工况下机架刚度分析 26
5.2.1 弯曲工况下机架刚度计算方法 26
5.2.2 机架弯曲刚度仿真分析 27
5.3 扭转工况下机架刚度分析 29
5.3.1 扭转工况下机架刚度计算方法 29
5.3.2 机架扭转刚度仿真分析 30
结论 32
参考文献 33
致 谢 35
温馨提示:
1、题目前面的备注【字母数字编号】为本站整理分类的编号,与课题内容无关,请选题时忽视;
2、若题目上备注三维,则表示文件里包含三维源文件,由于三维组成零件数量较多,为保证预览截图的简洁性,本站将三维文件夹进行了打包。三维及CAD预览截图,均为本站电脑打开软件进行截图的,保证能够打开,下载原件超高清,下载后解压即可;
3、本站所有资源如无特殊说明,都需要本地电脑安装Office2007。图纸软件为AutoCAD,PROE,UG,SolidWorks,CATIA等;
4、本站所有图文资料仅供用户学习参考,不作为任何商用或其他用途;
5、本站不保证下载资源的准确性、安全性和完整性, 不包修改,不支持退换,同时也不承担用户因使用这些下载资源对自己和他人造成任何形式的伤害或损失;
6、 下载文件中如有侵权或不适当内容,请与我们联系,我们立即纠正。