

作品包括:
说明书一份,35页,月11000字
CAD版本图纸共8张
缸体气缸孔镗削动力头的设计
摘 要:机床中,动力头是机床的核心部件,直接反应着机床的加工性能。而零件是否能达到加工要求,主要取决于机床本身动力头的设计与制造精度是否达到了一定的程度。本设计是镗床动力头,用于加工气缸孔。本设计主要是对动力头的动力学参数和运动学方案的确定,再根据动力头的传动方案,设计出主轴箱,即主轴箱、主轴、传动轴和齿轮的参数,选定主轴和传动轴的轴承并对其进行校核。而动力头的进给运动采用液压传动的方式,并进行液压系统的设计与计算,得到一个完整的液压传动系统方案。最终完一个镗床动力头的设计。
关键字:动力头;镗床;镗削加工;液压系统
目 录
摘要 1
关键字 1
1 前言 1
2 动力学参数的选定 2
2.1 切削力计算 2
2.1 选择电动机 3
3 运动学及结构方案的确定 3
3.1 主运动传动方案的一般要求 3
3.2 主轴布置方案 3
3.3 主轴布置方案评价 4
4 主运动结构设计 5
4.1 传动装置传动比 5
4.2 计算传动装置的运动和动力参数 5
4.2.1 转速 5
4.2.2 功率 6
4.2.3 转矩 6
4.3 齿轮设计计算及校核 6
4.3.1 驱动轴与传动轴Ⅰ的齿轮设计与计算及校核 6
4.3.2 主轴与传动轴Ⅰ的齿轮设计与计算及校核 11
4.3.3 传动轴Ⅰ与传动轴Ⅳ、Ⅴ的齿轮设计计算 15
4.4 传动轴Ⅰ的设计、校核 15
4.4.1 初步确定轴的最小直径 15
4.4.2 轴的结构设计 15
4.4.3 求轴上的载荷 16
4.4.4 按弯扭合成应力校核轴的强度 19
4.4.5 精确校核轴的疲劳强度 20
4.5 主轴的设计 22
4.6 键的选择及其校核 23
4.6.1 键的选择 23
4.6.2 键的校核 23
4.7 轴承 23
4.7.1 轴承的选择 23
4.7.2 轴承寿命的校核(以主轴为例) 23
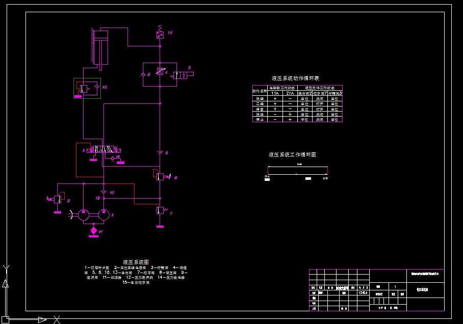
5 进给运动液压系统 26
5.1 负载分析 26
5.2 负载图和速度图的绘制 27
5.3 液压缸主要参数的确定 27
5.4 液压系统图的拟定 30
5.4.1 液压回路的选择 30
5.4.2 液压回路的综合 30
5.4.3 液压元件的选择 30
5.5 油液温升验算 34
6 结论 34
参考文献 35
致谢 36
附录 36
温馨提示:
1、题目前面的备注【字母数字编号】为本站整理分类的编号,与课题内容无关,请选题时忽视;
2、若题目上备注三维,则表示文件里包含三维源文件,由于三维组成零件数量较多,为保证预览截图的简洁性,本站将三维文件夹进行了打包。三维及CAD预览截图,均为本站电脑打开软件进行截图的,保证能够打开,下载原件超高清,下载后解压即可;
3、本站所有资源如无特殊说明,都需要本地电脑安装Office2007。图纸软件为AutoCAD,PROE,UG,SolidWorks,CATIA等;
4、本站所有图文资料仅供用户学习参考,不作为任何商用或其他用途;
5、本站不保证下载资源的准确性、安全性和完整性, 不包修改,不支持退换,同时也不承担用户因使用这些下载资源对自己和他人造成任何形式的伤害或损失;
6、 下载文件中如有侵权或不适当内容,请与我们联系,我们立即纠正。