

作品包括:
说明书一份,20页,约11000字
CAD版本图纸,共8张
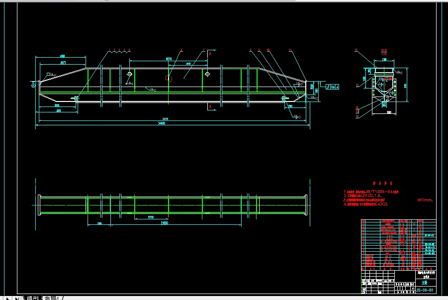
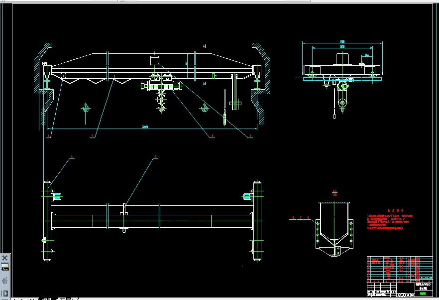
5T单梁桥式起重机金属结构设计
摘 要:该文主要对桥式起重机的金属结构进行了设计。金属结构的设计包括其主要尺寸的确定,主梁的设计、强度验算,以及刚度验算等,端梁的计算载荷的确定、主要焊缝的计算、接接头的设计,焊接工艺设计等等。
关键词:桥式起重机;金属结构;主梁
目 录
摘要………………………………………………………………………1
关键词………………………………………………………………………1
1 前言………………………………………………………………………………2
1.1 总体方案拟定……………………………………………………………2
2 主要尺寸设计计算………………………………………………3
2.1 大车轮距…………………………………………………………………3
2.2 主梁高度…………………………………………………………………3
2.3 端梁高度…………………………………………………………………3
2.4 桥架端部梯形高度………………………………………………………3
2.5 主梁腹板高度 ……………………………………………………………4
2.6 确定主梁截面尺寸………………………………………………………4
2.7 加劲板的布置尺寸 ………………………………………………………5
3 主梁的设计………………………………………………………5
3.1 主梁的长度………………………………………………………………5
3.2 主梁垂直最大弯矩……………………………………………………… 5
3.3 主梁水平最大弯矩……………………………………………………… 6
3.4 主梁的强度验算………………………………………………………… 7
3.5 主梁的垂直刚度验算…………………………………………………… 7
3.6 主梁的水平刚度验算 ……………………………………………………8
4 端梁的计算 ……………………………………………………………………9
4.1 计算载荷确定………………………………………………………… 10
4.2 端梁垂直最大弯矩………………………………………………………11
4.3 端梁水平最大弯矩………………………………………………………11
4.4 端梁截面尺寸的确定……………………………………………………11
4.5 端梁的强度验算…………………………………………………………11
5 主要焊缝的计算…………………………………………………………12
5.1 端梁端部上翼缘焊缝 …………………………………………………13
5.2 下盖板翼缘焊缝的剪应力验算………………………………………14
5.3 主梁与端梁的连接焊缝 ………………………………………………15
5.4 主梁上盖板焊缝…………………………………………………………15
6 端梁接头的设计………………………………………………………16
6.1 端梁接头的确定及计算 ………………………………………………16
6.1.1 腹板和下盖板螺栓受力计算………………………………………16
6.1.2 上盖板和腹板角钢的连接焊缝受力计……………………………16
6.2 计算螺栓和焊缝的强度…………………………………………………17
6.2.1 螺栓的强度校核 ……………………………………………………17
6.2.2 焊缝的强度校核 ……………………………………………………17
7 焊接工艺设计 ………………………………………………………………18
参考文献……………………………………………………………………………19
致谢…………………………………………………………………………………20
附录 …………………………………………………………………………………21
温馨提示:
1、题目前面的备注【字母数字编号】为本站整理分类的编号,与课题内容无关,请选题时忽视;
2、若题目上备注三维,则表示文件里包含三维源文件,由于三维组成零件数量较多,为保证预览截图的简洁性,本站将三维文件夹进行了打包。三维及CAD预览截图,均为本站电脑打开软件进行截图的,保证能够打开,下载原件超高清,下载后解压即可;
3、本站所有资源如无特殊说明,都需要本地电脑安装Office2007。图纸软件为AutoCAD,PROE,UG,SolidWorks,CATIA等;
4、本站所有图文资料仅供用户学习参考,不作为任何商用或其他用途;
5、本站不保证下载资源的准确性、安全性和完整性, 不包修改,不支持退换,同时也不承担用户因使用这些下载资源对自己和他人造成任何形式的伤害或损失;
6、 下载文件中如有侵权或不适当内容,请与我们联系,我们立即纠正。