

作品包括:
说明书一份,34页,约11000字
CAD版本图纸,共5张
10t单梁桥式起重机大车运行机构设计
摘 要:桥式起重机是一种工作性能比较稳定,工作效率比较高的起重机。随着我国制造业的发展,桥式起重机越来越多的应用到工业生产当中。在工厂中搬运重物,机床上下件,装运工作吊装零部件,流水在线的定点工作等都要用到起重机。在查阅相关文献的基础上,综述了桥式起重机的开发和研究成果,重点对桥式起重机大车运行机构、端梁、主梁、焊缝及连接进行设计并进行强度核算,主要是进行端梁的抗震性设计及强度计算和支承处的接触应力分析计计算过程。设计包括电动机,减速器,联轴器,轴承的选择和校核。设计中参考了许多相关数据, 运用多种途径, 利用现有的条件来完成设计。本次设计通过反复考虑多种设计方案, 认真思考, 反复核算, 力求设计合理;通过采取计算机辅助设计方法以及参考他人的经验, 力求有所创新;通过计算机辅助设计方法, 绘图和设计计算都充分发挥计算机的强大辅助功能, 力求设计高效。
关键词:桥式起重机,大车运行机构,主梁;端梁;焊缝
目 录
摘要………………………………………………………………………………………1
关键词……………………………………………………………………………………1
1 绪论 …………………………………………………………………………………2
1.1 起重机背景及其理论 ………………………………………………………2
1.2 实际意义 ……………………………………………………………………2
1.3 研究现状及存在问题 ………………………………………………………3
1.4 起重机国内与国外发展动向 ………………………………………………3
1.4.1 国内桥式起重机发展动向 …………………………………………3
1.4.2 国外起重机的发展动向 ……………………………………………4
1.5 单粱桥式起重机设计的总体方案 …………………………………………5
1.5.1 主梁和桥架的设计 …………………………………………………5
1.5.2 端梁的设计 …………………………………………………………5
1 大车运行机构的设计 ………………………………………………………………5
2.1 设计的基本原则和要求 ……………………………………………………5
2.1.1 机构的传动方案 ……………………………………………………6
2.1.2 大车运行机构具体布置的主要问题 ………………………………6
2.2 大车运行机构的计算 ………………………………………………………6
2.2.1 确定机构传动方案 …………………………………………………6
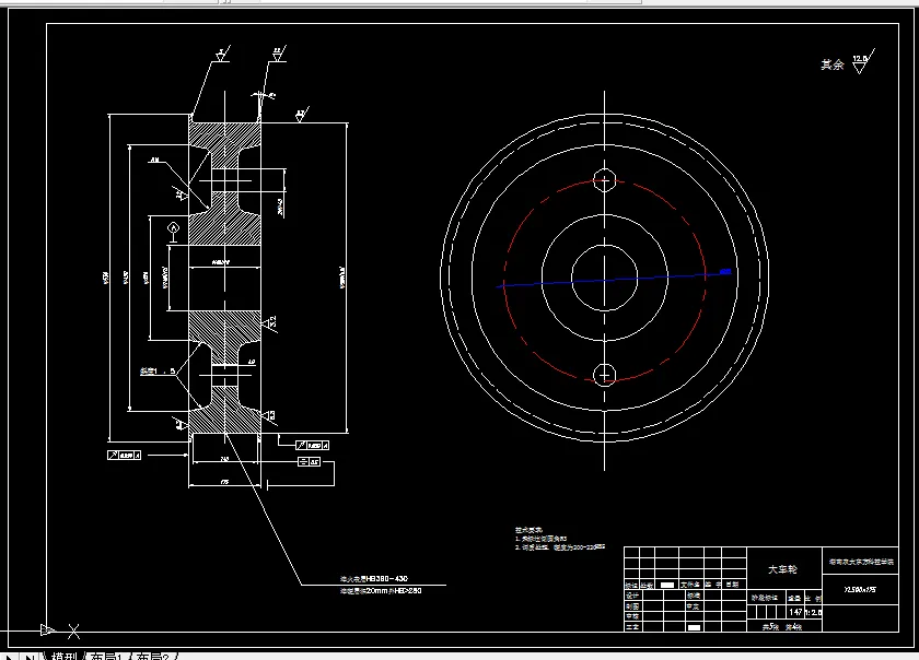
2.2.2 选择车轮与轨道,并验算其强度 …………………………………7
2.2.3 运行阻力计算 ………………………………………………………9
2.2.4 选择电动机 …………………………………………………………10
2.2.5 验算电动机的发热功率条件 ………………………………………10
2.2.6 减速器的选择 ………………………………………………………10
2.2.7 验算运行速度和实际所需功率 ……………………………………10
2.2.8 验算起动时间 ………………………………………………………12
2.2.9 起动工况下校核减速器功率 ………………………………………12
2.2.10 验算启动不打滑条件………………………………………………13
2.2.11 选择制动器…………………………………………………………14
2.2.12 选择联轴器…………………………………………………………15
2.2.13 浮动轴的验算………………………………………………………16
2.2.14 缓冲器的选择………………………………………………………17
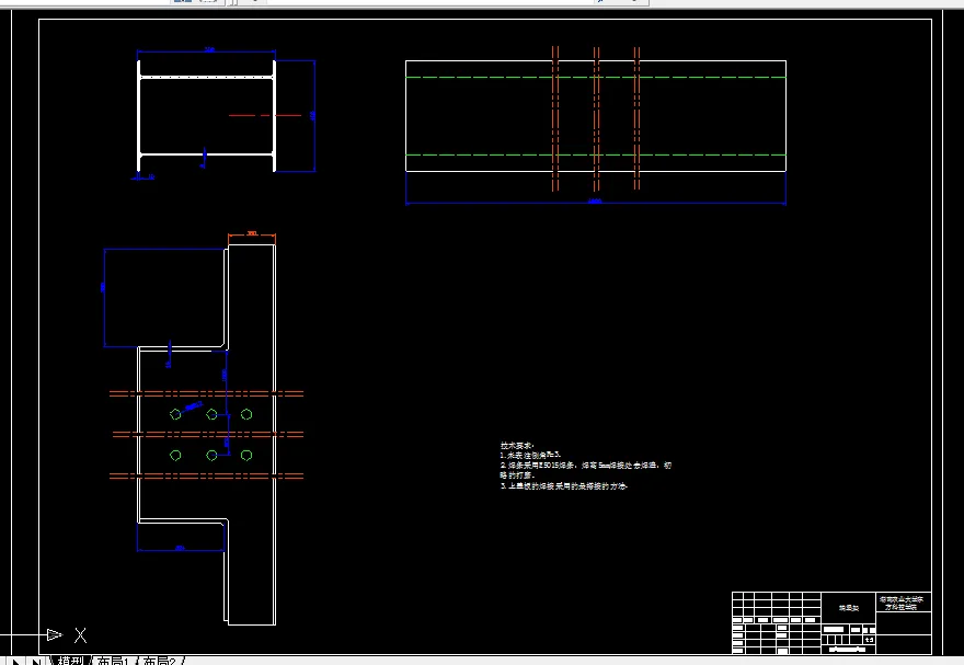
3 端梁的设计 …………………………………………………………………………18
3.1 端梁的尺寸的确定 …………………………………………………………18
3.1.1 端梁的截面尺寸 ……………………………………………………18
3.1.2 端梁总体的尺寸 ……………………………………………………19
3.2 端梁的计算 …………………………………………………………………19
3.3 主要焊缝的计算 ……………………………………………………………22
3.3.1 端梁端部上翼缘焊缝 ………………………………………………22
3.3.2 盖板翼缘焊缝的剪应力验算 ………………………………………23
4 端梁接头的设计 ……………………………………………………………………23
4.1 端梁接头的确定及计算 ……………………………………………………24
4.1.1 腹板和下盖板螺栓受力计算 ………………………………………25
4.1.2 上盖板和腹板角钢的连接焊缝受计算 ……………………………25
4.2 计算螺栓和焊缝的强度 ……………………………………………………26
4.2.1 螺栓的强度校核 ……………………………………………………26
4.2.2 焊缝的强度校核 ……………………………………………………26
5 焊接工艺设计 ………………………………………………………………………27
总结………………………………………………………………………………………30
参考文献…………………………………………………………………………………31
致谢………………………………………………………………………………………32
附录………………………………………………………………………………………32
温馨提示:
1、题目前面的备注【字母数字编号】为本站整理分类的编号,与课题内容无关,请选题时忽视;
2、若题目上备注三维,则表示文件里包含三维源文件,由于三维组成零件数量较多,为保证预览截图的简洁性,本站将三维文件夹进行了打包。三维及CAD预览截图,均为本站电脑打开软件进行截图的,保证能够打开,下载原件超高清,下载后解压即可;
3、本站所有资源如无特殊说明,都需要本地电脑安装Office2007。图纸软件为AutoCAD,PROE,UG,SolidWorks,CATIA等;
4、本站所有图文资料仅供用户学习参考,不作为任何商用或其他用途;
5、本站不保证下载资源的准确性、安全性和完整性, 不包修改,不支持退换,同时也不承担用户因使用这些下载资源对自己和他人造成任何形式的伤害或损失;
6、 下载文件中如有侵权或不适当内容,请与我们联系,我们立即纠正。