

作品包括:
Word版设计说明书1份,共18页,约7000字
CAD版本图纸,共9张

摘要
码垛机的工作过程为:托板→行走→下落→回走→托板。码垛机具有结构简单,易于实现控制,成本低,操作方便等优点。本课题的简易码垛机即是在传统液压式与链条式的结构基础上做进一步的改进,利用电动机的正反转、带传动、蜗杆减速器传动以及链传动的减速带动卷筒轴及卷筒的正反转来实现钢丝绳的升降过程,从而实现托架的升降及托爪的分离与合拢,进而就可以实现码垛机的码垛功能。可以稳定、安全,无损的将成型的砌块由链条送转机送至此码垛机,然后通过叉车输送出去。
[关键词]砌块;码垛机;简易设计
目 录
1 简易码垛机的现状及特点…………………………………………………………………1
2 码垛机整体的结构…………………………………………………………………………1
2.1 设计背景………………………………………………………………………………1
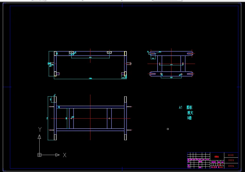
2.2 托架整体结构及尺寸设计……………………………………………………………2
2.2.1 托架结构与尺寸设计……………………………………………………………2
2.2.2 托爪结构及尺寸设计……………………………………………………………3
2.3 机架的结构及传动部分设计…………………………………………………………5
2.3.1 机架结构及尺寸设计……………………………………………………………5
2.3.1 主电机的计算 ………………………………………………………………… 5
2.3.2 带传动的设计……………………………………………………………………8
2.3.3 蜗杆减速器的选择…………………………………………………………… 10
2.3.4 链传动的设计………………………………………………………………… 10
2.3.5 轴的设计与校核……………………………………………………………… 12
2.3.6 卷筒外形及其尺寸设计……………………………………………………… 13
2.3.7 轴承选用及轴承座的设计…………………………………………………… 13
2.3.8 钢丝绳的选择………………………………………………………………… 14
3 总装技术要求…………………………………………………………………………… 14
4 控制电路设计…………………………………………………………………………… 15
结束语……………………………………………………………………………………… 16
参考文献…………………………………………………………………………………… 17
附录………………………………………………………………………………………… 18
致谢………………………………………………………………………………………… 19
温馨提示:
1、题目前面的备注【字母数字编号】为本站整理分类的编号,与课题内容无关,请选题时忽视;
2、若题目上备注三维,则表示文件里包含三维源文件,由于三维组成零件数量较多,为保证预览截图的简洁性,本站将三维文件夹进行了打包。三维及CAD预览截图,均为本站电脑打开软件进行截图的,保证能够打开,下载原件超高清,下载后解压即可;
3、本站所有资源如无特殊说明,都需要本地电脑安装Office2007。图纸软件为AutoCAD,PROE,UG,SolidWorks,CATIA等;
4、本站所有图文资料仅供用户学习参考,不作为任何商用或其他用途;
5、本站不保证下载资源的准确性、安全性和完整性, 不包修改,不支持退换,同时也不承担用户因使用这些下载资源对自己和他人造成任何形式的伤害或损失;
6、 下载文件中如有侵权或不适当内容,请与我们联系,我们立即纠正。