

作品包括:
Word版设计说明书1份
CAD版本图纸,共18张
Proe三维图一套
摘要
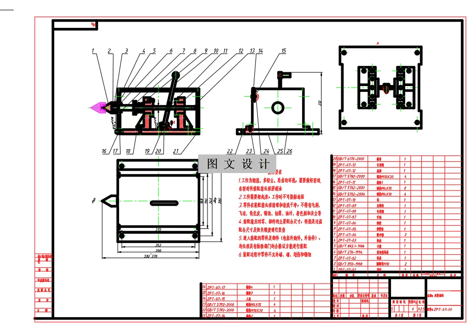
依据市场调研,运用机械设计理论,在分析了喷漆机器人工况要求的基础上,设计了直角移动型喷漆机器人的机架、臂部。 选择了喷漆机器人总体方案为直角坐标型,采用直线单臂机器人,作为喷枪的横向移动;设计了两组交流伺服电机直连滚珠丝杠副,实现工件的水平运动,对其中的丝杆轴进行了强度校核等。设计了一个将工件进行翻转的夹具,使用蜗杆蜗轮驱动夹具叉、手拉式顶尖,完成工件的翻转运动。对重要部件螺栓、联轴器、键、轴承进行选用,对机架底座进行设计。使用pro/e软件三维建模,进一步对各参数进行优化,达到了设计目的。
温馨提示:
1、题目前面的备注【字母数字编号】为本站整理分类的编号,与课题内容无关,请选题时忽视;
2、若题目上备注三维,则表示文件里包含三维源文件,由于三维组成零件数量较多,为保证预览截图的简洁性,本站将三维文件夹进行了打包。三维及CAD预览截图,均为本站电脑打开软件进行截图的,保证能够打开,下载原件超高清,下载后解压即可;
3、本站所有资源如无特殊说明,都需要本地电脑安装Office2007。图纸软件为AutoCAD,PROE,UG,SolidWorks,CATIA等;
4、本站所有图文资料仅供用户学习参考,不作为任何商用或其他用途;
5、本站不保证下载资源的准确性、安全性和完整性, 不包修改,不支持退换,同时也不承担用户因使用这些下载资源对自己和他人造成任何形式的伤害或损失;
6、 下载文件中如有侵权或不适当内容,请与我们联系,我们立即纠正。