

作品包括:
Word版说明书1份,共46页,约21000字
开题报告一份
外文翻译一份
CAD版本图纸,共11张
![1751166850285478.webp W5]ZXI$AO9)O%M_LRHW[0D5.webp](/static/upload/image/20250629/1751166850285478.webp)
摘 要
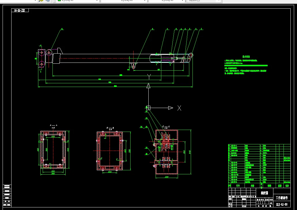
随着经济建设的迅速发展,我国的基础建设力度正逐渐加大,道路交通,机场,港口,水利水电,市政建设等基础设施的建设规模也越来越大,市场汽车起重机的需求也随之增加。本文通过对QY8吨汽车起重机主臂进行研究,进一步进行主臂设计,通过计算对主臂的三铰点、主臂的长度、及每节臂的长度、液压缸尺寸进行确定,选择零部件,确定主臂伸缩方式及主臂内钢丝绳的缠绕方法。
本文着重对QY8型汽车起重机的变幅液压缸、起升机构两个部分做了研究和设计。对液压系统的调速回路和回转回路进行了改良设计,调速系统采用了更为合理的双泵分合流开式系统,并且优化了起升机构的结构,选用体积小、传动比大的专用卷扬行星减速机,使起升机构结构更为紧凑。回转系统加转了动态稳定性较好的平衡阀,减少了冲击,提高了操作精度。对变幅液压缸进行结构和参数设计,具体进行了三铰点受力模型的建立和分析,变幅液压缸稳定性的校核等工作。对起升机构进行了初步设计,主要对组合式焊接铸造卷筒作了结构设计,运用完整的理论进行了筒壁的强度校核。
关键词:8吨汽车起重机、主臂设计、三铰点、伸缩方式
目录
摘 要 1
Abstract 2
1 绪论 3
1.1 起重机械的工作特点及其在国民经济中的作用 3
1.2 国内汽车起重机的发展概况和发展趋势 4
1.2.1 国内汽车起重机的发展概况 4
1.2.2 国内汽车起重机发展趋势 4
1.3 国外汽车起重机发展概况及发展趋势 5
1.3.1 国外汽车起重机发展概况 5
1.3.2 国外汽车起重机发展趋势 6
1.4 本课题内容及重要意义 7
2 8吨汽车式起重机的主要技术参数和工作级别 9
2.1 8吨汽车式起重机的主要技术参数 9
2.2 8吨汽车起重机的工作级别 11
3 8吨汽车起重机主臂尺寸的确定 14
3.1 吊臂跟部铰点位置的确定 14
3.2 吊臂各节尺寸的确定 15
3.3 变幅液压缸铰点的确定 16
3.4 吊臂截面的选择及截面尺寸确定 19
4 主臂伸缩机构的设计计算 21
4.1 臂架伸缩机构的驱动形式 21
4.2 臂架伸缩液压缸的计算及选择 22
4.2.1 缸筒内径计算 22
4.2.2 活塞杆直径 23
4.2.3 缸筒壁厚及外径计算 24
5 起身机构设计 26
5.1 起升机构的传动方案的分析 26
5.2 起升机构设计计算 28
5.2.1 起升机构 28
5.2.2 起升机构的零部件选择计算 28
5.2.3 卷筒设计 30
5.2.6 卷筒筒壁的稳定性验算 35
5.2.7 起升机构制动器设计 36
5.2.8 起升机构制动器相关参数选择 36
5.2.9 起升机构制动器的设计计算 37
5.2.10 起升机构传动装置减速器选择及传动比的验算 38
结束语 39
参考文献 40
致谢 41
附录1: 42
附录2: 43
温馨提示:
1、题目前面的备注【字母数字编号】为本站整理分类的编号,与课题内容无关,请选题时忽视;
2、若题目上备注三维,则表示文件里包含三维源文件,由于三维组成零件数量较多,为保证预览截图的简洁性,本站将三维文件夹进行了打包。三维及CAD预览截图,均为本站电脑打开软件进行截图的,保证能够打开,下载原件超高清,下载后解压即可;
3、本站所有资源如无特殊说明,都需要本地电脑安装Office2007。图纸软件为AutoCAD,PROE,UG,SolidWorks,CATIA等;
4、本站所有图文资料仅供用户学习参考,不作为任何商用或其他用途;
5、本站不保证下载资源的准确性、安全性和完整性, 不包修改,不支持退换,同时也不承担用户因使用这些下载资源对自己和他人造成任何形式的伤害或损失;
6、 下载文件中如有侵权或不适当内容,请与我们联系,我们立即纠正。