

作品包括:
Word版说明书1份,共57页,约23000字
CAD版本图纸,共6张

摘要
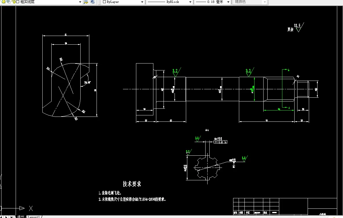
鼓式制动器也可以称作块式制动器,是通过张力的作用让制动蹄张开,使制动片和制动鼓接触产生摩擦力达到制动的效果。
在现代汽车上,制动系统是保证汽车在各个工况下的行车安全、稳定等各项因素的保证。制动系统伴随着汽车的问世也开始被不断开发和改进,制动器是制动系统的主要部件,本设计介绍了制动器的工作原理和基本结构;以实际制动器为参考对制动器的方案进行理论论证和选择;对制动器结构和制动器主要参数进行计算和选择;同时也涉及到制动器设计的计算和主要零件的建议分析。并在最后完成制动器的装配图和零件图。
关键词:鼓式制动器,制动蹄片,制动系统
目录
1 绪论 1
1.1 制动器的概述 1
1.2 制动器现状 3
1.3 课题背景及主要任务 5
2 方案分析 6
2.1 汽车总体参数的选择 6
2.1.1 轴数 6
2.1.2 驱动形式 6
2.1.3 布置形式 6
2.2 汽车质量参数的确定 6
2.2.1 质量系数 6
2.2.2 汽车总质量 7
2.2.3 载荷分配 7
2.3汽车主要数据的确定 8
2.3.1 质心高度 8
2.3.2 轴距 8
2.2 结构形式选择 9
2.2.1 领从蹄式制动器 11
2.2.2 双领蹄式制动器 16
2.2.3 双向双领蹄式制动器 16
2.2.4 双从蹄式制动器 17
2.2.5 单向增力式制动器 18
2.2.6 双向增力式制动器 18
2.3 制动鼓方案确定 19
3 制动器参数选择 20
3.1 制动器制动力 分配系数 20
3.2 同步附着系数 27
3.3 制动器最大制动力矩 27
4 制动器的设计计算 29
4.1 结构参数 29
4.1.1 制动鼓内径D 29
4.1.2 摩擦衬片宽度b和包角 30
4.1.3 摩擦衬片起始角 31
4.1.4 制动器中心到张力 作用线的距离e 31
4.1.5 制动蹄支撑点位置坐标a和c 32
4.1.6 衬片摩擦系数f 32
4.2 固定凸轮式(S型凸轮)汽式制动器的制动效能因数BF的计算 32
4.3 制动力的校核 33
4.3.1 制动器所能残生的制动力 计算 34
4.3.2 制动器所需的制动力 35
4.4 制动蹄片上的制动力矩 36
4.5 磨损特性计算 40
4.6 行车制动效能计算 41
4.7 驻车制动计算 43
5 制动器主要零件的结构设计 45
5.1 摩擦材料 45
5.2 制动鼓 45
5.3 制动蹄 46
5.4 制动底板 47
5.5 制动蹄的支承 47
5.6 制动器间隙 47
结 论 49
参考文献 50
致谢 51
附录 52
温馨提示:
1、题目前面的备注【字母数字编号】为本站整理分类的编号,与课题内容无关,请选题时忽视;
2、若题目上备注三维,则表示文件里包含三维源文件,由于三维组成零件数量较多,为保证预览截图的简洁性,本站将三维文件夹进行了打包。三维及CAD预览截图,均为本站电脑打开软件进行截图的,保证能够打开,下载原件超高清,下载后解压即可;
3、本站所有资源如无特殊说明,都需要本地电脑安装Office2007。图纸软件为AutoCAD,PROE,UG,SolidWorks,CATIA等;
4、本站所有图文资料仅供用户学习参考,不作为任何商用或其他用途;
5、本站不保证下载资源的准确性、安全性和完整性, 不包修改,不支持退换,同时也不承担用户因使用这些下载资源对自己和他人造成任何形式的伤害或损失;
6、 下载文件中如有侵权或不适当内容,请与我们联系,我们立即纠正。