

作品包括:
Word版设计说明书1份
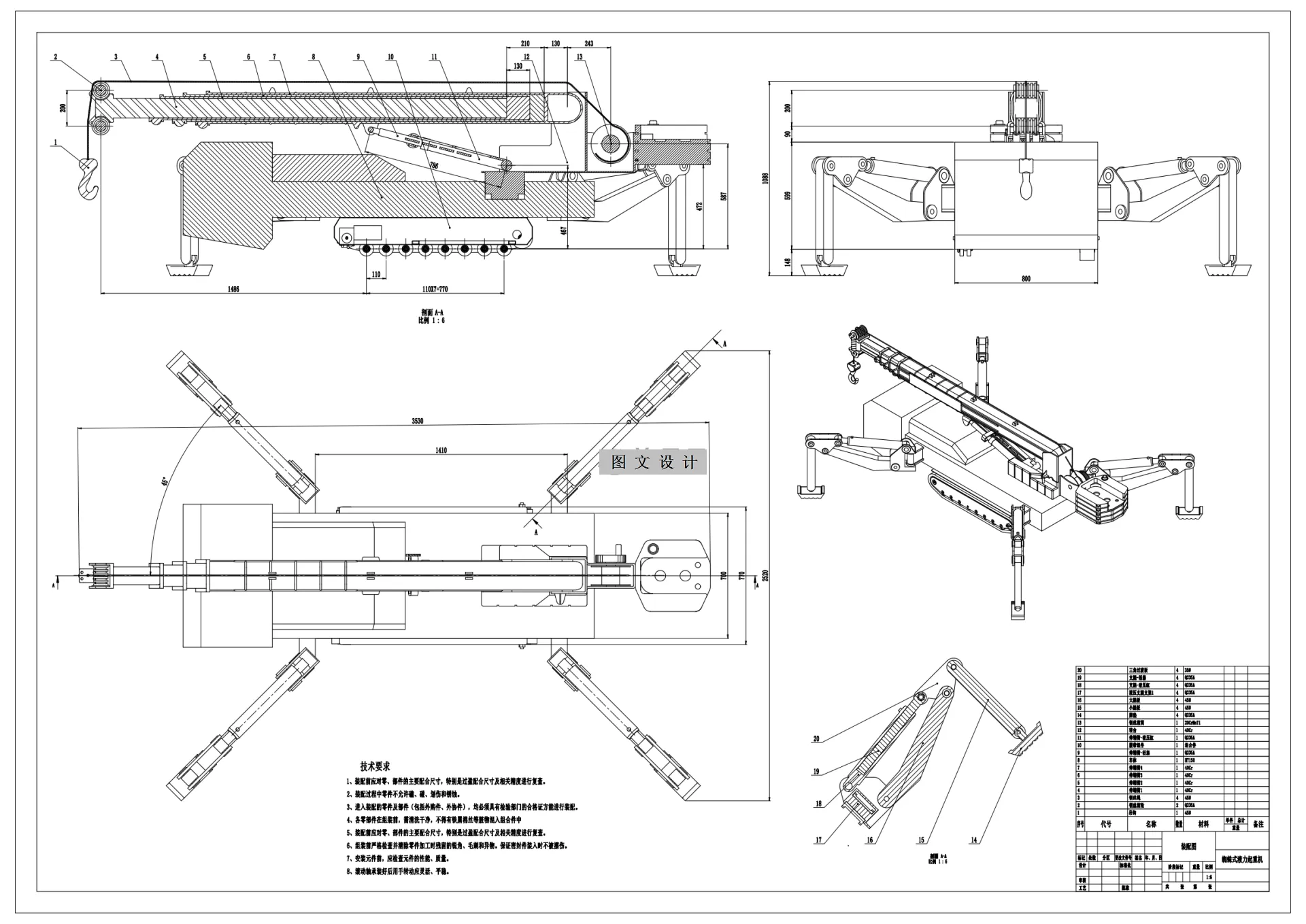
CAD版本图纸,共15张
SW三维图一套
摘要
在现代吊装作业中,“蜘蛛吊车”是一种多功能、可伸缩的臂式高空作业平台,因其结构灵活、操作简便、适用范围广而备受青睐。蜘蛛吊以其独特的设计理念和卓越的性能特点,逐渐成为了吊装人不可或缺的得力助手,其具有灵活适应、高效作业、安全可靠、维护简便以及广泛应用等特点,不仅能够提升工作效率,降低运营成本,还能保障操作安全,拓展应用领域。 首先根据国内外起重设备的发展和使用现状,通过查找专利及相关文献,搜集整理起重设备的相关研究资料,了解起重设备的相关设计方法及工作原理,熟悉了解小型蜘蛛式液力起重机的结构,有针对性地开展研究设计,并以典型案例进行剖析,总结成功案例的经验,要紧针对伸缩臂及两节支腿的设计及校核方面进行了重点研究,完成了零、部件的设计运算及其强度校核。 完成伸缩臂组件、支腿组件和液压缸的计算与选型后,通过计算软件Solidworks对设计内容进行三维模型的绘制、装配,通过软件验证和优化设计内容,通过有限元的方式分析蜘蛛式液力起重机在工作过程中的受力状况,通过机械制图软件Auto CAD完成工程图纸的绘制。通过合理的技术参数设计的蜘蛛式液力起重机,整机具有结构强度较好、高刚度、运行可靠,噪音低、维修方便等特点。
温馨提示:
1、题目前面的备注【字母数字编号】为本站整理分类的编号,与课题内容无关,请选题时忽视;
2、若题目上备注三维,则表示文件里包含三维源文件,由于三维组成零件数量较多,为保证预览截图的简洁性,本站将三维文件夹进行了打包。三维及CAD预览截图,均为本站电脑打开软件进行截图的,保证能够打开,下载原件超高清,下载后解压即可;
3、本站所有资源如无特殊说明,都需要本地电脑安装Office2007。图纸软件为AutoCAD,PROE,UG,SolidWorks,CATIA等;
4、本站所有图文资料仅供用户学习参考,不作为任何商用或其他用途;
5、本站不保证下载资源的准确性、安全性和完整性, 不包修改,不支持退换,同时也不承担用户因使用这些下载资源对自己和他人造成任何形式的伤害或损失;
6、 下载文件中如有侵权或不适当内容,请与我们联系,我们立即纠正。